NEW WORK - Rodinný dům v Újezdci

Dům leží na parcele dotýkající se ze západu veřejné komunikace a ze zbývajících stran je obklopen stavebními pozemky. Dům je usazen 5 metrů od uliční čáry veřejné komunikace. Rodinný dům je složen z vícera menších objemů, které vzájemným posunutím či pootočením vytvářejí mezi sebou intimnější prostory pro terasu či patio. Tyto „kostičky“ doplňují desky zastřešující jednak vstup do domu a terasu a poskytují tak ochranu před deštěm, sněhem a sluncem.

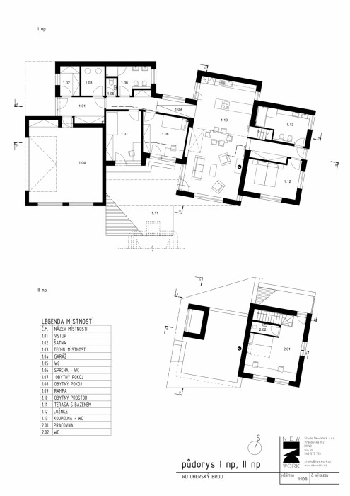
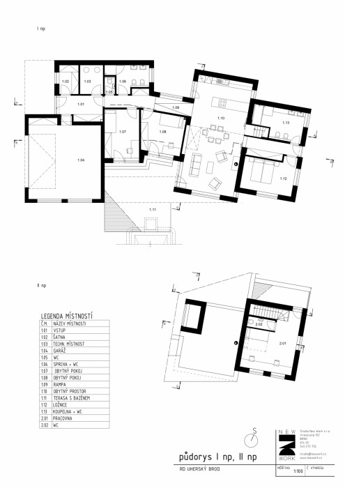
K veřejné komunikaci se přimyká západní fasáda se vstupem do domu a garáže, která zároveň tvoří první kvádr kompozice. Odtud se chodbou projde druhým objemem, který obsahuje servisní místnosti, sociální zařízení a dětské pokoje. Chodba eskaluje ve třetím kvádru, jenž je vyplněn obytným prostorem s jídelnou a kuchyní. Tento kvádr je prvním objemem, který také klesá oproti vstupu a kopíruje tak stávající terén. Z obytného prostoru se dá vstoupit jednak na jižní terasu, která je společná i pro dětské pokoje a také lze vstoupit do posledního objemu, který obsahuje v přízemí ložnici s koupelnou a v patře pracovnu, která se dá také využít jako pokoj pro hosty. Tato místnost má samostatné wc a také výstup na severní terasu. Tento objem je opět posunut dolů vůči vstupu i obytnému prostoru.

Foto: EARCH

Barevnost je řešena jednoduše bílou barvou břizolitové omítky na všech zděných fasádách domu. Atika ploché střechy, jíž je zastřešen celý dům, je lemována oplechováním a tvoří tak důležitý prvek ve výrazu domu. Okolo objektu je navrženo také oplocení, jenž je tvořeno pozinkovaným pletivem upevněným na ocelové sloupky. Výplň zábradlí na severní terase je tvořena žebírkovým ocelovým pletivem v rámu z Jackl profilů, vše žárově zinkováno. Okna a dveře jsou hliníková, barvy šedé.

Foto: EARCH

 

Foto: EARCH

Generální partner
Hlavní partneři