Pokorný - RD Záhorská

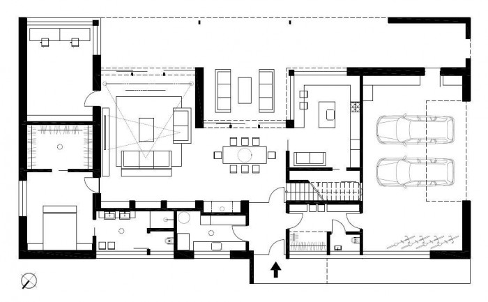
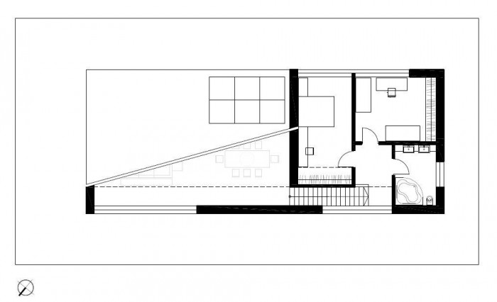
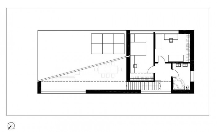
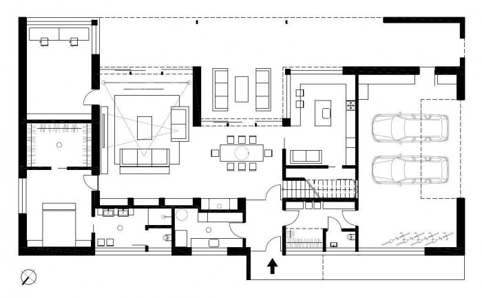
Pozemek v nově vznikající vilové čtvrti na okraji Bratislavy má mírný sklon na východ a výhled na lesy na jihu. Architektonický koncept domu je jednoduchý – všechno důležité, co se v domě děje, má kontakt s jižním exteriérem a horizontem zahrady. Centrální pozice obytné části (se šestimetrovou výškou) a samostatnou kuchyní je ze severu obklopena technickými místnostmi, na východě ložnicí a pracovnou a na západě garáží. V patře se nacházejí dva pokoje pro hosty s hygienickým zázemím.
Pro architekty je samozřejmostí, že benefity energeticky úsporného stavitelství jsou součástí celkového uvažování o architektuře a základem každého konceptu z ateliéru Pokorný architekti. K bezduchosti „krabice s jižními okny“ má však dům díky sofistikovaně navrhnutým řešením daleko. Jižní fasáda je po celé délce stíněná 3 metry dlouhou předsazenou konstrukcí poskytující plnohodnotně krytý prostor na pomezí interiéru a zahrady. V místě kontaktu terasy a kuchyně s jídelnou je veranda hluboká až šest metrů a její skleněná střecha tvoří světelný rozptylovač přímo naproti hlavnímu vstupu do domu ze severní strany. Exteriérová prosklená střecha má horní roletové stínění a větrací pole.
Šest metrů vysoký prostor v interiéru je sekundárně přisvětlovaný bazilikálním způsobem, takže i přes hlubokou verandu na jihu není obytný prostor ochuzený o denní světlo. Eliminace přímého slunečního záření však není jen architektonickým, ale také stavebně technologickým záměrem. Rozhodujícím prvkem, tvořícím primární pocit v domě, je společné rozhodnutí architekta a investora postavit celý dům jako montovanou dřevostavbu.
Konstrukční systém Lignotrend s integrovaným akustickým stropem v provedení masivního dubu vytváří vynikající akustiku a přirozené světlo nenapodobitelnou atmosféru. Povrchová úprava fasád je z bílé omítky a kanadského cedru. Mikroklima domu obohacuje bio jezírko v blízkosti terasy. Zdrojem tepla a chladu jsou dva geotermální vrty. Dům má podlahové vytápění a stěnové chlazení. Pro projektanty je výbornou zprávou, že dům perfektně funguje i bez zapojení technologických pasivních prvků, o čem se bylo možné přesvědčit už během výstavby v letních měsících, kdy bylo v domě i bez zapojení všech technologií příjemné klima, které bylo dosažené především díky pasivnímu stínění a komínovému odvětrávání.
- Autoři: Pavol Pokorný
- Ateliér: POKORNY ARCHITEKTI
- Spolupráce: Bjorn Kierulf, Tomáš Ružiak, Patrícia Botková
- Země: Slovensko
- Zodpovědný projektant: Bjorn Kierulf
- Generální dodavatel: KONTRAKTING STAVEBNÉ MONTÁŽE
- Město: Bratislava - Záhorská Bystrica
- Datum projektu: 2016
- Realizace: 2017
- Užitná plocha: 320.00m2
- Zastavěná plocha: 310.00m2
- Materiál: dřevo
Související projekty
Související architekti
Související ateliéry a firmy
Mohlo by vás zajímat
























