RD Červený Kopec III
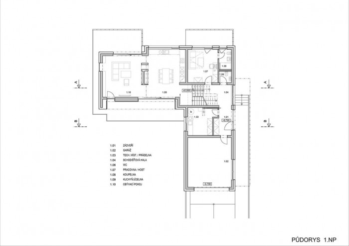
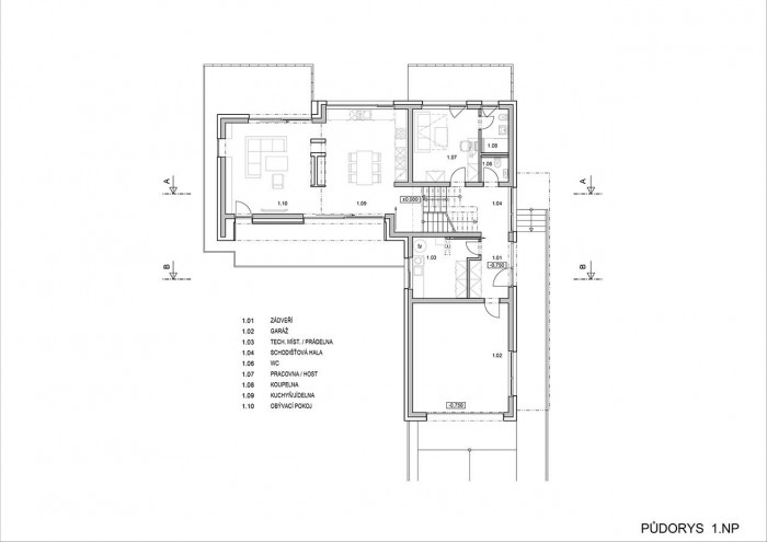
Měli jsme k dispozici relativně úzký pozemek s přístupem z jižní strany, který se svažuje směrem k severovýchodu. Měli jsme danou uliční čáru, na které musel dům stát a podmínku sedlové střechy. K tomu jsme měli fantastický výhled na panorama Krkonoš. Abychom obývací pokuj posunuli co nejdál od ulice a zároveň měli jižní slunce a výhled na sever, zvolili jsme uspořádání domu do tvaru písmene L. Na uliční čáru jsme postavili garáž a obývací pokoj jsme odsunuli od komunikace o dalších 10 metrů, čímž se pochopitelně zvětšila jižní část zahrady a zároveň se z pohledu obývacího pokoje odclonila příjezdová cesta.
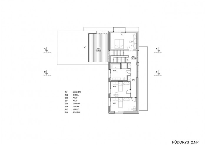
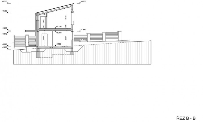
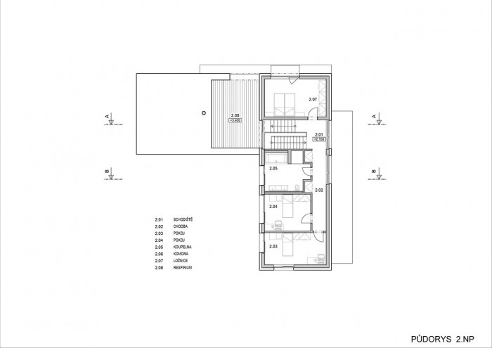
Konfigurace terénu jsme využili k tomu, že jsme dům rozčlenili na tři úrovně: vstupní prostory s garáží a pokojem pro hosty, o 75 cm vyvýšený obývací pokoj s kuchyní a jídelnou a ložnicovou část. V domě nejčastěji užívaná trasa po schodišti z obytného prostoru do ložnicového podlaží se zkrátila na 12 stupňů. Svým umístěním se schodiště stalo páteří domu, ale zároveň prostorem, kterým se do domu dostává ranní a večerní slunce. Zároveň tak bylo možné zachovat rostlý terén, s výjimkou prostoru mezi domem a ulicí, kde jsme zpracovali zeminu vytěženou při hloubení základů.
Regulativ sedlové střechy jsme vyřešili napojením dvou pultových střech s různým sklonem. V obývacím pokoji jsme ponechali prostor otevřený do šikminy krovu, ale v části kuchyně a jídelny, už byla výška moc velká. Bylo nám líto ten prostor využít jen jako skladiště věcí a tak jsme diskutovali s klientem, jak nejlépe ho využít. Když jsme zjistili, že paní domu touží po nějakém místě, kde by mohla cvičit jógu, bylo rozhodnuto, že ve střeše ukryjeme terasu, která je jen pár kroků od ložnice.
- Autoři: Michal Rosa, Martina Rosová
- Ateliér: ROSA - ARCHITEKT
- Země: Česká republika
- Město: Trutnov
- Datum projektu: 2013
- Realizace: 2014
- Užitná plocha: 215.00m2
- Zastavěná plocha: 175.00m2
- Plocha pozemku: 1 178.00m2
- Užitná plocha včetně atria: 238 m2
Související projekty
Související architekti
Související ateliéry a firmy
Mohlo by vás zajímat