Rekonstrukce bytu v paneláku od architectureMADE
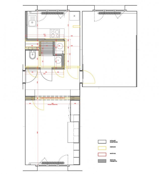
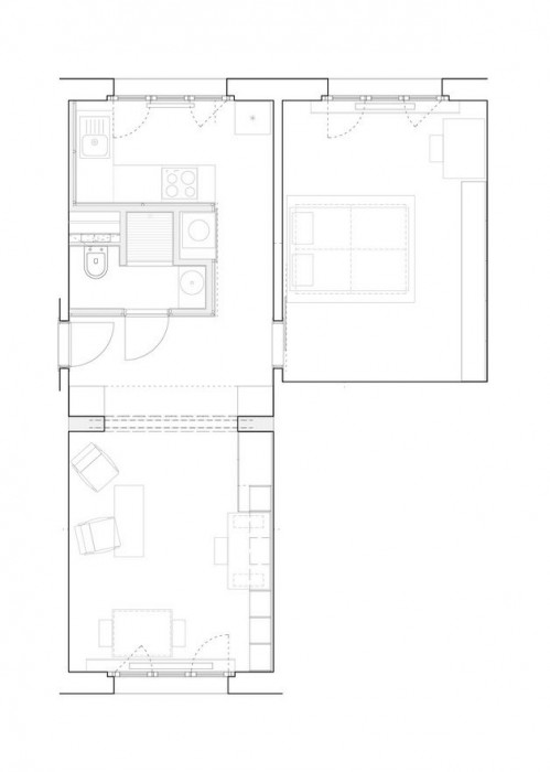
Byt se nachází v přízemí paneláku konstrukčního systému T06B v Plzni na Borech. Dům byl vystavěný v roce 1968. Byt s původní dispozicí 2+1 a výměrou 48 m2 měl úzkou vstupní chodbu a kromě vstupních další patery dveře.
Zděné příčkovky jsme vybourali, stejně tak betonovou příčku oddělující obývací prostor, ta musela být nahrazena rámem z důvodu rizika prasklin příček ve vyšších patrech. Stěny i stropy jsme zbavili několika vrstev maleb. Zůstal holý beton v horší kvalitě, než jsme vůbec očekávali. Do vzniklého prostoru po demolici jsme vložili objem nové sprchy a záchodu, kterým jsme nahradili původní oddělené prostory. Příčky jsou běžné z porobetonových tvárnic, z vnější strany obložené lakovanými OSB deskami.
Stejně tak vestavěné skříně formující prostory bytu a kuchyně jsou vyrobeny z OSB desek. Kromě vstupních dveří jsou dveře pouze do koupelny a ložnici lze oddělit posuvnou deskou. Dispoziční typ 2+1 jsme z konstrukčních důvodů zachovali, chtěli jsme ale docílit vzdušnějšího a velkorysého pocitu v malém bytě, nové uspořádání umožňuje příčný průhled bytem a jeho lepší prosvětlení do hloubky dispozice. Podlaha je z lakovaných OSB desek a epoxidové stěrky. Část stěn je štukovaná s bílou malbou, ostatní jsou odhalené betonové, ošetřené pouze penetrací. Koupelna je obložena na celou výšku tyrkysovým obkladem RAKO 15×15, stejným jako v původním bytu.
Rozvody elektroinstalace jsou vedeny v pozinkových trubkách po povrchu, použili jsme kovové průmyslové spínače a zásuvky. Byt je zařízen opraveným nábytkem z původního bytu, dalšími repasovanými kusy, stoly jsou ze svařených jeklů a překližky.
Interiér jsme realizovali částečně svépomocí. Provedení až do detailu je s důrazem na viditelnou ruční práci všech řemesel, použili jsme přiznané a jednoduché detaily s čitelnou skladbou.
- Autoři: Tomáš Král, Irena Šebová
- Ateliér: architectureMADE
- Země: Česká republika
- Město: Plzeň - Bory
- Datum projektu: 2015
- Realizace: 2017
- Užitná plocha: 48.00m2
- fotografie: Roman Muchka iatelier
Související projekty
Související architekti
Související ateliéry a firmy
Mohlo by vás zajímat