Rekonštrukcia baníckeho domu Dolná Resla

Banícky dom na Dolnej Resle prešiel komplexnou obnovou. Znehodnotené časti fasád boli analogicky zrekonštruované, poškodené prvky boli nahradené precízne remeselne spracovanými replikami.
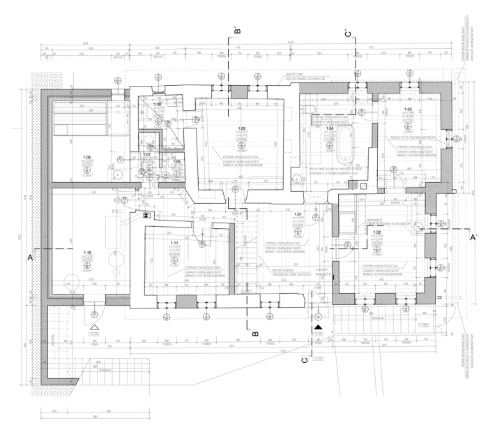
Vstupná hala bola pred rekonštrukciou porozdeľovaná zásahmi z 20. storočia na menšie celky. Pri obnove bola dispozícia očistená a priestor sa opäť zjednotil a skompaktnil – rešpektované bolo pôvodné dispozičné riešenie domu. Z haly je vstup do ďalších miestností na prízemí – dvoch spální, kúpeľne a kuchyne, taktiež prechod do zadnej časti domu, využívanej ako technické a hospodárske zázemie.
Kúpelňa je na želanie vlastníka umiestnená na mieste pôvodnej kuchyne, je odtiaľto prístupná spálňa. Vedľajšia miestnosť je navrhovaná ako kuchyňa a plní aj funkciu spoločenskej miestnosti prízemia domu, keďže sú odtiaľto pútavé priehľady na mesto a jeho dominanty – najmä Starý Zámok a Kalváriu. Tu je navrhnutá nová pec, ktorá slúži aj na varenie a pečenie.
Na prízemí sa ešte nachádzajú dve menšie kúpeľne prislúchajúce k spálniam kvôli požiadavkám štandardu – z nich jedna je priamo prístupná z izby.
Vo vstupnej hale je umiestnené schodisko vedúce do zobytneného podkrovia. Ústi do centrálneho otvoreného priestoru s jedálňou, kuchyňou a pracovňou, ktorá slúži aj ako spoločenská miestnosť. Odtiaľto je prístup do izby a kúpeľne. Na osvetlenie a vetranie priestorov sú navrhnuté na každej strane strechy tri strešné vikiere a rozšírené okenné otvory na severnej strane objektu.
Z jedálne je možný výstup na terasu vybudovanú nad hospodárskou miestnosťou zapustenou do svahu. Novotvar – sklenené dvere – je zakrývateľný vrátami. Odtiaľ je navrhnuté terénne schodisko v rámci záhrady vedúce dolu, na úroveň vstupu do domu. Terénne schodisko a celá nová morfológia záhrady umožňuje prepojenie terasy s priestorom pred hlavným vstupom do prízemia domu.
Pod schodiskom vznikol chránený priestor na exteriérové uskladnenie a preschnutie dreva. Hospodárske zázemie domu je z exteriéru stvárnené ako drevená šopa, aby nerušilo pôvodný vzhľad objektu.
Na hornej platforme pribudol uzatvárateľný altánok, ktorý svojim prevedením, šindľovou strechou a detailami odkazuje na hospodárske šopky a dotvára atmosféru celej parcely.
- Autoři: Vladimír Schmidt, Zuzana Schmidt
- Ateliér: z+v architects
- Země: Slovensko
- Město: Banská Štiavnica
- Ulice, číslo: Dolná Resla
- PSČ: 969 01
- Datum projektu: 2013
- Realizace: 2015
- Užitná plocha: 264.00m2
- Zastavěná plocha: 183.00m2
- Plocha pozemku: 1 149.00m2
- Foto ©: Martin Šveda
Související architekti
Související ateliéry a firmy
Mohlo by vás zajímat


















