Rodinný dům v Českém Krumlově

Vila ze 30. let minulého století byla takřka v původním stavu – objekt je z větší části podsklepený, s nezateplenou a nevyužívanou půdou. Dům byl původně rozdělen na dva byty, stav technického vybavení domu odpovídá době vzniku s enormními energetickými nároky na vytápění. Objekt se nachází v památkové zóně města Český Krumlov.
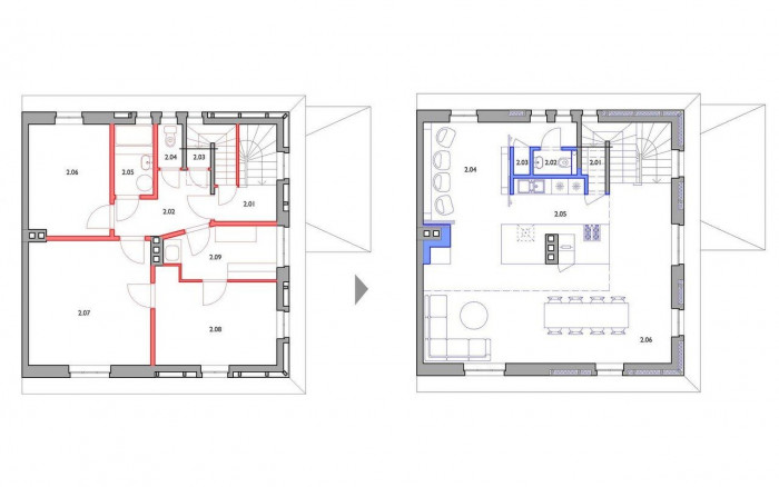
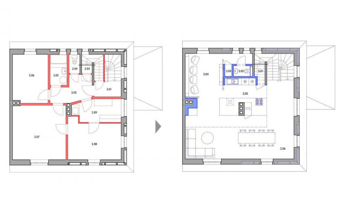
V našem návrhu zůstává exteriér domu zachován. Dobré není třeba měnit. Myšlenka „rekonstrukce“ se soustředí na interiér. Ložnice jsou navrženy do podlaží na úrovni terénu s minimálním zásahem do současné dispozice. Druhé nadzemní podlaží je otevřeno napříč domem a propojeno s podkrovím. Mansardová střecha bude po zateplení izolovat všechny důležité obytné prostory.
Mohlo by vás zajímat

1/27

ECHOROST ARCHITEKTI, Rodinný dům v Českém Krumlově – foto
Foto: Šimon Jiráček
2/27

ECHOROST ARCHITEKTI, Rodinný dům v Českém Krumlově – foto
Foto: Šimon Jiráček
3/27

ECHOROST ARCHITEKTI, Rodinný dům v Českém Krumlově – foto
Foto: Šimon Jiráček
4/27

ECHOROST ARCHITEKTI, Rodinný dům v Českém Krumlově – foto
Foto: Šimon Jiráček
5/27

ECHOROST ARCHITEKTI, Rodinný dům v Českém Krumlově – foto
Foto: Šimon Jiráček
6/27

ECHOROST ARCHITEKTI, Rodinný dům v Českém Krumlově – foto
Foto: Šimon Jiráček
7/27

ECHOROST ARCHITEKTI, Rodinný dům v Českém Krumlově – foto
Foto: Šimon Jiráček
8/27

ECHOROST ARCHITEKTI, Rodinný dům v Českém Krumlově – foto
Foto: Šimon Jiráček
9/27

ECHOROST ARCHITEKTI, Rodinný dům v Českém Krumlově – foto
Foto: Šimon Jiráček
10/27

ECHOROST ARCHITEKTI, Rodinný dům v Českém Krumlově – foto
Foto: Šimon Jiráček
11/27

ECHOROST ARCHITEKTI, Rodinný dům v Českém Krumlově – foto
Foto: Šimon Jiráček
12/27

ECHOROST ARCHITEKTI, Rodinný dům v Českém Krumlově – foto
Foto: Šimon Jiráček
13/27

ECHOROST ARCHITEKTI, Rodinný dům v Českém Krumlově – foto
Foto: Šimon Jiráček
14/27

ECHOROST ARCHITEKTI, Rodinný dům v Českém Krumlově – foto
Foto: Šimon Jiráček
15/27

ECHOROST ARCHITEKTI, Rodinný dům v Českém Krumlově – foto
Foto: Šimon Jiráček
16/27

ECHOROST ARCHITEKTI, Rodinný dům v Českém Krumlově – foto
Foto: Šimon Jiráček
17/27

ECHOROST ARCHITEKTI, Rodinný dům v Českém Krumlově – foto
Foto: Šimon Jiráček
18/27

ECHOROST ARCHITEKTI, Rodinný dům v Českém Krumlově – foto
Foto: Šimon Jiráček
19/27

ECHOROST ARCHITEKTI, Rodinný dům v Českém Krumlově – foto
Foto: Šimon Jiráček
20/27

ECHOROST ARCHITEKTI, Rodinný dům v Českém Krumlově – foto
Foto: Šimon Jiráček
21/27

ECHOROST ARCHITEKTI, Rodinný dům v Českém Krumlově – foto
Foto: Šimon Jiráček
22/27

ECHOROST ARCHITEKTI, Rodinný dům v Českém Krumlově – foto
Foto: Šimon Jiráček
23/27

ECHOROST ARCHITEKTI, Rodinný dům v Českém Krumlově – foto
Foto: Šimon Jiráček
24/27

ECHOROST ARCHITEKTI, Rodinný dům v Českém Krumlově, půdorys – foto
Foto: archiv autorů
25/27

ECHOROST ARCHITEKTI, Rodinný dům v Českém Krumlově, řez – foto
Foto: archiv autorů
26/27

ECHOROST ARCHITEKTI, Rodinný dům v Českém Krumlově, původní stav – foto
Foto: archiv autorů
27/27