Sebastian Nagy - Rodinný dům Atrio
Vila Atrio je umiestnená na svahovitom teréne vilovej štvrte Bratislavy. Pozemok s výborným výhľadom na údolie Dunaja a ďalej až do Rakúska je lukratívny, no svojou výraznou morfológiou prináša niekoľko komplikácii. Značný sklon pozemku umožňuje plynulé šírenie hluku od frekventovanej dopravnej tepny v údolí. Pri ponechaní pôvodného svahu by na viac ostala reálne využiteľná plocha pozemku minimálna.
Tieto komplikácie sme eliminovali vyrovnaním sklonu terénu pomocou terénnych úprav. Vytvorili sme rozsiahlu rovnú parcelu s dostatočnými dimenziami na vybudovanie komfortného bývania. Dom sme posunuli do zadného, tichšieho rohu pozemku. Pred ním vznikla rozsiahla plocha a miesto na plavecký bazén. Vyhli sme sa zložitému zakladaniu vo svahu a nehostinný terén sme premenili na plnohodnotnú záhradu.
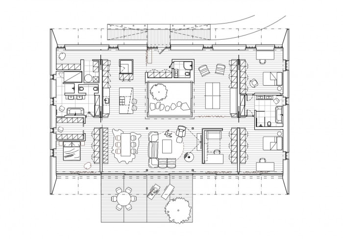
Samotný dom tvorí jednopodlažný kváder postavený na modulovej sieti s rozmerom 1,2x1,2 metra. Takáto čitateľnosť a racionalita nepôsobí stereotypne, ale je skôr príjemnou istotou, na ktorú sa dá spoľahnúť. Použitý modul neovplyvňuje len rozmery domu, ale najmä definuje delenie a proporcie celého obytného priestoru.
Objem domu je z troch strán obložený hutným kameňom, ktorý netradične akoby levituje nad upraveným terénom. Hmota domu je zľahka vyvýšená oproti terénu a dnu sa preto vstupuje krátkou rampou. Introvertnosť kamennej fasády narúšajú len štíhle okenné otvory obytných miestností. Zo štvrtej, západnej strany je však objem logicky otvorený v celej šírke aj výške fasády smerom k slnku a výhľadom do diaľky. Subtílna presklená fasáda je len jemnou membránou umožňujúcou svetlu a vzduchu slobodne plynúť priestorom. Mohutný šilt na západnej fasáde je obložený cédrovým drevom. Vyľahčuje ho elegantné skosenie do tenkej hrany. Tieni celú presklenú fasádu a na viac chráni terasu pred poveternostnými vplyvmi. Bočným vysunutím zas bráni pohľadom zo susedných pozemkov na terasu a do obytného priestoru. Na opačnej, východnej strane je šilt zopakovaný. Z tejto strany prestrešuje a akcentuje vstup do domu.
Názov domu Atrio vychádza v ústredného motívu, centrálneho átria, okolo ktorého je umiestnený obytný priestor. Átrium prináša svetlo do stredu dispozície a vytvára súkromnú mikrozáhradu prístupnú z interiéru. Obytný priestor tak vďaka kontaktu na átrium, ale aj veľkej presklenej stene západnej fasády pôsobí veľkorysým dojmom i keď priestorom sa nemrhá.
Interiér je rozdelený do piatich polí. Centrum domu tvorí obytnú časť s jedálňou kuchyňou a obytným priestorom. Po oboch stranách obytného priestoru sú umiestnené trakty so spálňami. Na severnej strane je umiestnený trakt rodičov so samostatnou hygienou. Na opačnej strane domu na južnej fasáde sú umiestnené spálne detí s vlastnou hygienou a herňou. Na tejto strane domu je situovaná aj pracovňa napojená na obytnú časť domu. Takéto prehľadné usporiadanie obytných miestností ťaží nielen z kontaktu na záhradu a výhľadov na okolie , ale aj z výborného napojenia na obytný priestor, ktorý sa stáva chrbticou domu. Hoci je celý otvorený, nevytvára pocit neosobnosti, ale naopak formuje pocit spolupatričnosti celej rodiny. Každý člen rodiny má dostatok vlastného priestoru, ale až spoločný priestor je dejiskom rodinného života.
Interiér je navrhnutý tak, aby nepodliehal krátkodobým módnym vlnám. Nábytok je prevažne vstavaný, vyhotovený na mieru, doplnený je len zopár kvalitnými solitérmi. Prirodzená farebnosť a prírodná štruktúra použitých materiálov prepožičiava obytnému prostrediu moderný, no ambientný charakter.
Veľká pozornosť bola venovaná okoliu domu. Všetky stromy boli vyberané vyslovene z domáceho prostredia, kosodrevina, vresy aj limba, sú dovezené z Vysokých Tatier. V budúcnosti by mala záhrada dostať prírodnejší charakter. Starostlivosť o trávnik, momentálne slúžiaci na hranie detí, chce majiteľ neskôr ponechať na prírodu. A zo záhrady sa má postupne stať prírodný lesopark.
Atrio je dom ponúkajúci nadštandardný komfort bývania na primeranej zastavanej ploche. Atmosféra života v ňom nie je zabezpečená okázalosťou a prehnaným luxusom, ale kvalitnými materiálmi, adekvátnymi dimenziami jednotlivých miestností ich logickým usporiadaním a vzájomným prepojením. To sú nadčasové hodnoty, ktoré odolajú krátkodobým trendom a dom tak bude majiteľom dobre slúžiť dlhé roky.
- Autoři: Sebastian Nagy
- Ateliér: sebastian nagy architects
- Země: Slovensko
- Město: Bratislava
- Ulice, číslo: Srnčia
- Realizace: 2013
- Užitná plocha: 290.00m2
- Plocha pozemku: 1 500.00m2
Související projekty
Související architekti
Související ateliéry a firmy
Mohlo by vás zajímat