Aby sme pochopili kontext vzniku ateliéru gutgut (mysliac tým jeho fyzickú schránku), musíme sa oboznámiť s priestormi, kde architekti gutgut pôsobili predtým. Rodinný dom vo vilovej kolónii na Liptovskej ulici poskytoval dostatok priestoru pre vtedajší tím takmer dvadsiatich architektov a projektantov. Na jednom, neskôr po rekonštrukcii na dvoch podlažiach nám relatívna členitosť a vertikálna segregácia začala znepríjemňovať kreatívny proces. Pociťovali sme potrebu väčšej kooperácie a spolupatričnosti.

Po krátkom hľadaní sa nám zapáčil obchodný priestor bývalej predajne elektrotechnických potrieb, ktorý sa nachádza v našej obľúbenej, stále autentickej časti Bratislavy „500 bytov“. Ako často skrývanému alter egu každého kreatívneho človeka, aj nám imponovala exhibujúca poloha v parteri. Byť videní a vidieť je fajn.

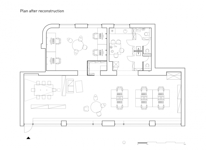
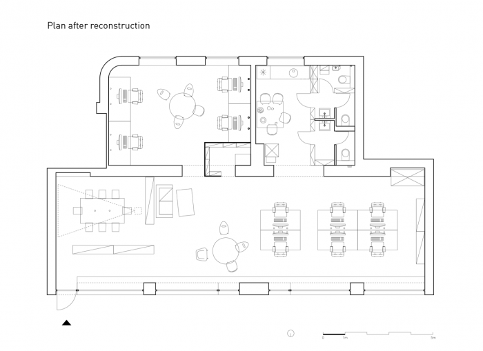
Obchodný priestor s veľkými výkladmi sme zmenili na architektonický ateliér s veľkými výkladmi (nepotrebujeme reklamné polepy, tovarom je naša existencia v tomto priestore). Po niekoľkoročnom fungovaní v hierarchicky členenom priestore –nazvať to vulgárne – kancelárskeho charakteru, sme sa chystali navrátiť k hluku loftových priestorov, na ktoré sme spomínali z čias pôsobenia v industriálnych priestoroch VUKI na Továrenskej ulici.

Po odstránení priečok sme vytvorili dva plány. V prvom, do ulice exponovanom trakte sme vytvorili loftový mono-priestor, ktorý je členený iba pomocou mobiliáru na funkčné celky vstupnej časti, „zasadačky“ a knižnice s lounge-ovým posedením. Ostatnú časť tvorí kreatívny open-space s veľkým centrálnym pracovným stolom, ktorý podľa konfigurácie používa 6 až 10 ľudí. V zadnom pláne sme do dvoch jestvujúcich miestností umiestnili druhú časť ateliérových priestorov intímnejšieho charakteru, a v nepodstatnom rade kuchynku s hygienyckým zázemím.

Materiálové riešenie rekonštrukcie vyjadruje našu úctu k primárnym materiálom a dešpekt k všeobecnej obľube „kožovania“. Priestor predajne sme teda očistili od všetkých nánosov 90tych rokov, zastavili nás až holé konštrukcie, ktorým vzdávame hold vo väčšine našich prác. Obvodové steny tvoria obálku z režného muriva, ktoré sme upravili zjednocujúcim bielym náterom. Železobetónový rebierkový strop bol otryskaný na pôvodnú podobu. Znovunarodený priestor sme už iba doplnili o kvalitné okná a presklené výklady. Pod tie sme umiestnili široký „funkčný“ parapet z pororoštových plechov, ktorý funguje na sedenie i ako nosič makiet našich prác a interiérových rastlín. Hygienycké zázemie a archív sa ukrýva vo vložených boxoch z nahrubo spracovanej preglejky.

K tvorivej činnosti takýto otvorený charakter pracoviska patrí, je stále atraktívny pre aktérov i „obecenstvo“.

Generální partner
Hlavní partneři