VIMOB

Projekt VIMOB se zrodil z nápadu vytvořit útočiště v oblasti s obtížným přístupem - míst, kde jsou tradiční konstrukce omezeny kvůli nemožnosti transportu materiálu nebo obtížnosti práce. Projekt vychází z konceptu modulárního prefabrikátu, jež je schopný zajistit základní a příjemné prostory, jež nemohou vzniknout tradiční cestou, ale které budou splňovat základní kritéria na pohodlí, praktičnost, efektivitu, flexibilitu a současnost. Vnikl tak systém pečlivě strukturovaných a funkčně skládaných modulů, jež poskytují požitek z příjemného okolí a jsou zároveň v harmonii s životním prostředím, nenáročné na údržbu a poskytují plnohodnotný způsob bydlení.
Tento archetyp čistých a jednoduchých linií klade za cíl preciznost v každém detailu, ve způsobu práce s modulem, ve výběru materiálů, ve vlastnostech použitých prvků a ve volbě textur, jež architekti používají v zemitých a přírodních barvách. Objem tak jasně vychází z užitného prostoru, bez zbytečných příkras, kde se vše doplňuje v jednoduchém designu a celkově jakoby levituje nad terénem. Striktní kontrola barev tak dává vyniknout souznění mezi domem a zelenou krajinou okolo.
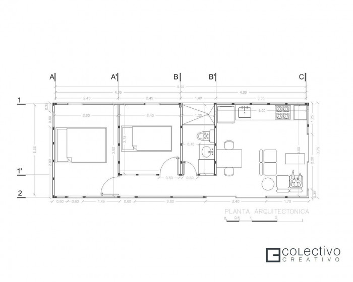
V interiéru převažuje využití dřeva, stěny jsou tvořeny z OSB desek a stropy jsou z borovicových prken. Pocit prostoru a vzdušnosti je umocněn posuvnými okny v salonku, jež sahají od podlahy až ke stropu místnosti a umožnují tak otevření domu do exteriéru. Poskytují také snadný přístup na přední terasu a udržují trvalé propojení exteriéru a interiéru.
VIMOB byl vyvinut v naší dílně, rozebrán a odeslán přímo na staveniště. Jednotlivé kusy umožňují rychlou montáž na místě, s použitím minima nástrojů. Každá součást projektu byla navržena a vyrobena tak, aby mohla být snadno přizpůsobena a upravena rámu modulu, čímž se minimalizuje počet dokončovacích prací na místě, sníží se plýtvání surovinami, uhlíková stopa, dopad na stavební pozemek i riziko nepředvídatelných událostí.
A konečně, snadná montáž a demontáž umožňuje umístění domu kdekoliv od vrcholku hory, z nějž můžete vidět celou krajinu až po pláž nejvhodnější k sledování západů slunce. Se svým designem, který je jak moderní tak sofistikovaný v každém ohledu, poskytuje nevšední zážitek z krásy jednoduchosti.
- Ateliér: Colectivo Creativo Arquitectos
- Země: Kolumbie
- Město: Corregimiento de Matapalo - Palmira
- PSČ: Valle del Cauca
- Realizace: 2015
- Užitná plocha: 37.00m2
- Poznámka: Foto © Mauricio Carvajal, Felipe Orvi
Související ateliéry a firmy
Mohlo by vás zajímat






















