Technologie / produkty

Posuvná fasáda Schüco respektuje náladu majitelů rodinného domu u španělského pobřeží

V odlehlé části přímořské oblasti Costa Blanca, pouhých pět kilometrů od pobřeží, vyrostl rodinný dům „Vivienda en Elche“. Jednopatrová novostavba z dílny architektonického studia Estudio Arn Arquitectos na první pohled zaujme výrazným kontrastem otevřených a uzavřených ploch fasády. Křídla posuvného systému Schüco ASS 77 PD.NI na celou výšku místností a hlavně po celé délce  fasády umožňují téměř neomezené panoramatické výhledy směrem na jihozápad, do zahrady s bazénem. Otvírat je lze dle libosti – v závislosti na teplotě, ročním období i náladě obyvatel domu.

Schüco CZ s.r.o. , 5. 12. 2019

Město Elche leží ve vnitrozemí ve španělské provincii Alicante, nedaleko pobřeží Costa Blanca. Proslavilo se svým palmovým hájem, který je zapsán na seznamu světového dědictví UNESCO. Palmy proto nemohly chybět ani v projektu rodinného domu „Vivienda en Elche“. Z architektonického hlediska chtěli autoři ze studia Estudio Arn Arquitectos odkázat na stavební sloh venkovských domů, který je pro tento region typický. Odrazil se především v sedlové střeše a také v použití přírodního světlého kamene pro vnitřní i venkovní podlahy a pro severní fasádu. Tradiční prvky tvoří výrazný kontrast s vertikálními žaluziemi, s vnitřním dřevěným obložením z tropického irokového dřeva původem z Afriky, s velkoformátovými prosklenými fasádními panely v hliníkových rámech a s pohledovým betonem.

Chráněný ze severu, otevřený k jihozápadu

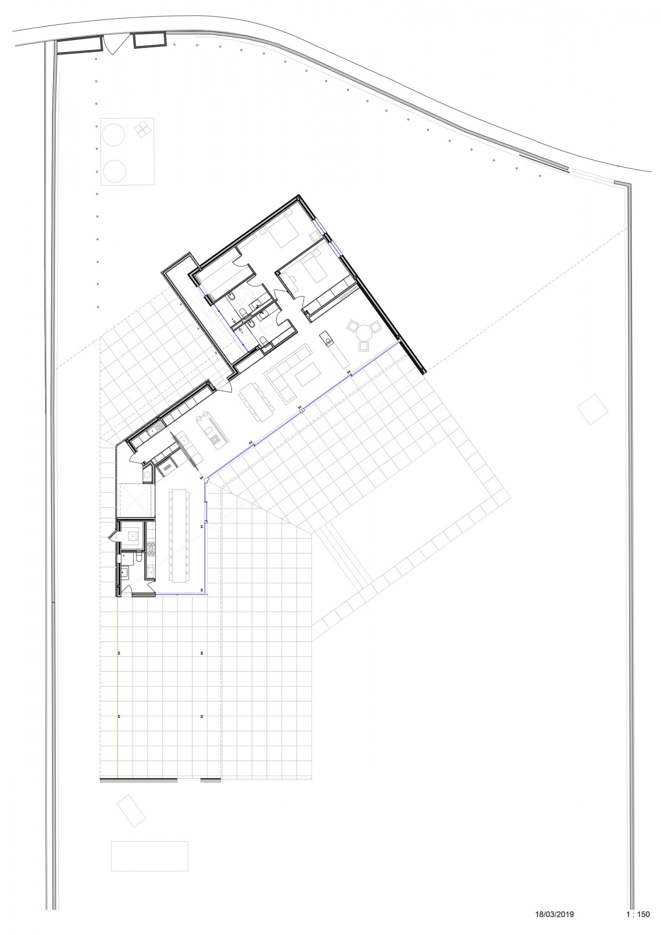
Půdorys domu se skládá ze čtvercové hlavní budovy a protáhlého křídla, které z ní vystupuje směrem na jihozápad pod úhlem 45 stupňů. Kontrastující pojetí fasády dvou propojených částí stavby odpovídá rozdílným zónám využití. Do kubusu byly umístěny ložnice, šatny a koupelny, diskrétně skryté před pohledy zvenčí. V šikmo připojeném křídle se pak nachází obývací prostor, jídelní část a kuchyňský kout, které jsou orientovány směrem k terase, zahradě a bazénu a do kterých jsou částečně začleněny i venkovní prostory.

Přirozené světlo proniká do severně orientovaných ložnic a koupelen okny a prosklenými dveřmi, z nichž některé se otevírají do vnitřního atria skrytého před zraky kolemjdoucích (hliníková okna Schüco AWS 65 BS a Schüco AWS 50.NI). Díky dřevěným žaluziím toto atrium stejně jako ostatní části severní fasády výrazně kontrastují se světlými barvami fasádních obkladů a dlažby z přírodního kamene na podlahách.

Při pohledu ze severní strany s příjezdovou cestou a hlavním vstupem budova působí uzavřeně a nenápadně. Žaluzie z irokového dřeva a reliéfní obklady z přírodního kamene tvoří materiálové i barevné kontrasty

Fasáda je osazena posuvným systémem Schüco ASS 77 PD.NI na výšku celých místností

Po úvodním dojmu z nenápadných a uzavřených vstupních prostor a severní části fasády se budova otevírá do prostoru panoramatickým zasklením po celé délce jihozápadní fasády. Otvírá tak neomezené výhledy na venkovní terasu s bazénem, zahradu a krajinu kolem pozemku, řídce posetou nízkými rezidenčními a komerčními stavbami. Výjimečnost této protáhlé prosklené fasády, která sahá do výšky celého patra, pramení z možnosti otevírat dle libosti čtyři z jejích křídel o rozměrech zhruba 4 x 3 m pomocí posuvného mechanismu. Celá fasáda je osazena posuvným systémem Schüco ASS 77 PD.NI, jehož štíhlé hliníkové profily konstrukce Panorama Design umožňují realizovat prosklené plochy na výšku celé místnosti, aniž by výhled rušily jakékoli příčníky. Kolejnice zapuštěné v podlaze zajišťují bezbariérový pohyb i plynulý přechod mezi vnitřním a venkovním prostorem, kdykoli po něm obyvatelé domu zatouží.

Jihozápadní část budovy tvoří podlouhlý, šikmo napojený blok orientovaný směrem k bazénu a zahradě

Systémy Schüco na míru pro teplejší klima se speciální stínicí vrstvou a bezpečnostním sklem

Mírné zimy a teplá léta – právě tyto středomořské klimatické podmínky ovlivnily podobu i konfiguraci posuvného systému. Společnost Schüco nabízí posuvný systém ASS 77 PD i v tepelně neizolované verzi „NI“, která se dokonale hodí do teplejších klimatických pásem. Uplatnila se i v projektu Vivienda en Elche, v kombinaci s izolačním dvojsklem opatřeným speciální stínicí vrstvou. V rámci speciální úpravy byla křídla osazena bezpečnostním sklem v třídě odolnosti 2 – požadavek na zvýšenou odolnost vůči zlodějům, který okenní systémy Schüco AWS 65 BS a AWS 50.NI nainstalované v tomto domě splňují také.

V souladu s architektonickou vizí bylo třeba realizovat průhledné plochy na plášti budovy s co možná největším podílem skla, nejrozměrnějšími panely a nejštíhlejší pohledovou šířkou profilů, s čímž projektantům významně pomohl výrobce Novalco Metales, partnerská firma společnosti Schüco z města Alicante. Bezproblémovou instalaci zaručil přesný plán na míru, pečlivá výroba v dílnách a také přesná práce jeřábu při osazování panelů přímo na místě. „Vzhledem k teplému klimatu lze ve Španělsku naplno využívat všechny možnosti a výhody, které posuvné systémy Schüco ASS 77 PD nabízejí. Platí to jak pro fasády soukromých rezidenčních domů, tak pro fasády kancelářských budov,“ říká vlastník firmy Novalco Metales a vedoucí projektu Paco Gea Miralles.

Zastřešená terasa je ze tří stran otevřená, což zaručuje přirozenou ventilaci

Rozhovor s Josém Amorósem Gonzálvezem, hlavním architektem projektu ze studia Estudio Arn Arquitectos

Jak rodinný dům Vivienda en Elche zapadá do okolí?

José Amorós Gonzálvez: V tomto projektu jsme chtěli reinterpretovat typologii architektury typické pro místní venkovská stavení. Výsledkem byla kombinace kubické hmoty hlavní budovy, obložené přírodním kamenem a zakončené sedlovou střechou, a striktně horizontálního bloku z železobetonu. Hlavní budova se sedlovou střechou ukrývá funkční prostory, které lze využívat po celý rok bez ohledu na počasí, zatímco křídlo s plochou střechou slouží zčásti jako uzavřená kuchyně a jídelní prostory a zčásti jako otevřená terasa se zastíněním.

Při pohledu na vstupní část působí dům nejprve velmi uzavřeně…

Severní část domu orientovaná směrem k příjezdové cestě zaručuje potřebné soukromí pro přilehlé funkční prostory – koupelny, šatny a ložnice. Proudí do nich přirozené světlo z vnitřního atria, který je zvenku obloženo průsvitnými, vertikálně členěnými žaluziemi z tropického irokového dřeva původem z Afriky. Na vstupní fasádě jsme pomocí použitých materiálů nastavili určitý vizuální koncept, který pak pokračuje i v interiéru budovy. 

Celá fasáda směrem do zahrady s bazénem se skládá z velkoformátových posuvných systémů od společnosti Schüco. Jakou funkci tyto systémy plní v celkovém vizuálním pojetí?

Pomocí křídel typu Panorama Design vysokých přes celou místnost se nám podařilo vytvořit prosklenou fasádu, a umožnit tak vizuálně plynulý přechod materiálů a prostoru mezi interiérem a exteriérem. Podlaha ze světlého kamene volně plyne z interiéru na terasu a k bazénu, ať už jsou posuvy otevřené, nebo zavřené a to samé platí i pro světlo a výhled. Prostřednictvím velkoformátových prvků o rozměrech 4 x 3 m si obyvatelé domu mohou regulovat míru otevřenosti a uzavřenosti prostor a tím i prolínání vnitřku s venkem podle počasí, ročního období nebo aktuální nálady. V rámci pláště budovy tento dům disponuje trvale otevřenými, variabilními i uzavřenými prostory, které nabízejí vysokou míru přirozeného osvětlení i panoramatické výhledy.

Otevírací posuvný systém před prostornou jídelní částí: Kolejnice zapuštěné v podlaze zajišťují bezbariérový pohyb (posuvný systém Schüco ASS 77 PD.NI)

Klíčová slova:

Schüco Španělsko

Mohlo by vás zajímat

Generální partner
Hlavní partneři