Architektura / rodinné domy

Vila u Bratislavy nabízí velikou terasu a neobvykle vysoký interiér

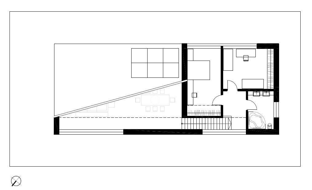
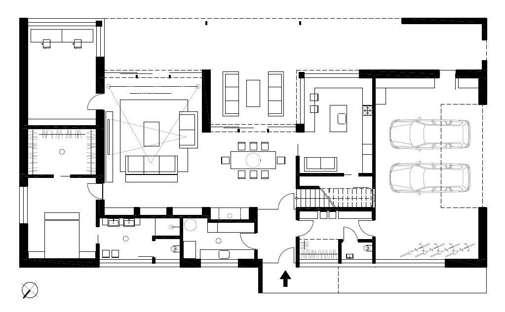
Na jihu Slovenska se často staví domy s takzvanými „gánkami“ - podlouhlými otevřenými verandami připomínajícími zastřešený chodník na jižní straně domu. Slouží ke stínění oken a posezení, mívají ho především chalupy a staré domy. Ateliér Pokorný architekti tento prvek ve vile na bratislavském předměstí přeměnil do moderní podoby.

POKORNY ARCHITEKTI , 16. 2. 2018

  • Autoři: Pavol Pokorný
  • Ateliér: POKORNY ARCHITEKTI
  • Spolupráce: Bjorn Kierulf, Tomáš Ružiak, Patrícia Botková
  • Země: Slovensko
  • Realizace: 2017
  • Zodpovědný projektant: Bjorn Kierulf
  • Generální dodavatel: KONTRAKTING STAVEBNÉ MONTÁŽE
  • Město: Bratislava - Záhorská Bystrica
  • Datum projektu: 2016
  • Realizace: 2017
  • Užitná plocha: 320.00m2
  • Zastavěná plocha: 310.00m2
  • Materiál: dřevo

Mohlo by vás zajímat

Generální partner
Hlavní partneři