
Bílá dominanta, která chrání své hosty i okolí
Mezi bytovými domy, jež se probojovaly až do finále letošní ceny Miese van der Rohe, je značné množství sociálních projektů. Veřejná zakázka na bydlení se totiž nemusí vylučovat s kvalitním architektonickým provedením. Jak říkají autoři tohoto bruselského počinu, „dům sice poskytuje přístřeší pro lidi v nouzi, ale k sociálnímu bydlení by se nemělo přistupovat jinak než k jakékoliv jiné prestižní veřejné budově.“ Svou realizací potvrzují vlastní slova. V Bruselu tak vyrostl dům, který je zároveň přístřeškem pro lidi v nouzi, dominantou okolí, bariérou před přilehlou dálnicí i vzpomínkou na bruselské art-deco.
MSA / V+ , 16. 3. 2017
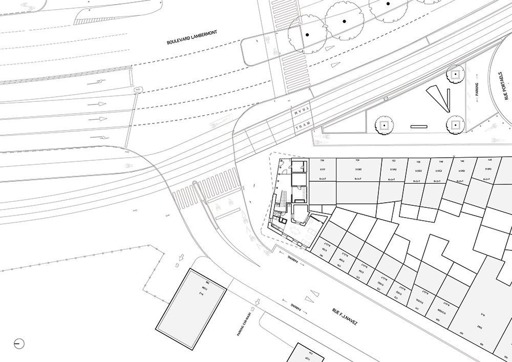
Bruselský dům sociálního bydlení NAVEZ naplňuje ambice místní samosprávy hned dvojím způsobem: jednak je dostatečně reprezentativní a tvoří orientační bod při vstupu do města, jednak nabízí exemplární byty pro velké rodiny. V domě lze nalézt světlé a pasivní byty a jako takový navíc navazuje dialog s okolními ulicemi a historickým sousedstvím.
Stavba, jež je umístěna na jedné z hlavních bruselských příjezdových cest, představuje součást programu sociálního bydlení a zároveň je vlajkovou lodí projektu, který si klade za cíl vtisknout okolí novou identitu. Budova poskytuje solidní a komfortní zázemí pro rodiny v nouzi. Do ulice se otvírá tupým úhlem a vítá příchozí a návštěvníky hlavního města. Dům je živoucí obhajobou kvalitní architektury dostupné každému.
Budova uzavírá trojúhelníkový blok. Její fasáda, pokrytá hladkými cihlami, si pohrává se světlem věčně proměnlivé belgické oblohy. Textura fasády je ozvěnou svého okolí, vyznačujícího se množstvím detailů, a statečně čelí mohutné silniční a železniční infrastruktuře.
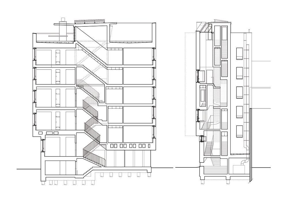
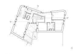
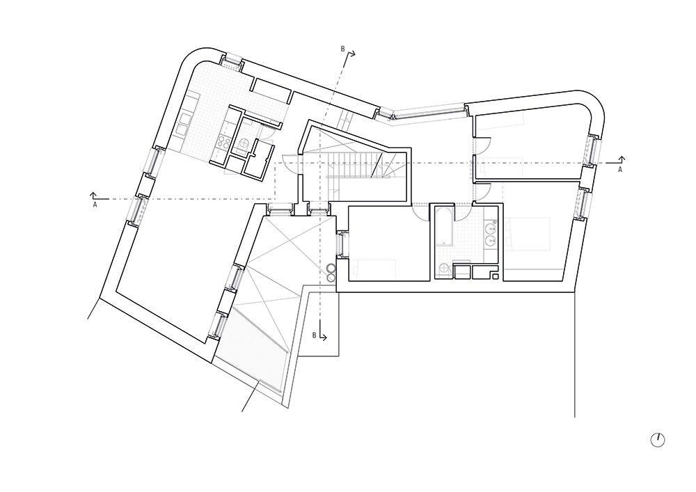
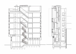
Dům musí podobně jako mnoho jiných bruselských staveb čelit úchvatnému, ale zároveň obtížnému kontextu. Na severní straně se vyrovnává s malou a hlučnou parcelou. Podlouhlé byty se vinou k vnitřnímu dvoru na jihu a vše propojuje vnitřní systém schodišť. Rozvržení budovy, spletené jako utažené tkaničky od bot, a vnitřní dispozice bytů, jež variují od místností rozložených v nestejné výšce až po mezonety, jsou vymyšleno tak, aby světlo do každé jednotky přicházelo z celkem 4 různých os a aby měl každý byt svůj vnější prostor a poskytoval zajímavé výhledy.
Více k tématu

Jelikož dům je zdáli viditelný, byla na něj kladena značná očekávání. Bylo třeba podniknout důkladný participační proces a navázat dialog s budoucími obyvateli i s rozličnou administrativou. Díky tomu mohly být odhaleny, odstraněny či vylepšeny všemožné urbanistické a architektonické problémy, předešlo se chronickým bruselským sporům a dokonce se mohlo přistoupit i k překročení některých striktních stavebních regulací.
Dům sice poskytuje přístřeší pro lidi v nouzi, ale k sociálnímu bydlení by se nemělo přistupovat jinak než k jakékoliv jiné prestižní veřejné budově. Budova nabízí důstojné žití, jeho dispozice mají uklidňovat a dávat pocit jistoty; dá se zde pořádně vyspat a – navzdory rozšířené praxi zákazů a omezení v přechodných bytech – je povoleno zde zatloukat hřebíky do zdi.
Díky mimořádně důkladné zvukotěsné izolaci (se ztrojeným sklem), vyvážené ventilaci s rekuperací tepla a solárním panelům určeným na ohřev vody je budova pasivní (má spotřebu pod 15 kWh/m2). Pohodlí a nízká spotřeba obyvatel je tak zajištěna, a to aniž by se nájemníkům znemožňovalo otvírat všechna okna.
Cena údržby byla snížena na minimum absencí klimatizace i výtahu i tím, že se přirozené denní světlo dostane téměř do všech místností. Dělníci na stavbě byli speciálně instruováni, aby dokázali skládat delikátní bílé zdivo a budova získala svou charakteristickou texturu, pohrávající si s dopadajícím světlem a zároveň vzdávající hold bruselskému dekorativnímu slohu.


- Autoři: Alain Simon, Jean-Marc Simon, Benoit Moritz, Julien Deloffre, Thierry Decuypere
- Ateliér: MSA / V+, MSA / V+
- Země: Belgie
- Město: Brusel
- Realizace: 2015
- Užitná plocha: 800.00m2
- Plocha pozemku: 156.00m2
- Poznámka: foto © Serge Brison