Bydlení s výhledem na motorku
Býval zde sklad, dnes na jeho místě stojí rodinný dům. Industriální duch ale zůstal. Projevuje se v pohledových betonech i černých prvcích interiéru, zatímco textilie sem vnášejí pocit útulna.
Adéla Vaculíková , 29. 1. 2026
„Dovedete si představit, že byste bydleli v bývalé průmyslové hale?“ ptají se architektky Kateřina Horych a Lucie Streďanská. Pro své klienty v Kloboukách u Brna takové bydlení skutečně navrhly – původně šlo o sklad.
Cesta k výsledku ale nebyla jednoduchá. „Z původního objektu nakonec zbyl jen půdorys a tři obvodové stěny. Výsledná stavba je o metr a půl vyšší, ale stále v sobě nese industriální charakter původní stavby,“ přibližují proces architektky. Samy se projektu ujaly ve chvíli, kdy už byla hotová hrubá stavba, a navázaly návrhem interiéru – právě na něj se studio Atel!er specializuje.
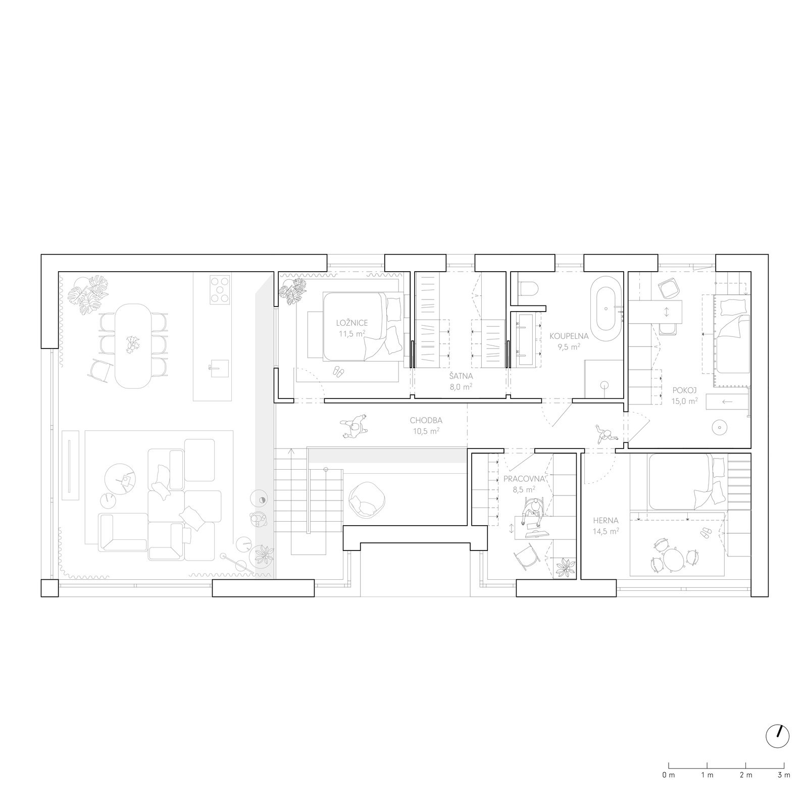
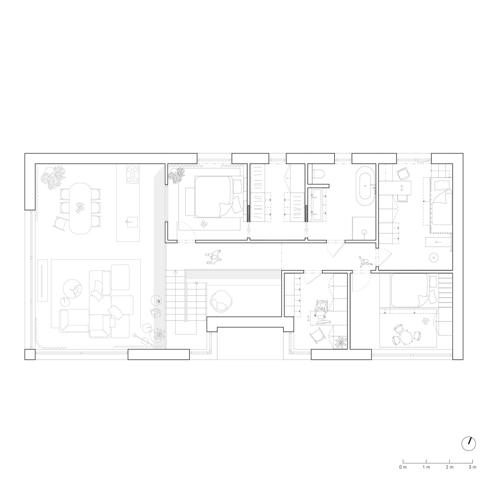
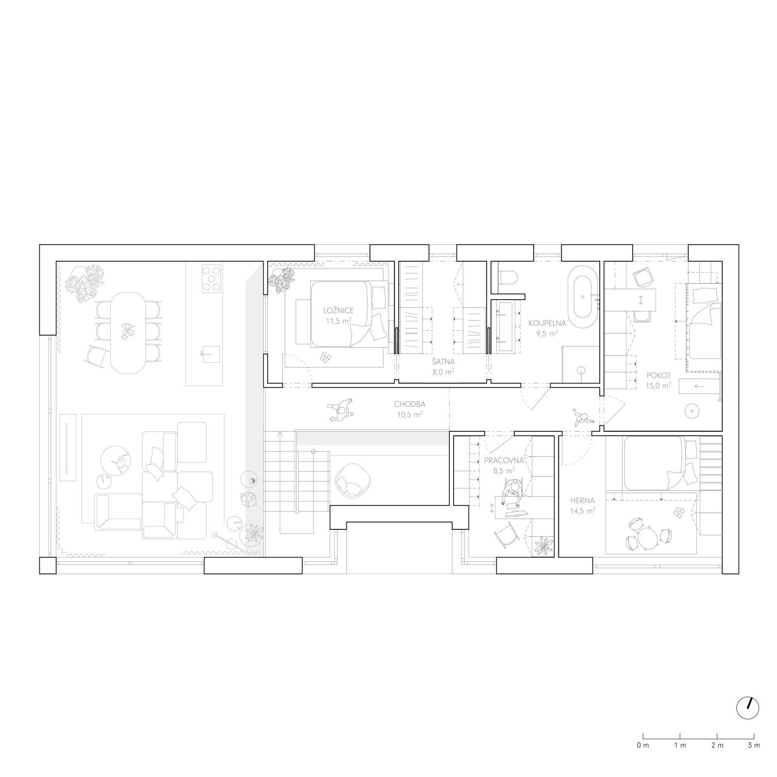
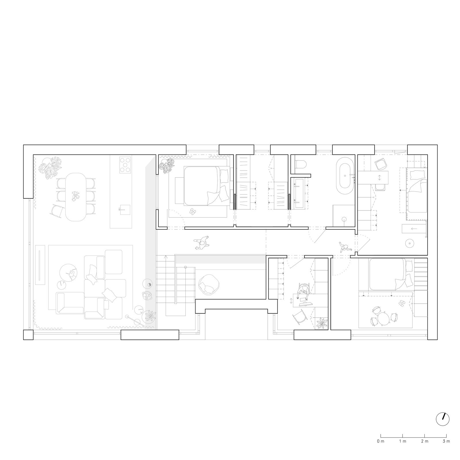
Bydlení má dvě podlaží. V přízemí se nachází hlavní obytný prostor s kuchyní, jehož výrazným specifikem je převýšení až pod střechu. Díky dvěma úrovním oken je prostor intenzivně zalitý přirozeným světlem. Barevné ladění interiéru je střídmé – černé prvky, jako jsou bočnice schodiště, krb, kuchyňský ostrůvek nebo kliky, souzní s industriální historií místa. Použité dekory dřeva naopak vnášejí do interiéru hřejivost.

„Kuchyň v hlavním obytném prostoru jsme pojali jako vestavěný dubový ‚kontejner‘, který lze celý uzavřít do jednolitého minimalistického bloku,“ dodávají architektky. Tento „kontejner“ je přitom klíčový i pro další prostorové řešení přízemí. Skrývá totiž vstupní niku, šatnu, WC i technickou místnost, přes kterou je možné projít do navazující garáže.

Nejde ovšem o garáž jako každou jinou – i její interiér je designérsky řešený a z předsíně je do něj vidět skrze velkoformátové prosklení. Pohled se sem otevírá dokonce i z gauče v obývacím pokoji.
Patro je pak vyhrazené soukromým pokojům. Přímo nad kuchyní se nachází hlavní ložnice s kruhovým oknem, kterým je možné shlédnout dolů do obytného prostoru. „Celý rodičovský trakt je navíc propojen posuvnými dveřmi, díky nimž šatna navazující na koupelnu působí jako vestavěná skříň skrytá za obloženým čelem postele,“ popisují řešení prostoru architektky.
Více k tématu
Další dva pokoje slouží dětem. V jednom se nyní spí, druhý funguje jako herna, do budoucna je ale možné je snadno proměnit na dva samostatné dětské pokoje. „Proto je návrh materiálově neutrální a ‚rostoucí‘ – snadno se přizpůsobí měnícím se potřebám,“ vysvětlují architektky. Vybavení působí nadčasově, zároveň ale obsahuje řadu herních prvků: žebřiny, nástěnky na kreslení fixami i magnety. Ty jsou tvarované do oblouku, stejně jako zrcadla, takže spolu vzájemně ladí.

Co je pro všechny pokoje společné, je přítomnost pohledového betonu. Právě ten interiéru propůjčuje jeho syrovou atmosféru, pro architektky ale zároveň představoval výzvu – především z hlediska akustiky. Aby se zvuk, zejména v převýšeném obytném prostoru, tolik netříštil, pracovaly v návrhu s větším množstvím textilií. Od klasických závěsů a koberců až po méně obvyklá látková stínidla svítidel nebo akustické panely české značky Lappa, známé například z Designbloku. Tyto prvky industriálně pojatý interiér změkčují a navozují pocit domova.
- Ateliér: Atel!er
- Autoři: Kateřina Horych, Lucie Streďanská
- Spolupráce: Klára Kováčiková
- Země: Česká republika
- Projekt: 2024
- Realizace: 2024-2025
- Fotograf: Tomáš Slavík
- Město: Klobouky u Brna
- Generální dodavatel: more energie s.r.o.