 
				
					
                    					1/20
				
			 
						
				 
				
					stempel & tesar architekti, Rodinný dvojdům v Českém ráji – foto
                                            Foto: Fotes
                    					2/20
				
			 
						
				 
				
					stempel & tesar architekti, Rodinný dvojdům v Českém ráji – foto
                                            Foto: Fotes
                    					3/20
				
			 
						
				 
				
					stempel & tesar architekti, Rodinný dvojdům v Českém ráji – foto
                                            Foto: Fotes
                    					4/20
				
			 
						
				 
				
					stempel & tesar architekti, Rodinný dvojdům v Českém ráji – foto
                                            Foto: Fotes
                    					5/20
				
			 
						
				 
				
					stempel & tesar architekti, Rodinný dvojdům v Českém ráji – foto
                                            Foto: Fotes
                    					6/20
				
			 
						
				 
				
					stempel & tesar architekti, Rodinný dvojdům v Českém ráji – foto
                                            Foto: Fotes
                    					7/20
				
			 
						
				 
				
					stempel & tesar architekti, Rodinný dvojdům v Českém ráji – foto
                                            Foto: Fotes
                    					8/20
				
			 
						
				 
				
					stempel & tesar architekti, Rodinný dvojdům v Českém ráji – foto
                                            Foto: Fotes
                    					9/20
				
			 
						
				 
				
					stempel & tesar architekti, Rodinný dvojdům v Českém ráji – foto
                                            Foto: Fotes
                    					10/20
				
			 
						
				 
				
					stempel & tesar architekti, Rodinný dvojdům v Českém ráji – foto
                                            Foto: Fotes
                    					11/20
				
			 
						
				 
				
					stempel & tesar architekti, Rodinný dvojdům v Českém ráji – foto
                                            Foto: Fotes
                    					12/20
				
			 
						
				 
				
					stempel & tesar architekti, Rodinný dvojdům v Českém ráji – foto
                                            Foto: Fotes
                    					13/20
				
			 
						
				 
				
					stempel & tesar architekti, Rodinný dvojdům v Českém ráji – foto
                                            Foto: Fotes
                    					14/20
				
			 
						
				 
				
					stempel & tesar architekti, Rodinný dvojdům v Českém ráji – foto
                                            Foto: Fotes
                    					15/20
				
			 
						
				 
				
					stempel & tesar architekti, Rodinný dvojdům v Českém ráji – foto
                                            Foto: Fotes
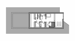
                    					16/20
				
			 
						
				 
				
					stempel & tesar architekti, Rodinný dvojdům v Českém ráji, půdorys 1. PP – foto
                                            Foto: archiv autorů
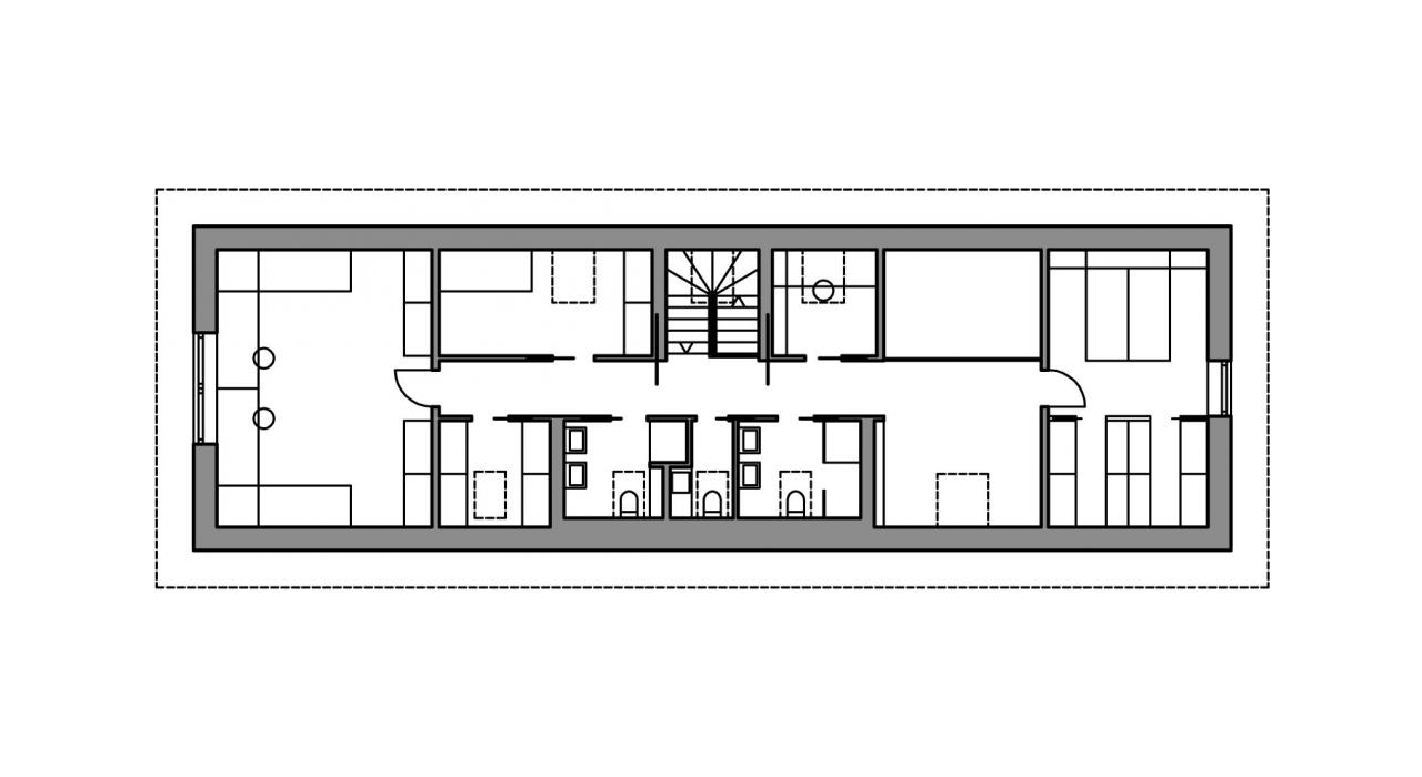
                    					17/20
				
			 
						
				 
				
					stempel & tesar architekti, Rodinný dvojdům v Českém ráji, půdorys 1. NP – foto
                                            Foto: archiv autorů
                    					18/20
				
			 
						
				 
				
					stempel & tesar architekti, Rodinný dvojdům v Českém ráji, půdorys 2. NP – foto
                                            Foto: archiv autorů
                    					19/20
				
			 
						
				 
				
					stempel & tesar architekti, Rodinný dvojdům v Českém ráji, řez příčný – foto
                                            Foto: archiv autorů
                    					20/20