Byt z „devadesátek“ dostal novou podobu – po třiceti letech byl morálně zastaralý
Pražské studio MENU architekti upravilo byt ve Strašnicích pro tříčlennou rodinu. Typické 3+kk má po rekonstrukci svěží, jednoduchý, nadčasový design, který bude zase pár desetiletí sloužit.
Sára Kročková , 20. 2. 2024
V mladém architektonickém ateliéru MENU architekti navrhují interiéry, rekonstrukce, novostavby, ale i větší urbanistické celky. Postupně se rozrůstající tým pracuje ze své kanceláře na Vinohradech. A právě nedaleko Vinohrad – v pražských Strašnicích – zrenovovali byt v domě z počátku devadesátých let.
Více k tématu
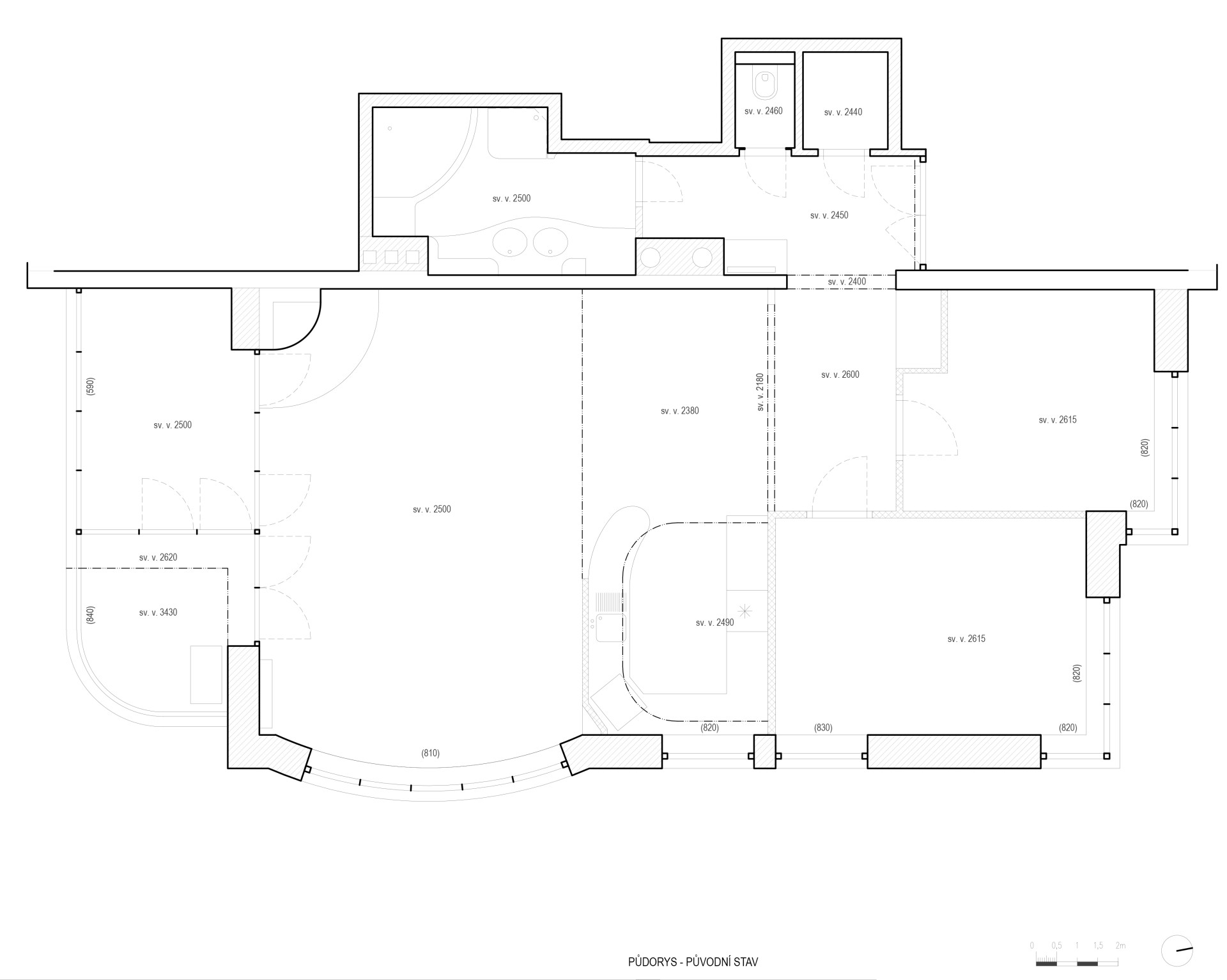
Původní vzhled bytu byl typicky „devadesátkový“. Žlutá výmalba, bambusové rolety, sádrokartonový podhled s okrasnou lištou, drahé materiály a zařizovací předměty majitelům již nevyhovovaly. „Bylo to všechno poplatné své době,“ popisují situaci architekti a doplňují příběh o tom, jak se ale přeci jen nějaké materiály z domu podařilo znovu využít. „Mramor kterým byla obložená celá koupelna jsme nevyhodili a na několik let ho uskladnili v dílně. Jednou si ho tam náhodou všimly kamarádky z Narro Office a využily ho do svého projektu na stolky do pizza bistra Slice Slice Baby na Praze 7, které se teď dokončilo. Mramor se pouze očistil, naformátoval a dnes slouží v jiné formě,“ vypráví architekt Pavel Mahdal.

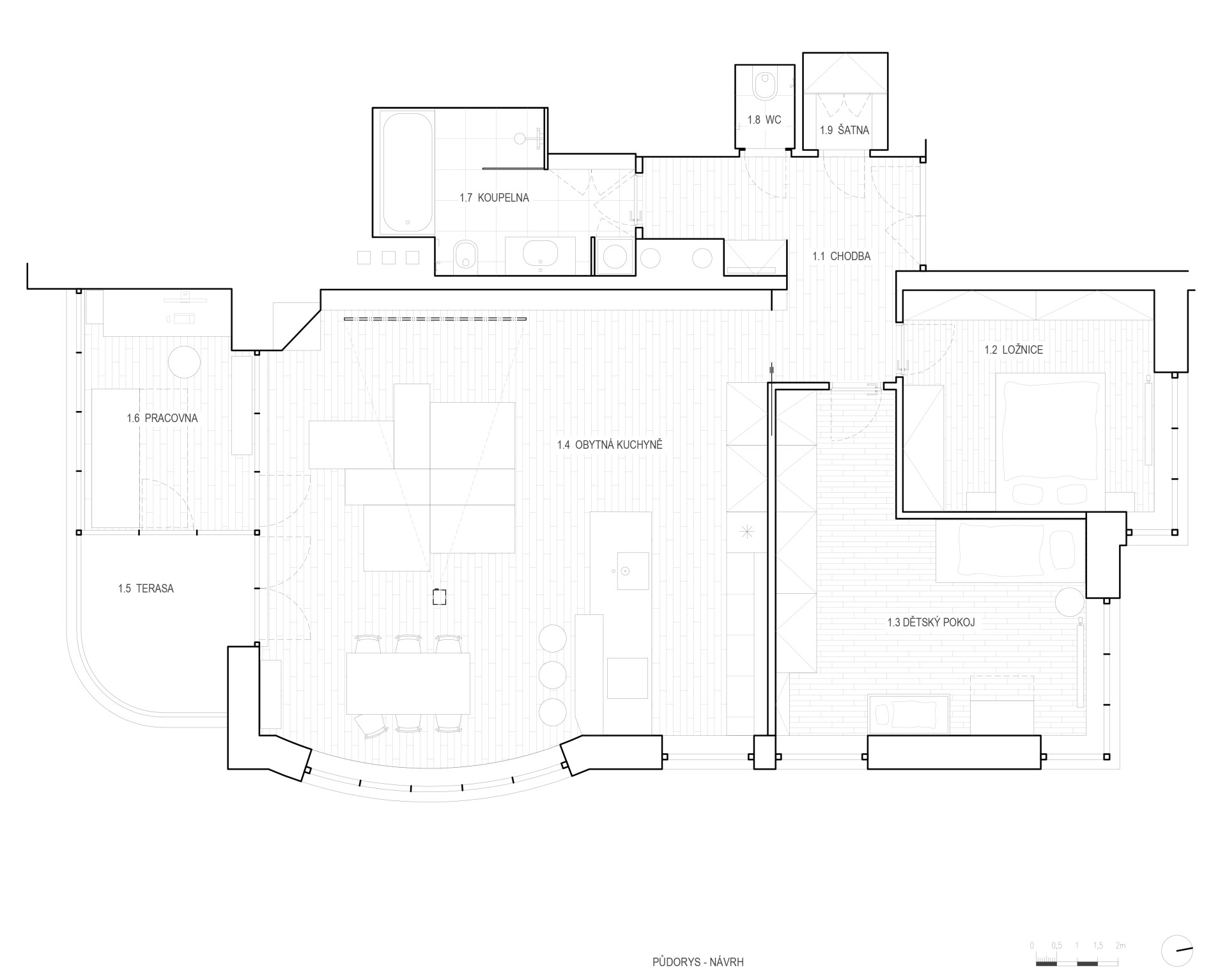
Srdcem bytu pro rodinu se dvěma dětmi je obývací pokoj propojený s kuchyní a jídelnou – v původní dispozici byly oddělené, teď je rodina víc pospolu. „Ten, kdo je v kuchyni může pohodlně komunikovat se zbytkem osazenstva v obývací části,“ vysvětlují autoři. Dominantním prvkem této místnosti je dubová knihovna, kde je vidět nejedno dílo o architektuře, kterou mají obyvatelé rádi. Knihovny je přerušená vystupujícím krbem, takže nepůsobí monotónně.
Dubovou dýhu na podlaze a knihovně architekti zkombinovali s teple šedobéžovou kuchyní. Kuchyně s ostrůvkem je velmi prostorná a vzdušná. Některé skříňky nahradily police, na kterých si majitelé mohou vystavit třeba oblíbené nebo často používané kusy nádobí. Výrazným prvkem je digestoř zavěšená na kovové konstrukci, jež do kuchyně vnáší lehce industriální charakter.

Proslunění obytné části bytu zajišťuje velká míra prosklení. Zejména francouzská okna na terasu a do pracovny v kombinaci s okny v oblé stěně u jídelního stolu vnáší do prostoru dostatek denního světla.
Podobné odstíny a materiály jako v obývacím pokoji se prolínají celým bytem. Dřevo a šedobéžový nábytek najdeme i v ložnici rodičů a dětském pokoji. Koupelna je zase doplněna jemným béžovým obkladem z teraca. Interiér tak působí sjednoceným a nadčasovým dojmem.
- Ateliér: MENU architekti
- Země: Česká republika
- Město: Praha - Strašnice
- Realizace: 2022
- Užitná plocha: 113 m²
- Fotograf: Radek Úlehla
- Truhlářské prvky: 23pm