Bytový komplex Pri Mýte vznikl na místě bratislavského brownfieldu
Slovinské studio Arhitektura Krušec rozehrálo šachovou partii v podobě bytového komplexu v širším centru Bratislavy. Celkem devět bytových domů se pravidelně střídá s volnými veřejnými prostory, stejně jako černá a bílá na šachovnici. Racionální řešení urbanismu i samotných domů kontrastuje s „živým“ vlněním zeleného parteru, který vybízí k aktivnímu využívání.
EARCH.CZ , 7. 10. 2018
Na místě bývalé bratislavské železniční stanice, mezi ulicemi Račianskou, Kominárskou a Škultétyho, vyrostlo celkem devět bytových domů tvořících dohromady zcela nový obytný komplex s názvem „Rezidence Pri Mýte“. Autory návrhu jsou slovinští architekti z ateliéru Arhitektura Krušec s bohatým portfoliem projektů realizovaných od Slovinska po Finsko. Jejich vize obytného komplexu zvítězila v soutěži z roku 2012, letos si pak projekt vysloužil nominaci na slovenské ceny CEZAAR 2018. Ve své práci spolupracoval slovinský tým s domácími Vallo Sadovsky Architects (autory například rezidenčního komplexu Nová Terasa v Košicích), o řešení krajinné architektury se pak postarali jejich slovinští krajané ze studia AKKA.
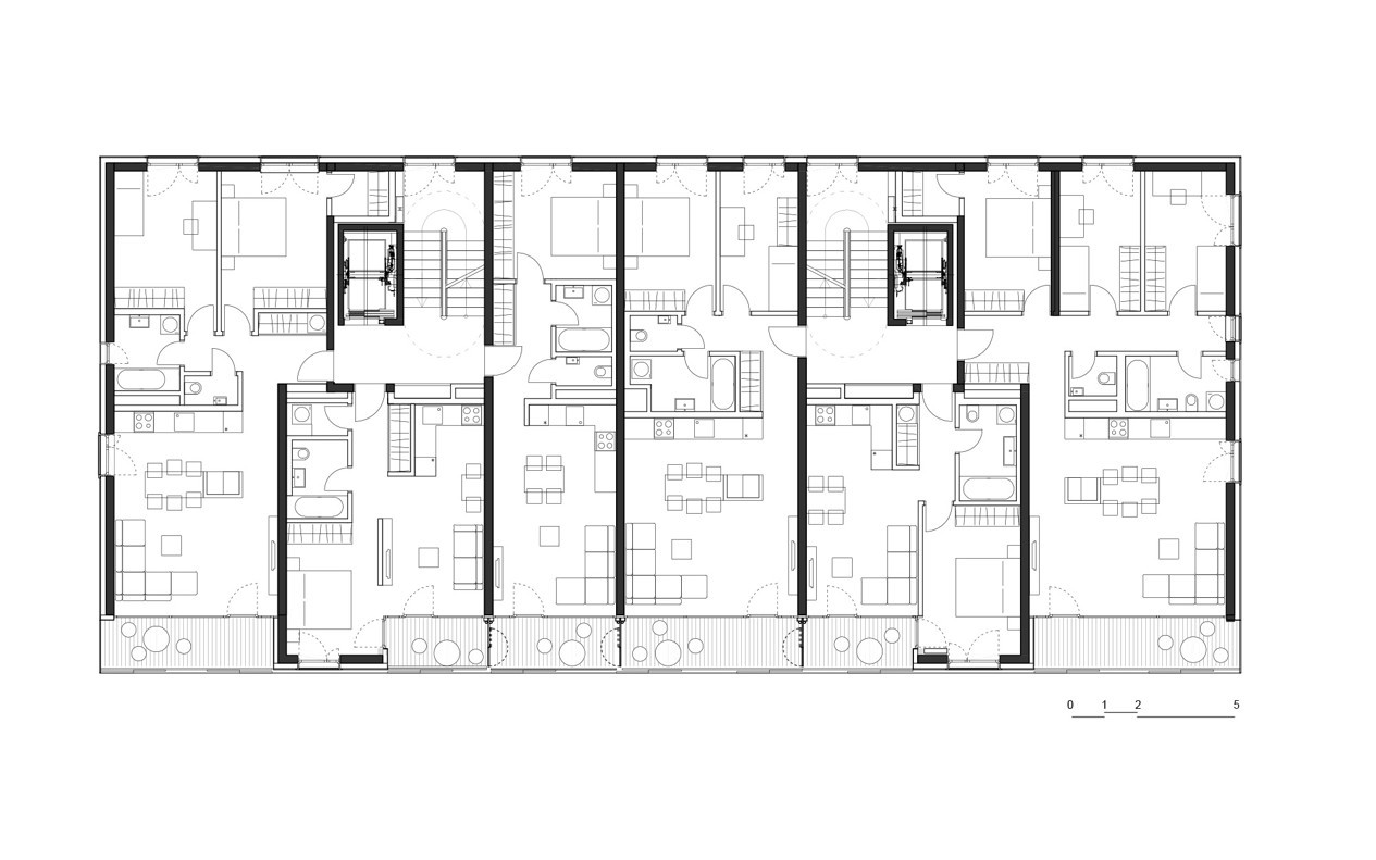
Při návrhu projektu Pri Mýte se architekti inspirovali výstavbou místních obytných bloků po 2. světové válce – komplex se proto nese ve velice racionální rovině a má jasná pravidla. Urbanistický koncept souboru stojí na šachovnicovém rozmístění jednotlivých objektů kolem centrální osy. Toto rozmístění umožňuje výhledy napříč „sídlištěm“, zároveň obyvatelům jednotlivých budov, navzdory poměrně husté zástavbě, přináší maximální míru intimity.
Realizace projektu probíhala ve dvou etapách. Během první vznikly celkem čtyři šestipodlažní domy, později je druhá fáze doplnila o dalších pět objektů. Součástí devítičlenného komplexu je také dvanáctipodlažní výšková budova, v jejíchž nejvyšších patrech se nacházejí nejluxusnější a nejprostornější byty. Rezidence Pri Mýte disponuje celkem 329 bytovými jednotkami, přičemž většinou se jedná o dvou až tří pokojové byty.
Z konstrukčního hlediska jsou bytové domy navrženy jako železobetonový skelet vyplněný nenosným keramickým zdivem. Tvarově jednoduché objekty oživuje systém posuvného stínění z děrovaného plechu, dodávající plošným fasádám plastický dojem. Racionalita, jednoznačnost i nevýrazné barevné řešení hmot jednotlivých domů kontrastuje s jemným organickým vlněním zeleně v parteru. Vegetace v podobě nízkých záhonků, obíhajících domy po celém obvodě, vytváří také jasně definovanou hranici mezi veřejným a soukromým prostorem. Veškeré parkování je zajištěno pod lehce zvednutou zelenou platformou poloveřejné promenády.
Projekt Rezidence Pri Mýte byl nominován na CEZAAR 2018.
- Ateliér: Arhitektura Krušec d.o.o.
- Autoři: Tomaž Krušec, Lena Krušec, Vid Kurinčič
- Spolupráce: Tomáš Bartko, Ana Kučan, Luka Javornik
- Země: Slovensko
- Město: Bratislava
- Datum projektu: 2012
- Realizace: 2018


