
Decentní moderní dostavba starého zámku
Hovoří-li se o dostavbách historických budov, nota bene zámků a hradů, nejednomu vstávají vlasy hrůzou na hlavě. Intervence do starých městských domů, činžáků a továren si dokážeme představit přeci jen s lehčím srdcem než zásahy do paláců nebo kostelů. Architekti z ateliéru Baukunst nedělali okolky a do zámku v belgickém Spa vstoupili suverénní a sebevědomou betonovou a ocelovou konstrukcí. Jejich počin je ale proveden tak decentně a elegantně, že skoro vypadá, jako by ho zamýšlel už původní architekt zámku. Zasloužené finále letošní ceny Miese van der Rohe.
Josef Řídký , 5. 4. 2017
Projekt se nachází v areálu zámečku La Fraineuse, pocházejícího z 19. století, tedy v zalesněném údolí, které zároveň slouží jako veřejný sportovní areál. Topografie celého místa i jeho funkce se potom pro projekt „Polyvalentní infrastruktury“, jak se celý záměr nazývá, ukázaly určujícími.
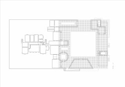
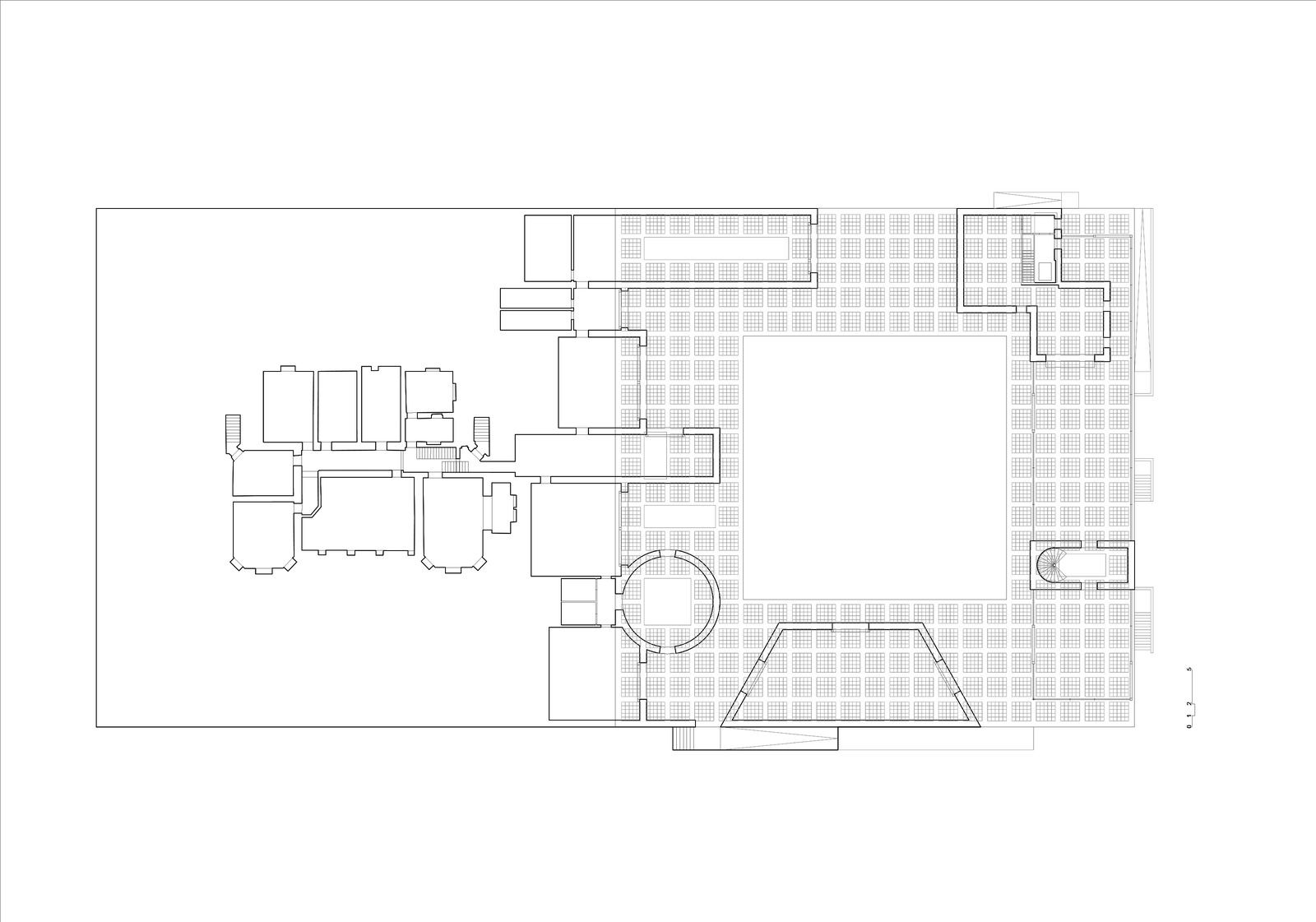
Objekt Polyvalentní infrastruktury je zasazen do svahu pod zámkem – nebo lépe přímo do zámku: stává se jeho soklem, dvorem, prodloužením, podložím i okolím. Nedoplňuje však pouze budovu zámku, ale i jeho náplň. V zámeckých zahradách se totiž nachází hned několik sportovišť, jejich správa, administrativa, bufety atd. Nový objekt tvoří přechod mezi památkově chráněným reprezentativním prostorem a ryze praktickými a profánními funkcemi v jeho okolí. Představuje cosi jako předsíň, je uvítacím dvorem, místem pro setkání, ale i kulisou pro významné události a ze zámku tak opět činí těžiště areálu.
Pro Polyvalentní strukturu jsou její venkovní prostory stejně důležité jako ty vnitřní. Zámeckou budovu otvírají do údolí a mezi oběma světy navazují dialog. Funkce areálu činí vzájemně propustnými. Sama se přitom stává něčím víc než jen součtem svých funkcí; stává se vskutku částí infrastruktury – křížením, bodem střetu, přechodu a přerodu jedné funkce v druhou.
Centrálním bodem celého objektu je jeho nádvoří. Koncepce budovy je jen pozvolným rozvitím její vlastní konstrukce: opěrných zdí, na nichž leží monolit střechy. Zdi jsou z na místě odlitého betonu, střecha z montovaných ocelových profilů. Stěny vyrůstají organicky z terénu, čtverhranná ocelová konstrukce působí jako objekt sám pro sebe, stojí v očividném kontrastu ke svému okolí. Lakonické provedení se ovšem otvírá různorodým druhům užití. Přestože na první pohled vypadá vůči zámku velmi cize, stává se jeho přirozenou a nedílnou součástí. Skoro jako by se architekt původní historické stavby prostě rozhodl v půlce práce pouze změnit styl, i když jeho záměr zůstal nezměněn. Polyvalentní infrastruktura tak dokončuje větu, jejíž začátek byl vysloven v předminulém století.
- Autoři: Adrien Verschuere
- Ateliér: BAUKUNST
- Země: Belgie
- Město: Spa
- Realizace: 2016
- Užitná plocha: 1 850.00m2
- Plocha pozemku: 25 000.00m2
- Poznámka: foto © Hélène Binet