Děti se tu mohou svěřit nebo si hrát. Klub Relax je v Nové Pace hned vedle kostela
Ne každé dítě má doma, kde si udělat úkoly a s kým řešit svoje problémy. V Nové Pace může aspoň přijít do nízkoprahového klubu Relax. Dostane tu přátelské přijetí i architekturu.
Karolína Vránková , 20. 5. 2024
Výstavní novorenesanční škola stojí na náměstí v Nové Pace hned vedle kostela už víc než sto let. V posledních letech byla ale prázdná, jen v několika místnostech tu sídlil oblíbený nízkoprahový klub. Chodily sem děti, které neměly co dělat a domů se jim, často z dobrého důvodu, nechtělo. Mohly si tu pohrát, jít na internet, popovídat si.
Pak se ale město rozhodlo budovu znovu využít, zřídit tu pobočku Domu dětí a mládeže a prostory pro spolky. Nízkoprahový klub ale nezrušili, naopak vybudovali mu nadstandardní prostory v dříve nepoužívaném suterénu školy. Výstavba klubu a nyní i rekonstrukce celé budovy probíhá podle projektu ateliéru atakarchitekti z Liberce.

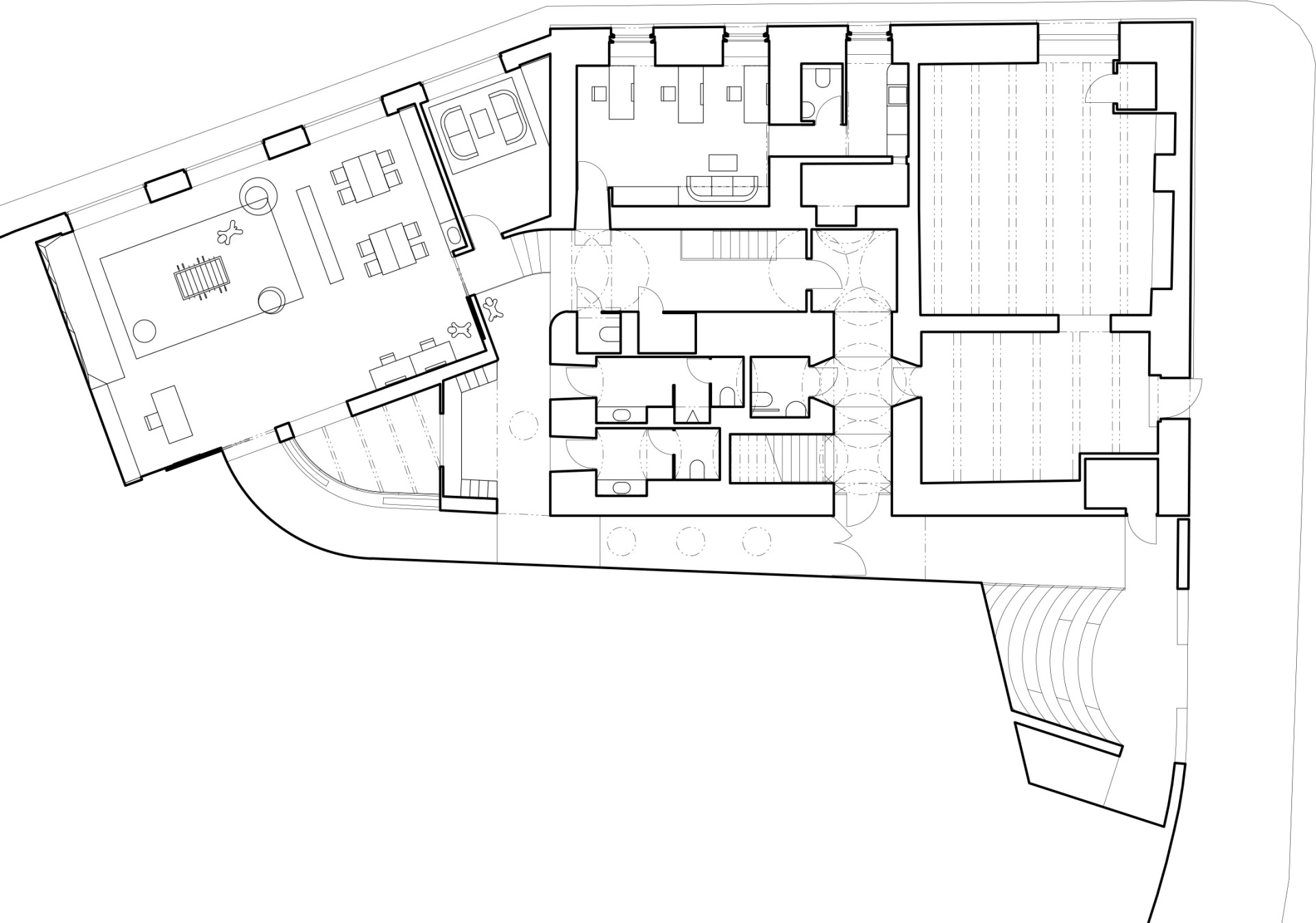
Příchozí projde novou podzemní chodbou do haly se šatnou, a pak pokračuje dále. Centrum nabízí menší místnosti, kde si mohou návštěvníci promluvit se sociálním pracovníkem. Je tu i počítačový koutek, relaxační místnost, část na pohyb s lezeckou stěnou i venkovní plácek. Světlo dovnitř přivádí kromě oken také velký světlík.

Nábytek je na míru ze dřeva a překližky se spoustou autorských detailů. Celkově to tu připomíná spíš soukromou školu než obvyklý omyvatelný a odolný interiér podobných zařízení – prý to však funguje překvapivě dobře a nikdo nic nepoškozuje. Uživatelé sami dali klubu název Relax. Může sem přijít každý od 6 do 26 let. Chodí prý všechny věkové kategorie z nejrůznějších rodin a s různými problémy – v klubu je pořád provoz.
Více k tématu
Také při pohledu zvenčí je to počin. Nová přístavba se nenápadně, ale suverénně začlenila do svého historického okolí. Mezi školu a kostelem přibylo schodiště a bezbariérová rampa, vedle školy nová přístavba. Vše je současné, zároveň si nový objekt vypůjčuje barokní křivky a využívá zdejší tradiční materiál pískovec. Za to vše byla stavba nominována na cenu Klubu Za starou Prahu pro novou stavbu v historickém prostředí.
- Ateliér: atakarchitekti
- Autoři: Jana Janďourková Medlíková, Jiří Janďourek
- Země: Česká republika
- Město: Nová Paka
- Adresa: Masarykovo náměstí 325, 509 01 Nová Paka, Česká republika
- Investor: Město Nová Paka
- Fotograf: Upreal Vision, Martin Zicha
- Zastavěná plocha: 305 m²
- Užitná plocha: 219 m²
- Obestavěný prostor: 1250 m³
- Projekt: 2016
- Realizace: 2021