
Dům navržený na míru stárnoucím rodičům
Nestává se často, že je projekt vybudován naprosto bezvadně, je citlivě koncipován do krajiny, má srdce i duši. Je pak skoro nemožné si k takovému domu nevytvořit emocionální pouto. Možná právě proto byl Shawn house nominován do britské ceny za architekturu RIBA 2017.
MawsonKerr Architects , 11. 10. 2017
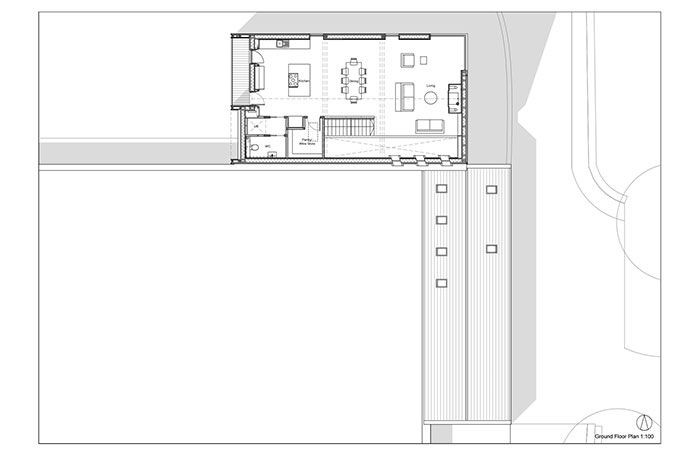
Richard Penderem navrhl pro své stárnoucí rodiče pohodlnější a snadno udržovatelné místo k životu. Dům jako by vyprávěl pozoruhodný příběh o celé rodině Penderových, je spojen s historickým statkem a s nekonečně mnoho zarámovanými výhledy na rustikální krajinu království Northumbrian propojují vnitřní svět s okolím.
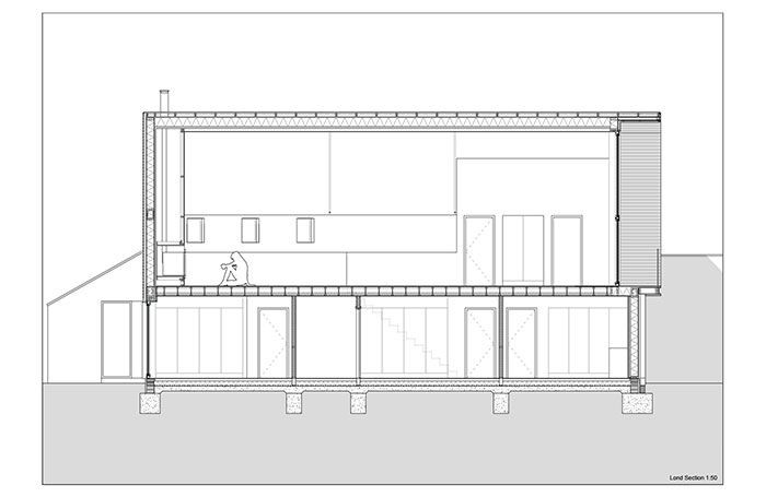
Úzká spolupráce architekta s projektantem Danem Kerrem má pozoruhodný výsledek. Záviděníhodná znalost konstrukční metodiky technologií umožnila velkorysé architektonické detaily. Budova stojí na místě staré stodoly, kde byl na zakázku vyroben dřevěný rám a obložení pro novou formu stavby. Ta je tak s krajinou spjata nejen vizuálně, ale její odkaz nese sama na sobě.
Projektový tým spojil své znalosti o pasivních domech s étosem pro udržitelný design a s environmentální přístupem k architektuře, jako je využívání lokálních materiálů z místních zdrojů, do jediného domu. Výsledkem je nízkoenergetická, ekologická a nízkouhlíková budova.
Celkové provedení konstrukce se v té nejvyšší kvalitě, porozumění konstrukčním detailům a jejich precizní provedení posouvají realizaci na ještě vyšší úroveň. Výstavba budovy podporující malé dodavatele by nebyla možná bez neustálé péče, pozornosti a praktických znalostí, které architekt Richard Pender projektu věnoval. Kolegovi Danu Kerrimu se podařila architektonická vize promítnout do reality bez větších změn.
- Autoři: Richard Pender
- Ateliér: MawsonKerr Architects
- Země: Velká Británie
- Město: Northumbrian
- Realizace: 2016
- Zastavěná plocha: 274.00m2
- Materiál: dřevo
- Foto ©: © Rob Rhodes