Architektura / rodinné domy

Geometrie íránské vily s inspirací tradiční perskou architekturou

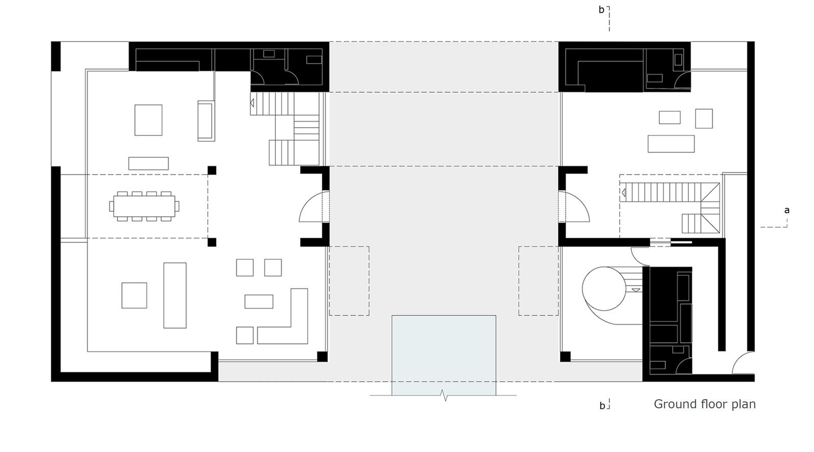
Monolitická, přísně geometrická hmota vily se klene nad velkým bazénem, který zabíhá až do vnitřního nádvoří. Tvar spolu s použitými materiály neutrálních barech minimalizuje vizuální dojem stavby po vzoru tradiční perské architektury.

EARCH.CZ , 26. 5. 2017

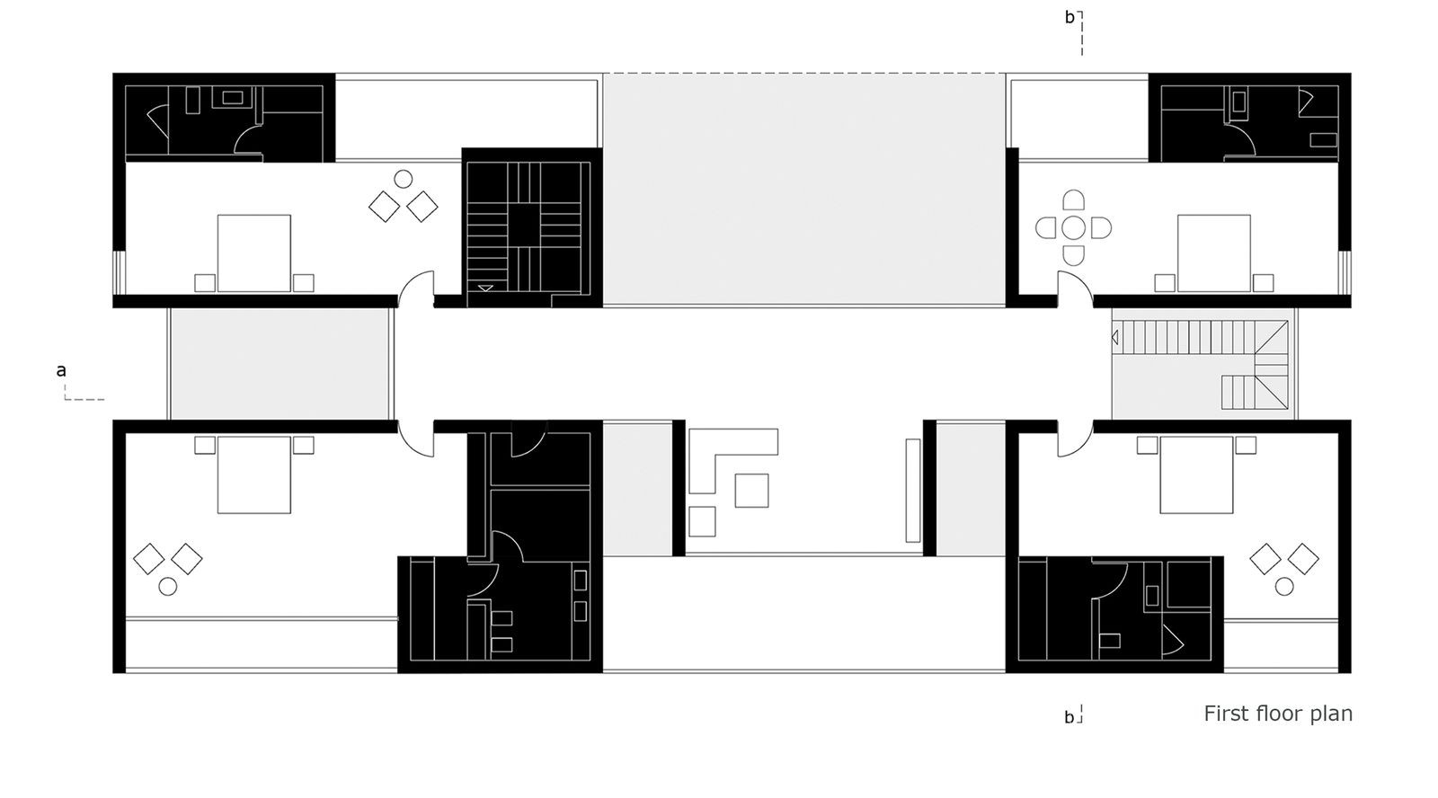
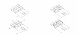
Na předměstí pátého nejlidnatějšího města Íránu Karadž navrhli místní architekti ze studia Kamran Heirati Architects soukromou rezidenci, která se klene nad plaveckým bazénem, jenž představuje ústřední prvek celého projektu. Vilu Safadasht tvoří dvě oddělené části, z nichž jedna slouží přímo bydlení, druhou pak definuje bazén a jacuzzi na centrálním dvoře.

Hmotu domu architekti navrhli tak, aby se stala jakýmsi mostem mezi dvěma částmi pozemku rozděleného vodní plochou. Striktně geometrická stavba nemá sama o sobě působit vizuálně násilným dojmem, ale je zamýšlena tak, aby se stala pouhým rámečkem pro výhled do okolí. V tom jí napomáhá také dominantní materiál – pohledový beton a lokální neleštěný kámen Esparakhon pocházející z ázerbájdžánského lomu. Kamenné desky tvoří obklad fasády i stěn v interiérech.

Po vzoru tradiční perské architektury se autoři návrhu snažili propojit budovu s okolní zahradou v jeden celek. Budovu určuje především jednoduchá, ovšem geometricky striktně pravoúhlá geometrie bez jakýchkoli doplňků, což byl hlavní záměr architektů. „Chtěli jsme zdůraznit přítomnost okolí, a to nejen jako pouhý exteriér, ale jako proud, který zabíhá i do interiéru budovy,“ sdělilo studio portálu Dezeen.

Aby mohlo uprostřed domu vzniknout klidné a otevřené nádvoří, došlo také k minimalizaci statických prvků. Hlavní pilíře jsou proto umístěny patnáct metrů od sebe po obou stranách bazénu a spojuje je hlavní průchod v úrovni prvního patra. Patro s přízemím propojují na obou koncích průchodu betonová schodiště. Při přímém slunečním osvětlení navíc dochází k působivé hře stínů od drátů použitých k zavěšení schodiště.

Projekt vily Safadasht vyhrál minulý rok jednu z nejprestižnějších architektonických cen v Íránu Memar Awards. Podle místních architektů se celá íránská scéna díky novým hospodářským podmínkám nachází na pokraji nové éry architektury.

  • Ateliér: Kamran Heirati Architects
  • Země: Irák
  • Realizace: 2016
  • Datum projektu: 2014
  • Realizace: 2016
  • Užitná plocha: 350.00m2
  • Zastavěná plocha: 1 100.00m2
  • Plocha pozemku: 2 400.00m2

Mohlo by vás zajímat

Generální partner
Hlavní partneři