Architektura / občanské stavby

Historické budovy v Dolních Břežanech slouží po pečlivé obnově původních prvků keltskému oppidu Závist

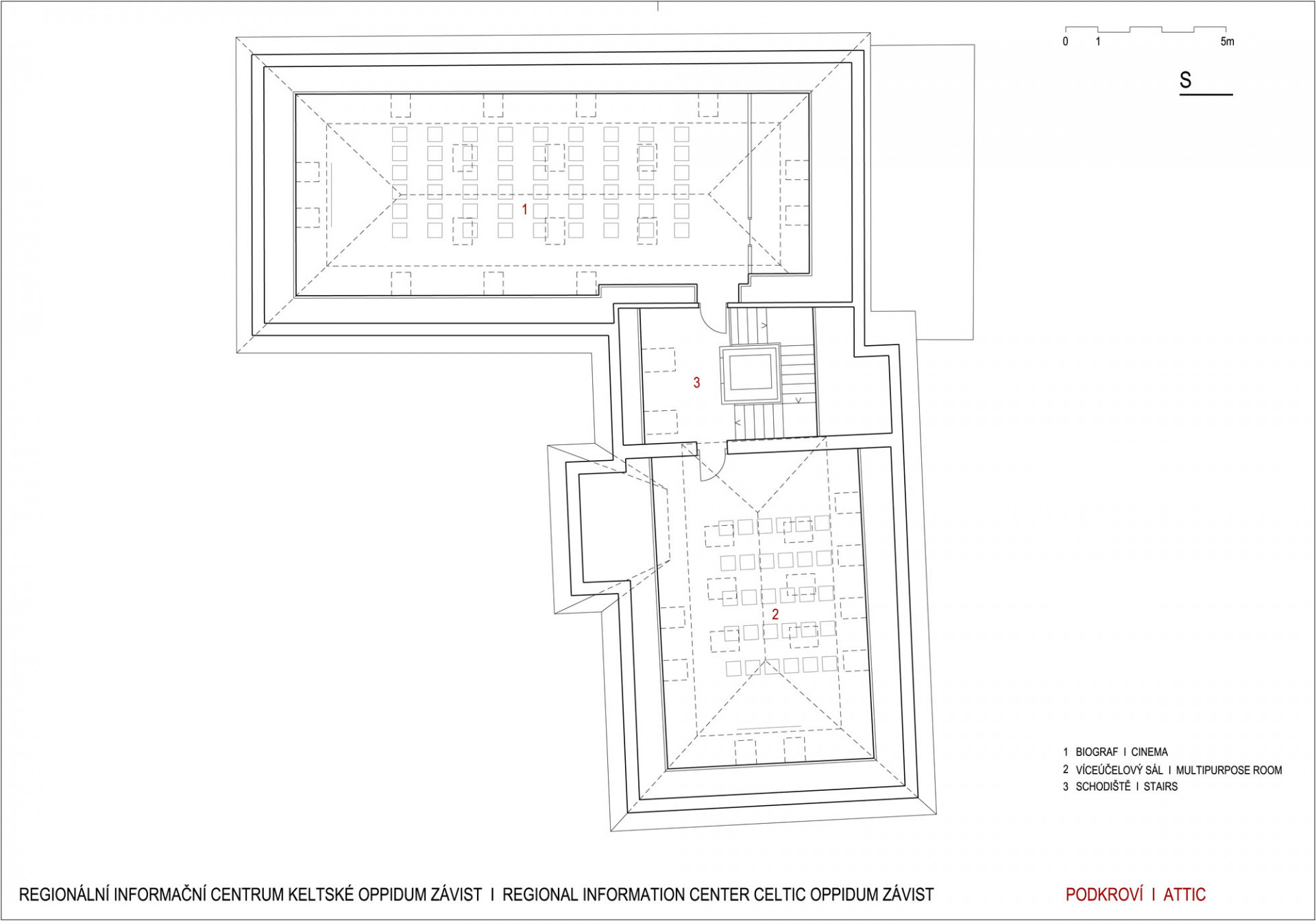
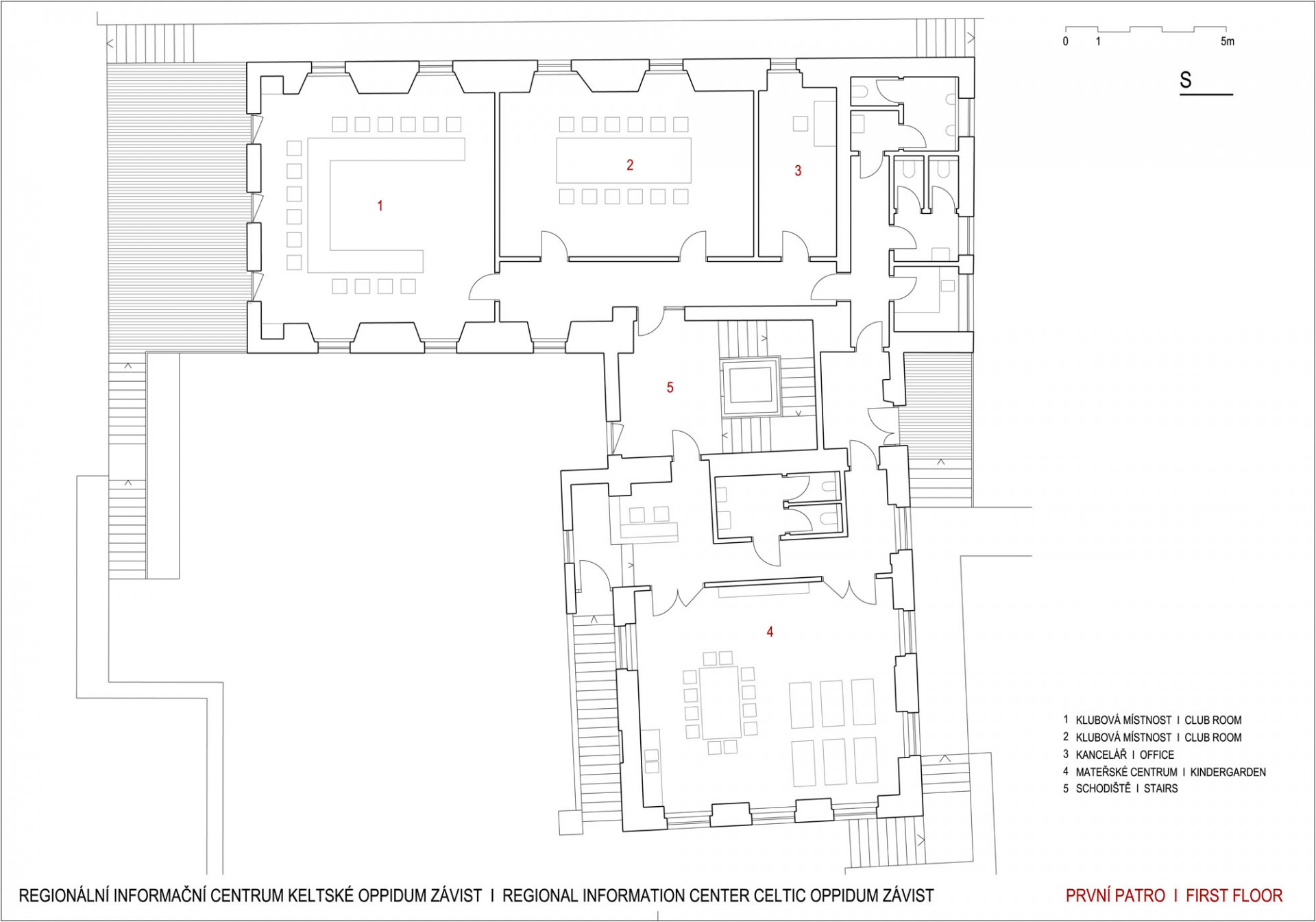
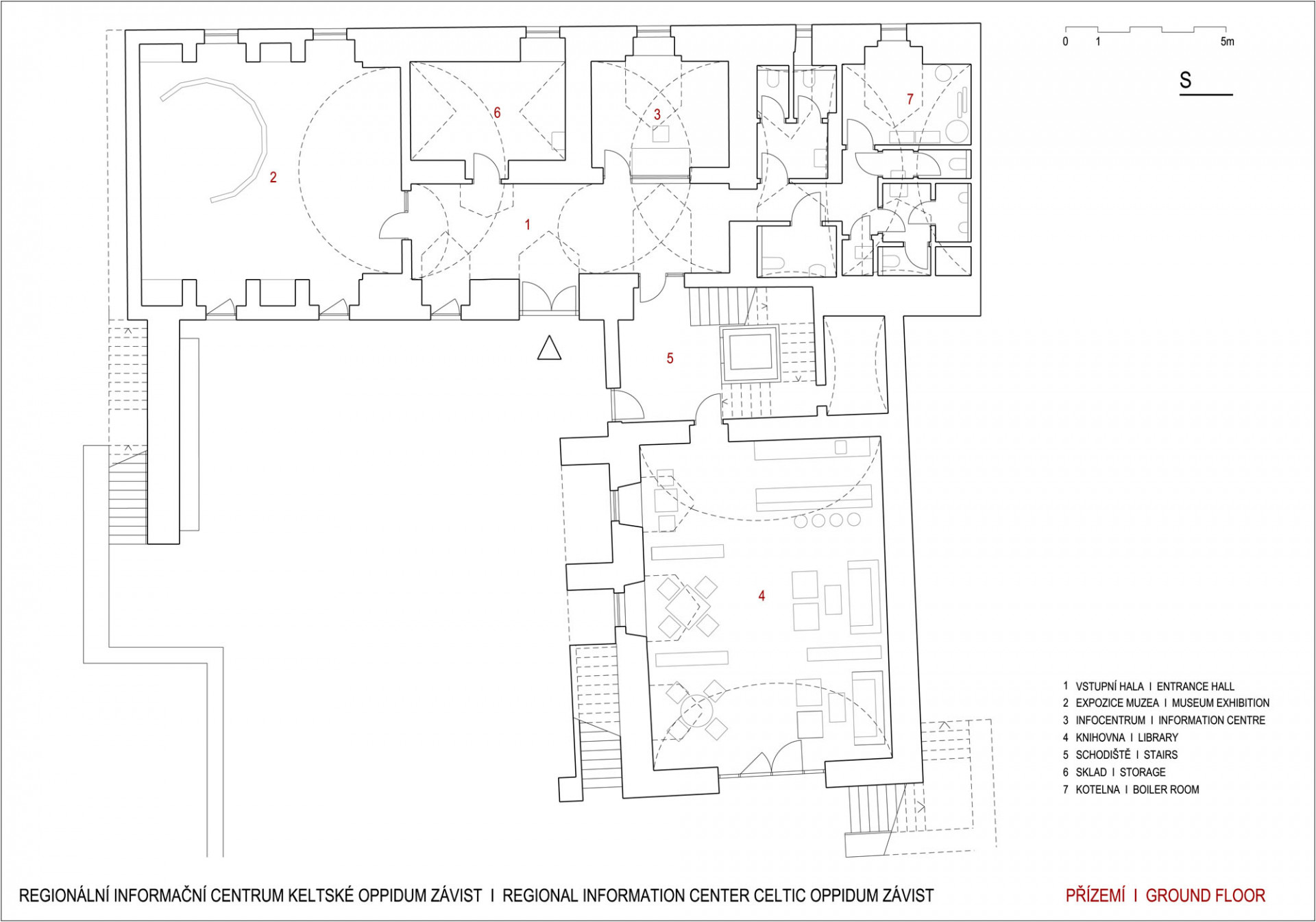
Keltské oppidum Závist představuje největší známé keltské oppidum v Čechách i ve střední Evropě. Nalezneme jej na vrchu Hradiště jižně od Prahy. Tato výjimečná národní kulturní památka má od loňského rokudokončené nové zázemí, kde se mohou návštěvníci ještě podrobněji seznámit s historií místa.

EARCH.CZ , 2. 7. 2020

  • Autoři: Michal Fischer, Marie Pechová
  • Ateliér: MFA s.r.o.
  • Země: Česká republika
  • Realizace: 2019
  • Město: Dolní Břežany
  • Suma: 41 000 000.00
  • Měna: CZK
  • Datum projektu: 2009
  • Realizace: 2019
  • Zastavěná plocha: 410.00m2
  • Plocha pozemku: 3 090.00m2
  • Poznámka: Foto © Aleš Jungmann
  • autor: EARCH.CZ *
  • publikováno: * 2. 7. 2020
  • zdroj: * Autorská zpráva

Mohlo by vás zajímat

Generální partner
Hlavní partneři