
Architektura
/
rodinné domy
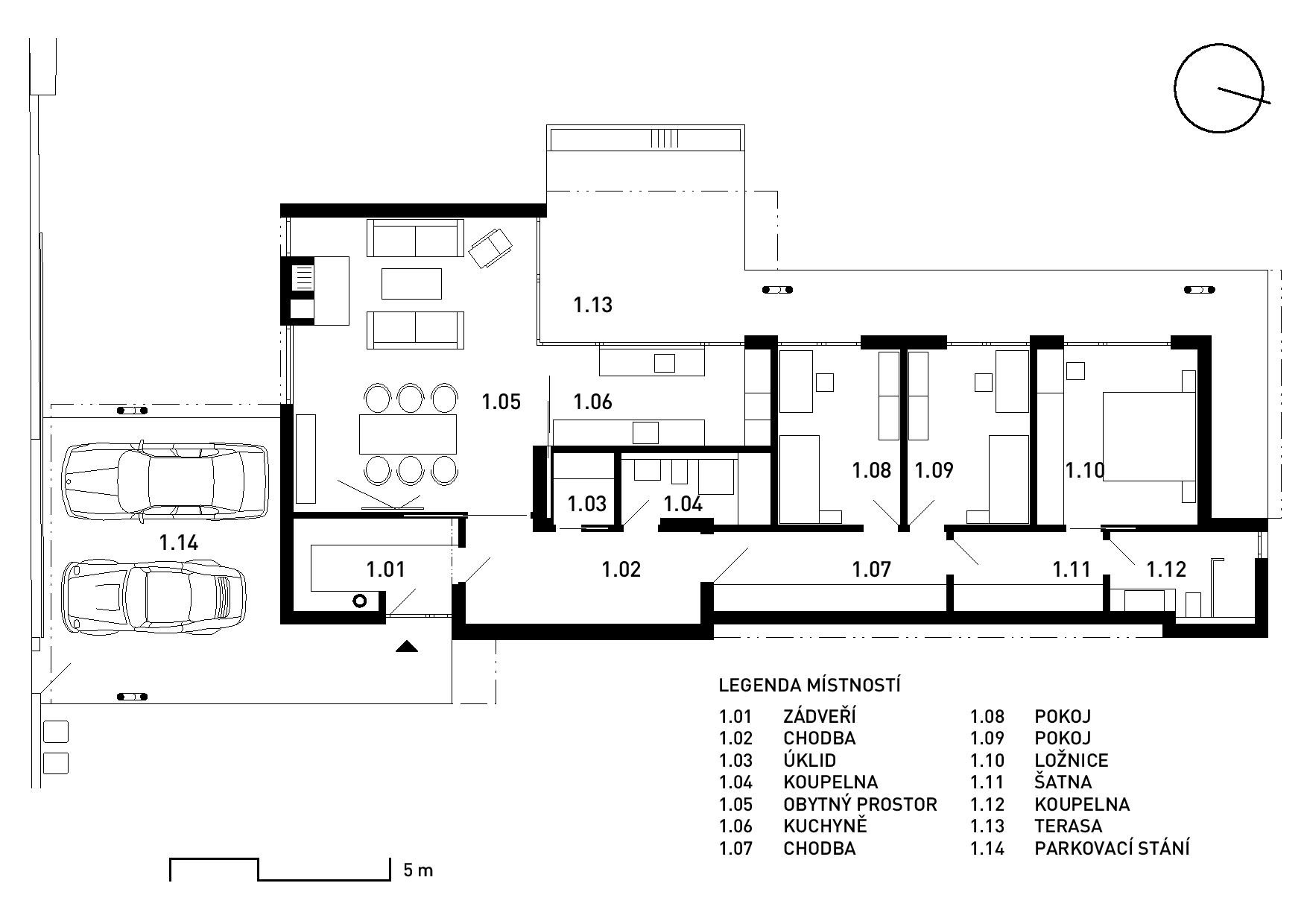
Hmotu rodinného domu od ateliéru OK PLAN ARCHITECTS tvoří průnik dvou jednoduchých kvádrů
Architekt Luděk Rýzner ve spolupráci s Jiřím Vincencem vypracoval návrh na jednopodlažní rodinný dům v Praze. Budova se skládá z menšího a většího kvádru a je rozšířena o krytou terasu, která pokračuje do prostorné zahrady s bazénem. Zatímco po vstupu do vyššího z dvou kvádrů následuje obytná část domu, nižší kvádr poskytuje intimnější prostředí a je zde umístěna ložnice rodičů a pokoje pro děti.
OK PLAN ARCHITECTS , 27. 10. 2020
- Autoři: Luděk Rýzner
- Ateliér: OK PLAN ARCHITECTS
- Spolupráce: Jiří Vincenc
- Země: Česká republika
- Generální dodavatel: korsys s.r.o.
- Datum projektu: 2017
- Realizace: 2018
- Zastavěná plocha: 162.60m2
- Poznámka: Obestavěný prostor celkem /bez základů/ - 759,53 m3