 
					
                                            Jablonecké moře nabízí koupání a teď také nová bistra a toalety. Uměřené, sjednocené, od architektů
Přehrada Mšeno leží v sousedství Jablonce, má čistou vodu a za koupáním se sem jezdí zdaleka. Proto tu bylo spoustu stánků a několik pláží, zázemí ale chybělo. Teď vzniká podle návrhu z architektonické soutěže.
Karolína Vránková , 29. 7. 2024
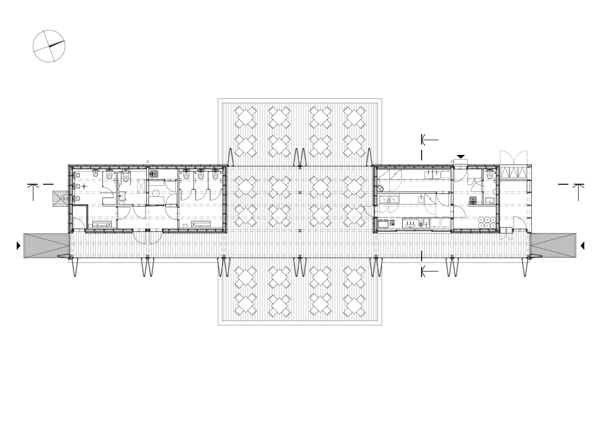
Pláž U Prutu se nachází na okraji sídliště. Je tu nové bistro, toalety, převlékárny, skříňky na věci – vše, co člověk při návštěvě městské pláže potřebuje. Vše v kultivovaném provedení jako podlouhlý hranol ze dřeva s výhledem na vodní hladinu. Nová stavba je postavená podle návrhu ateliéru Prokš Přikryl architekti. Od stejných architektů a ze stejného stavebního systému jsou také dva další pavilony, které se právě otevřely na dalších místech. Jeden v lokalitě U Hráze, další na místě zvaném U základny.
Moduly na severu i jihu
Kultivace okolí přehrady vyžadovala hodně úsilí i od města Jablonce. Už v roce 2020 vyhlásili architektonickou soutěž. Vyzváno bylo pět ateliérů, zvítězili Prokš Přikryl architekti, kteří mají se zázemím koupaliště zkušenost z Honětic u Kroměříže, kde už víc než deset let rozvíjí areál tamního koupacího biotopu.
 
Pro Jablonec nad Nisou navrhli systém složený z modulů. Moduly jsou vyrobené ze dřeva včetně nosné konstrukce z dřevěných hranolů. Funkce se může lišit, mohou obsahovat bistro, posezení, toalety, či převlékárny. K sobě se sestavují na každé lokalitě dle potřeby, některé principy jsou však společné. „Všechny objekty jsou lineární, podélně orientované, přimknuté ke stávajícím cestám. Staví se čelem k vodní hladině, která je určujícím prvkem celého dění. Vůči vzrostlým stromům vytvářejí protipól svou horizontální hmotou,“ popisují architekti.
 
To vše charakterizuje také novou stavbu U Prutu. Skládá se ze šesti modulů – dva obsahují občerstvení, dva sezení, dva toalety s převlékárnou. Spojuje je „pavlač“ či „zápraží“, jak to nazývají architekti.
Uvnitř je světlé dřevo, vnější úprava je tmavá. „Černý nátěr se staví neutrálně k barevným fasádám panelových domů za zády,“ vysvětlují svůj koncept architekti. Po zavírací hodině se celý objekt uzavře zalamovacími dveřmi a stane se z něj tmavý nenápadný a bezpečně uzavřený „box“. Otevřeno je celoročně, ale bylo by možné ho takto zakonzervovat i na celou zimu. Pak se dveře otevřou a objeví se světlé dřevo uvnitř.
Více k tématu
Bistro U Prutu funguje právě rok, další dvě stavby jsou zcela nové - fotografie brzy přineseme. Všechno spojuje jednotná forma, dobře sloužící všem typům uživatelů, ohleduplná k přírodnímu okolí a bez vizuálního smogu.
- Autoři: Martin Prokš, Marek Přikryl
- Ateliér: PROKŠ PŘIKRYL ARCHITEKTI
- Adresa:: J. Hory 31, Jablonec nad Nisou
- Fotograf: Peter Fabo
- Investor: město Jablonec
- Projekt: 2021 -2022
- Realizace: 2023
- Zastavěná plocha: 190 m²
- Obestavěný prostor: 890 m³
 
                             
                             
                             
                             
                             
                                 
            		 
            		 
            
         
            
         
            
         
            
         
            
         
            
         
            
         
            
         
            
         
            
         
                             
                             
                             
                             
                             
                             
                             
                             
                             
                             
                             
                             
                             
                             
                             
                             
                             
                             
    
	 
            		 
            		 
            		 
            		 
            		 
            		 
            		 
            		 
                     
                     
                     
            		 
            		 
            		 
            		 
            		 
                     
					 
                                                         
                                                         
                                                         
                                                         
				 
				 
				 
				 
				 
				 
				 
				 
				 
				 
				 
				 
				 
				 
				 
				 
				 
				 
				 
				 
				