 
					
                    				Jemné zásahy do gotické kostela
Decentní doplnění gotického kostela o nové prvky a správná přeměna dispozice si zasloužily mezinárodní pozornost. Ocenění se projektu dostalo i v britské architektonické soutěži RIBA Award.
EARCH.CZ , 21. 9. 2017
Architekti byli vybráni už v roce 2008, aby změnili uspořádání katedrály, ale po objevení pozůstatků Richarda III. se věci daly rychle do pohybu. Do projektu tak byl zahrnut i návrh nového hrobu a v kostele uskutečnil pohřeb tohoto krále Anglie.
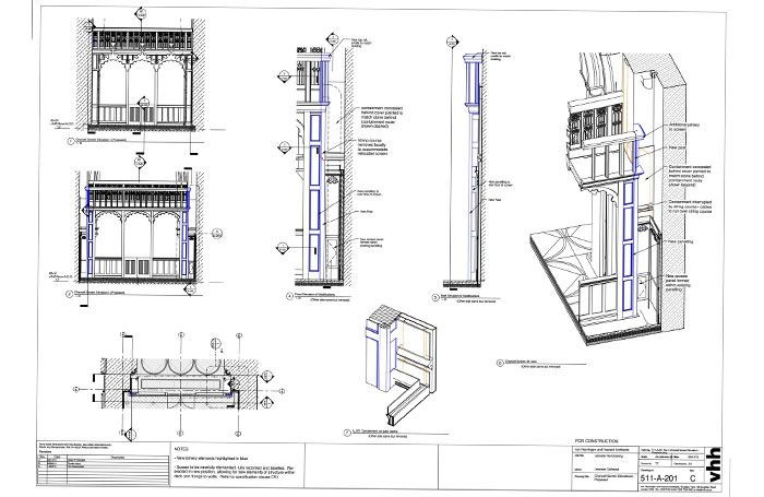
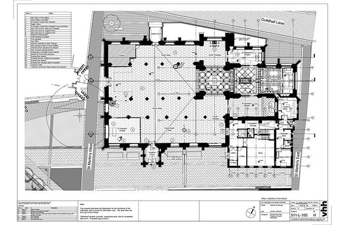
Jemného a extrémně kvalitního designu bylo dosaženo nejen architektonickým návrhem, ale také důsledným dohledem nad provedením prací. Došlo k pečlivé reorganizaci interiéru, čímž vznikly i nové prostory: oltář, hrob a kaple. Každý z nich je koncipován trochu jinak. Architekti museli balancovat mezi liturgií a církevním a cestovním ruchem. Obtížnou rovnováhu se jim podařilo najít díky úzké spolupráci se všemi subjekty.
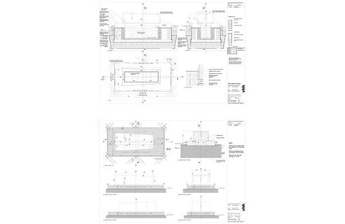
Kamenný oltář a hrobka
Návrh nového oltáře jemně vyzývá k různým interpretacím. Jeho vyřezávaná alabastrová forma (průsvitný vápenec) představuje „obětní“ oltářní blok i „pamětní“ ubrus. Konečná forma designu pojí oba významy zároveň. Za oltářem se nachází nová hrobka složená ze dvou kamenů. Vápencový náhrobní kámen Swaledale je obrovským blokem, do kterého je přesnými řezy vyobrazen hluboký kříž. Tmavší pruh pod ním, je dokonale sladěn s podstavcem.
Význam projektu
Všichni architekti, kteří se na projektu podíleli vykázali precizní péči a mimořádnou pozornost detailům. Za odhodlání a nadšení získal hlavní architekt Josh McCosh cenu RIBA East Midlands Project Architect of the Year. Výsledek jeho práce byl pečlivě zkoumán a posuzován, nejvíce porotu zaujalo přidání nových a smysluplných vrstev k tisíciletému příběhu.
Zatímco některé z nich se mohou zdát mikroskopického měřítka, projekt má národní význam a mezi širokou veřejností vyvolává ambice podobným způsobem oživovat další historické lokality.
- Ateliér: Heyningen and Haward Architects
- Země: Velká Británie
- Město: Londýn
- Realizace: 2016
- Užitná plocha: 1 369.00m2
 
                             
                             
                             
                             
                             
                                 
            
         
            
         
            
         
            
         
            
         
            
         
            
         
            
         
            
         
            
         
                             
                             
                             
                             
                             
    
	 
            		 
            		 
            		 
            		 
            		 
            		 
            		 
            		 
                     
                     
                     
            		 
            		 
            		 
            		 
            		 
                     
					 
                                                                                                             
                                                         
                                                         
                                                                                                             
                                                         
                                                         
				 
				 
				 
				 
				 
				 
				 
				 
				 
				