
Architektura
/
industriální a technické stavby
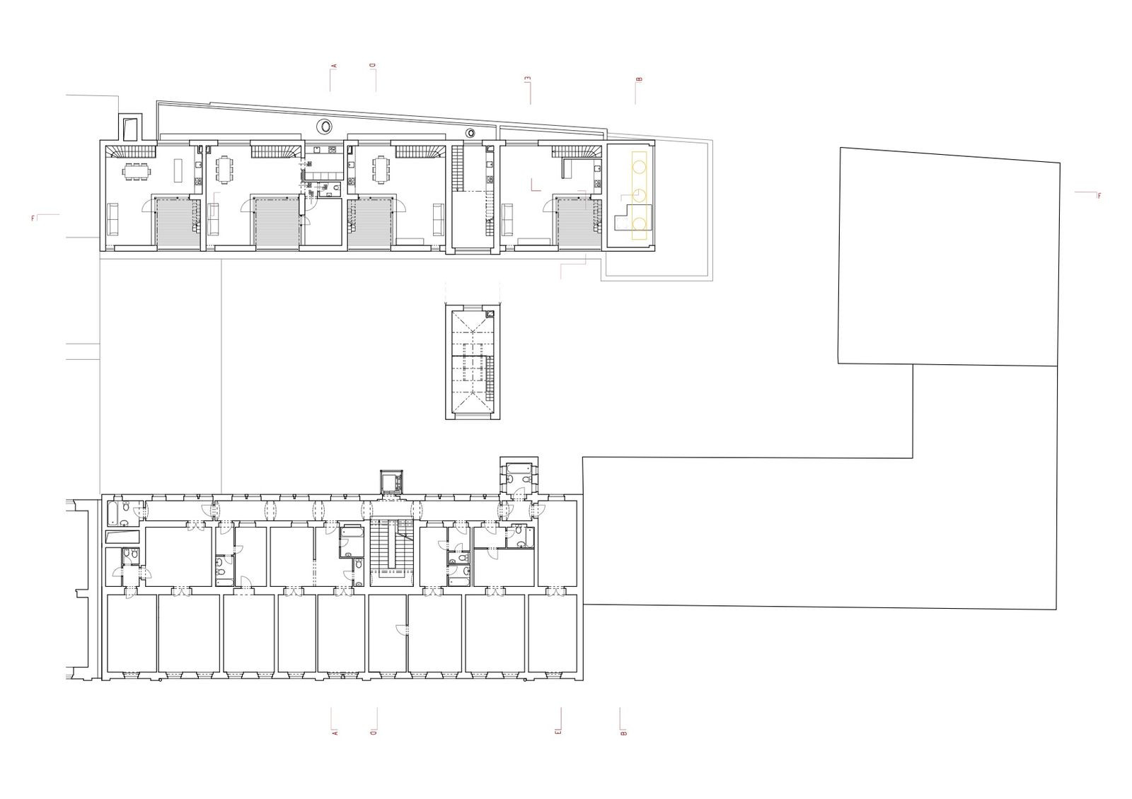
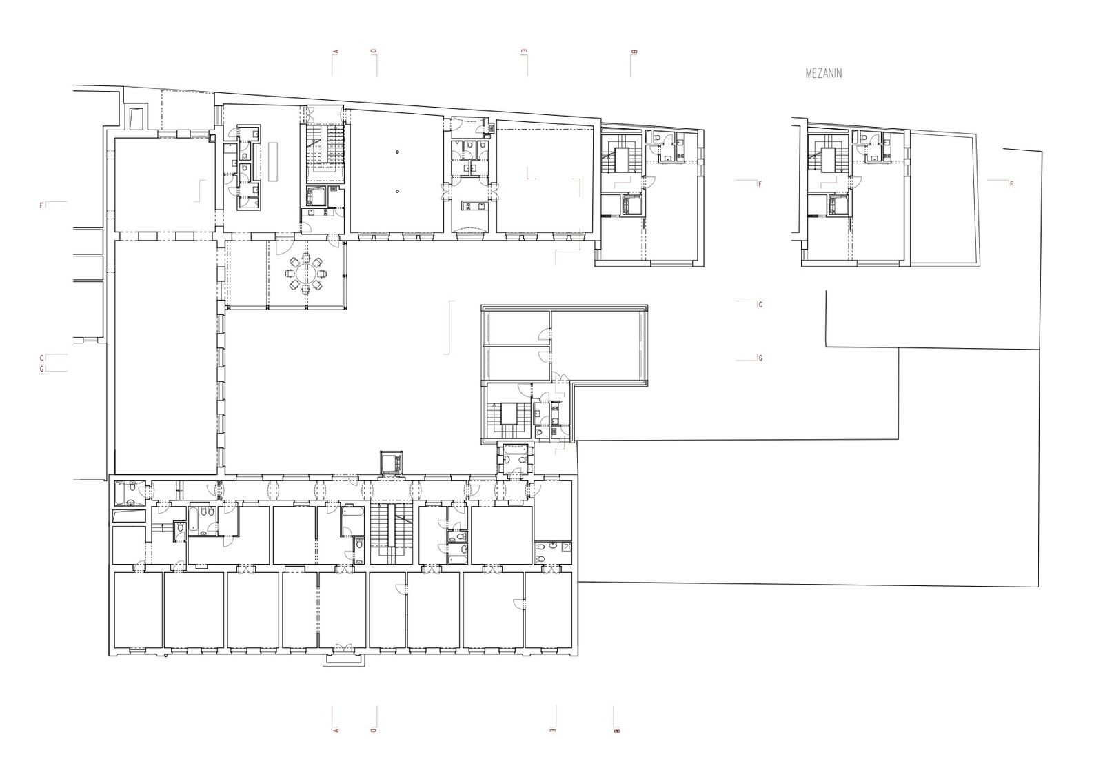
Konverze industriálního areálu Pražské šunky od studia Olgoj Chorchoj
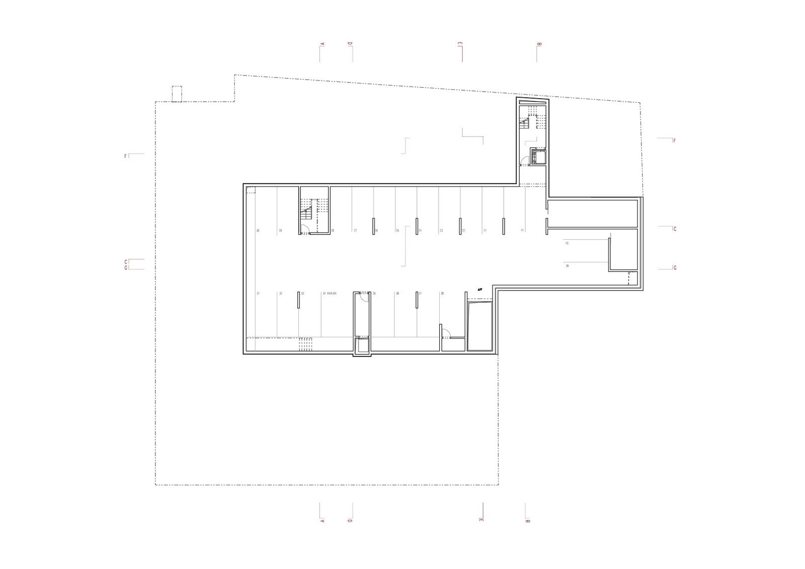
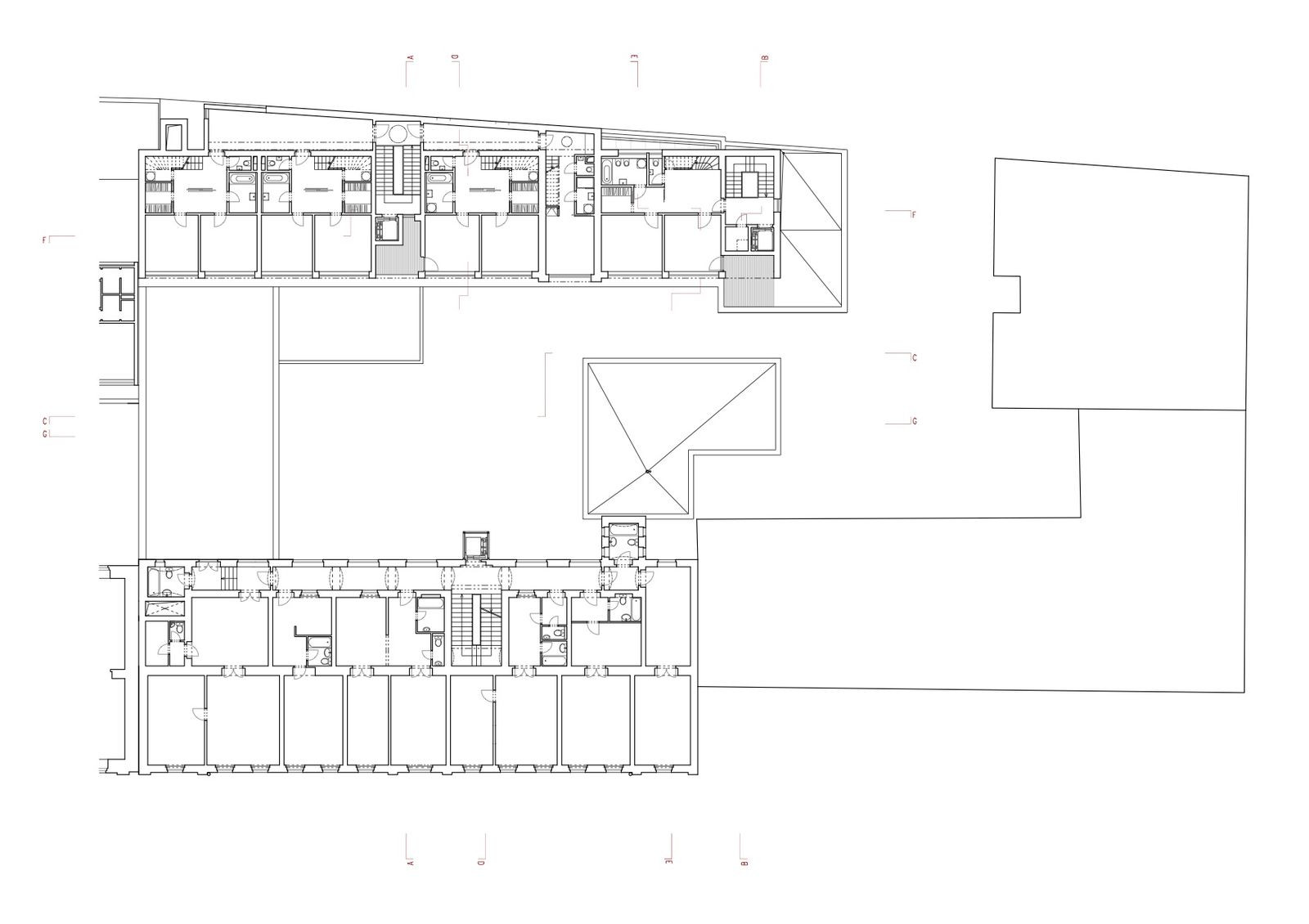
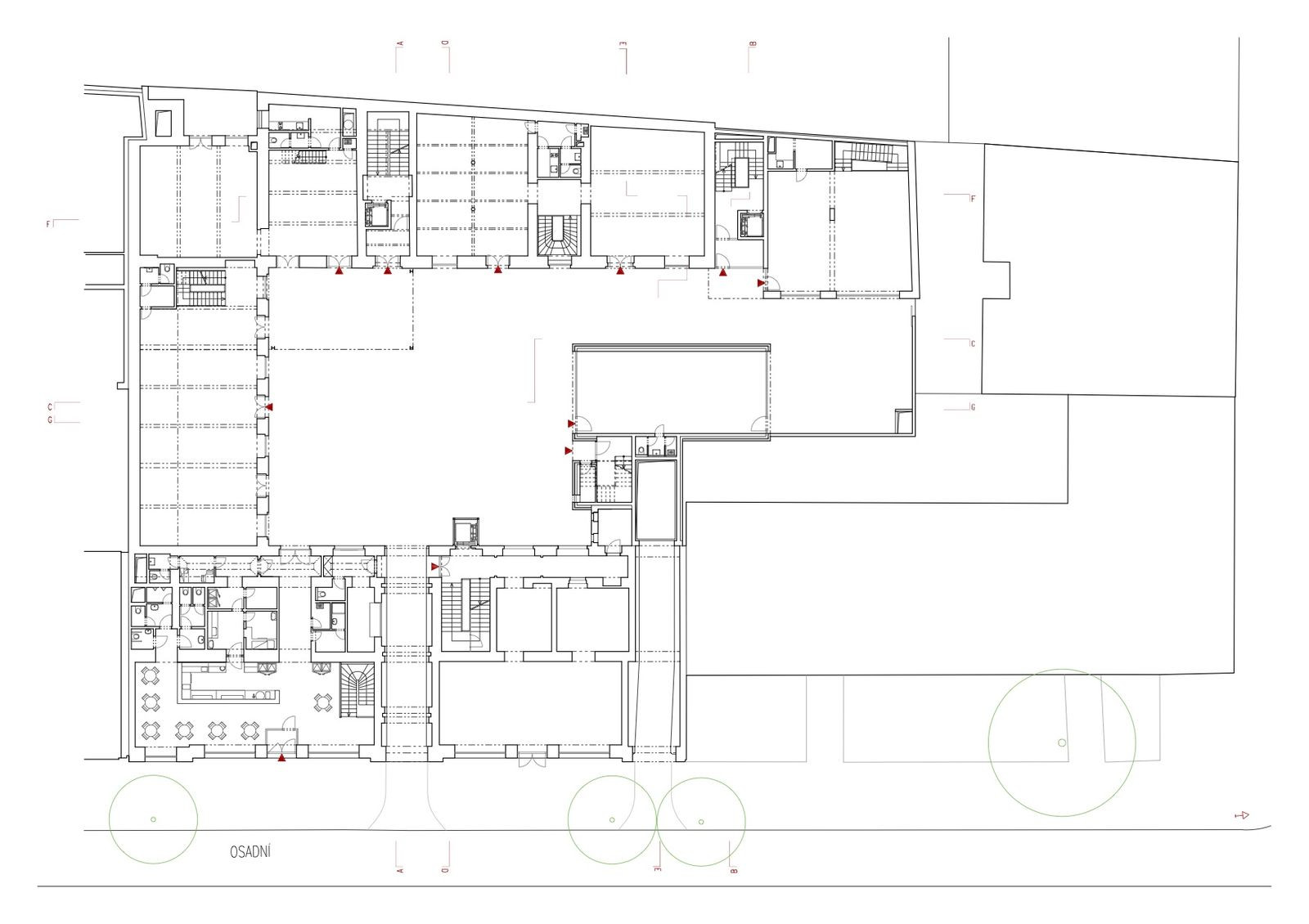
Designérské a architektonické studio Olgoj Chorchoj před lety zrekonstruovalo vnitroblok masny Pražské šunky v pražských Holešovicích, kterou založil Josef Jeřábek. Konverze se snažila vrátit objektu původní podobu od architekta Aloise Špalka. Došlo proto k odstranění různých úprav a dostaveb vzniklých po roce 1954, kdy byla továrna znárodněna.
Olgoj Chorchoj studio , 23. 4. 2018
- Autoři: Michal Froněk, Jan Němeček
- Ateliér: Olgoj Chorchoj studio
- Spolupráce: di5, Ondřej Kopečný
- Země: Česká republika
- Město: Praha
- Ulice, číslo: Osadní ulici 35/774
- Datum projektu: 2007
- Realizace: 2010