
Architektura
/
interiér
Krása prochází žaludkem
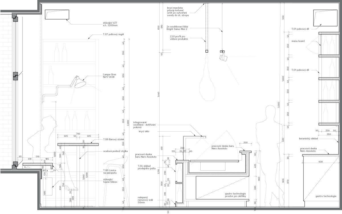
Pokud spojíte výborné jídlo, dobré víno a kvalitní architekturu, můžete zažít skutečnou euforii. Stejně jako po návštěvě gurmet bistra s italskými delikatesami La Botega Garstronomica od studia Edit!. Po právu se tak ocitnete v ráji každého žižkovského hipstera.
edit! architects , 11. 1. 2017
- Autoři: Ivan Boroš, Juraj Calaj, Vítězslav Danda, Lenka Míková
- Ateliér: edit! architects
- Země: Česká republika
- Stavebník: Catering AROMI s.r.o.
- Město: Praha 3 - Žižkov
- Ulice, číslo: Ondříčkova 17
- Realizace: 2013