Malá obec na Slovensku dokazuje, že i zahradní centrum může mít architektonickou úroveň
Objekt zahradního centra na západě Slovenska na sebe vzal siluetu typickou pro rodinné domy. Konstrukčně a materiálově ovšem vyhovuje své funkci prodejny rostlin a ovoce, která se v budoucnosti výrazně rozroste. Stavba zabodovala také v letošních cenách CE ZA AR.
EARCH.CZ , 13. 10. 2022
Zahradní centrum Plantex od architekta Adama Lukačoviče je příkladem obchodně-hospodářské stavby, která se navzdory svému odlišnému charakteru zapojuje do kontextu malé obce. Veselé nedaleko Piešťan má přibližně 1200 obyvatel. Obytnou zástavbu tvořenou převážně rodinnými domy zde hospodářské objekty „ředí“ hned na několika místech. Zahradní centrum podle návrhu Adama Lukačoviče je však specifické tím, že se oproti obvyklé praxi neuzavírá samo do sebe.
Více k tématu
Průčelí stavby má dvě prosklené štítové stěny, které z velké části stíní dřevěný obklad. Jednu hmotu navíc předstupuje výrazný přesah – ocelová konstrukce, která fasádu člení i plasticky. „Fasáda se po obvodu mění z prosklených šítů na plné boční stěny ve vytápěné části a dále na celo-polykarbonátové stěny v nevytápěné části. Takové rozdělení objektu na dvě teplotní zóny vychází z charakteru prodávaných produktů,“ popisuje Adam Lukačovič. Prostory vymezené průhlednými polykarbonátovými deskami totiž fungují jako skleníky. Materiály a ocelové konstrukce zůstávají po celém obvodu objektu přiznané – v interiéru vždy, v exteriéru je místy překrývá dřevěný obklad.
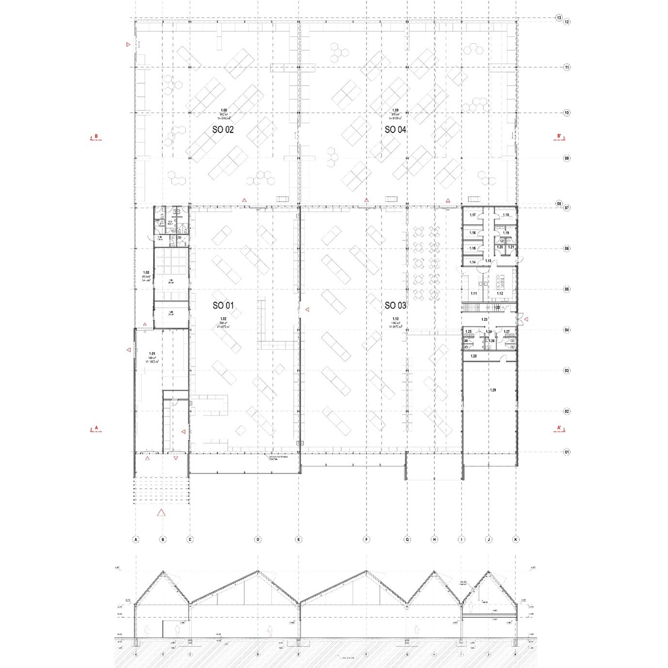
Firma Plantex se zaměřuje na prodej ovoce, ovocných stromů i okrasných rostlin, vše pěstuje ve vlastních sadech nebo plantážích. Nové zahradní centrum ve Veselém navrhl Adam Lukačovič tak, aby zde své místo našly všechny produkty a do budoucna se stavba mohla organicky rozrůstat. Zahradní centrum dnes tvoří dvě jednotky na principu haly, s postupem času jich bude až pět.

„S novou vizí rozvoje firmy Plantex přišel záměr vytvořit komplexní řešení, které bude při etapizaci výstavby zohledňovat rostoucí potřeby firmy. Počínaje od prodejních ploch pro zeleň a tvrdé zboží, přes kavárnu, restauraci až po kancelářské prostory,“ vysvětluje autor projektu. „V současnosti jsou zrealizovány dvě ze čtyř etap.“
Zahradní centrum Plantex od Adama Lukačoviče zvítězilo v kategorii Občanské a průmyslové stavby slovenských cen CE ZA AR 2022.

- Ateliér: Adam Lukačovič Architects
- Autoři: Adam Lukačovič
- Země: Slovensko
- Plocha pozemku: 8850 m²
- Zastavěná plocha: 1940 m² (1. + 2. etapa)
- Užitná plocha: 1860 m² (1. + 2. etapa)
- Projekt: 2017-2020
- Realizace: 2018-2020 (1. + 2. etapa)
- Adresa: Veselé u Piešťan
- Statika: Ľuboslav Blščák