Minimalistický dům z betonu si pohrává s otevřeností a uzavřeností prostoru
Minimalistický rodinný dům v Portu se zakládá na prostorovém kontrastu uzavřenosti a otevřenosti. Monolitický betonový kvádr narušují pouze velké prosklené otvory, které propojují obytnou část domu se zahradou.
EARCH.CZ , 1. 8. 2018
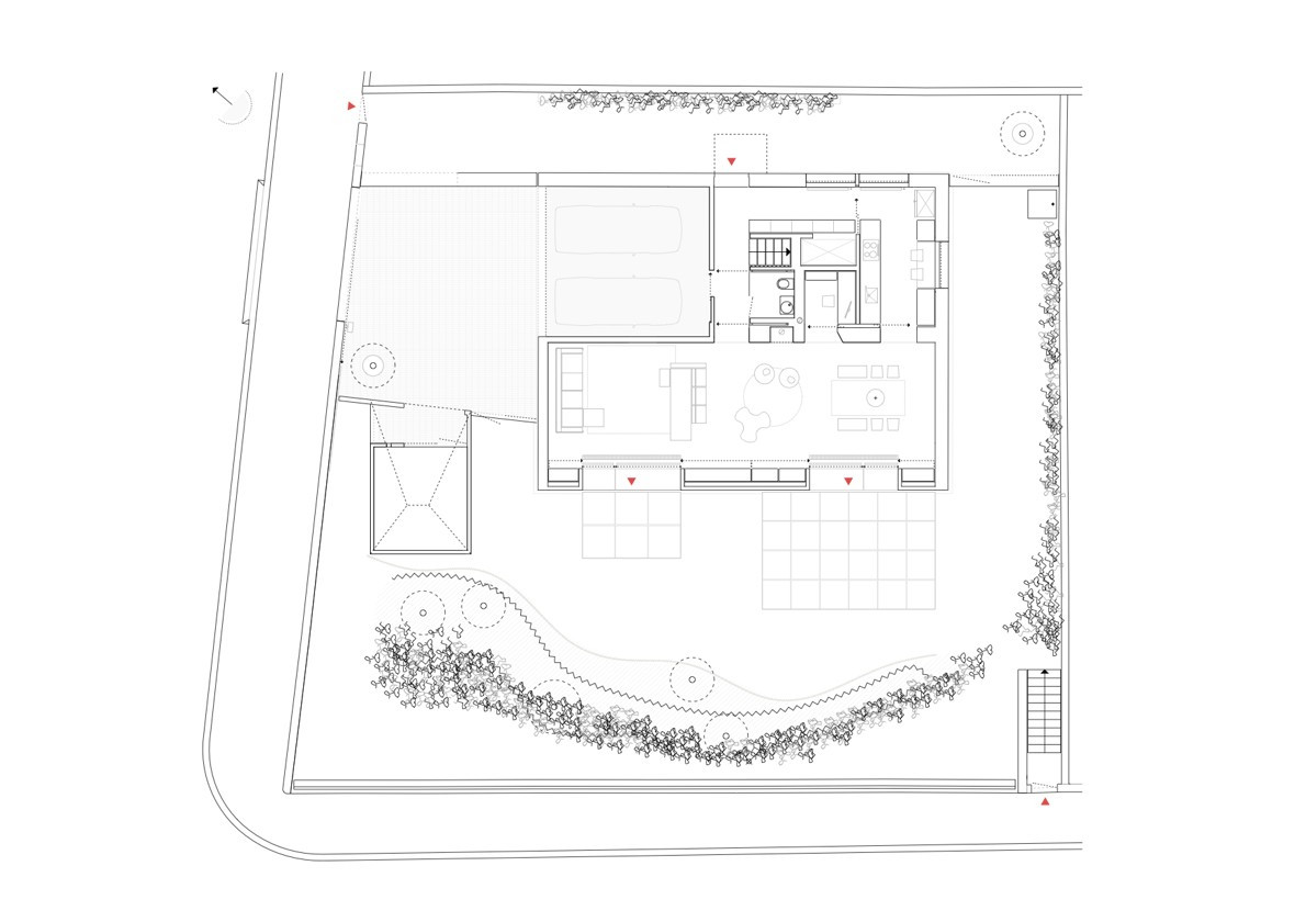
Dům se nachází v bohaté čtvrti Serralves západně od městského centra. Při pohledu z ulice působí jako uzavřený trezor z betonu bez jakéhokoli fasádního dekoru. Portugalský architekt João Vieira de Camposse soustředil na precizní zvládnutí stavebních detailů a materiálovou čistotu budovy.
Od posuvné brány vede k domu dlážděná cesta, která ústí do prostorné garáže pro dva automobily. Zbylou část přízemí zabírá malá pracovna a kuchyň s obývacím pokojem, které jsou přímo propojeny s okolní zahradou. Patro pak patří čtveřici soukromých ložnic s toaletou a prádelnou.
Více k tématu

Architekt se při návrhu rodinného domu snažil podle vyjádření pro magazín Dezeen dosáhnout „rovnováhy funkčního a objemového vztahu s bezprostředním okolím“. Za kamennou zdí u příjezdové komunikace navrhl Vieira de Campos také malý samostatný objekt sloužící jako skladovací a technický prostor. I ten je tvořen výhradně betonem.
Ani v interiérech nenajdeme nic navíc. Všem pokojům dominuje bílá barva stěn a vestavěného nábytku, která kontrastuje s podlahou z tmavého dřeva. Rozměrné okenní otvory na celou výšku stropu přivádějí dovnitř domu nadstandardní množství slunečního světla, které lze regulovat pomocí lehkých vnitřních rolet.
Tento článek vznikl za podpory společnosti Českomoravský beton v rámci popularizace tématu "Beton v architektuře".
Českomoravský beton, a. s., je holdingovou společností, která prostřednictvím vlastních betonáren a dceřiných společností dodává transportbeton v široké škále pevnostních tříd a druhů na území České republiky a Slovenska. Skupina, jejíž vznik spadá do počátku 90. let minulého století, v současné době provozuje 85 nově postavených nebo zrekonstruovaných betonáren, které mají zavedený systém managementu kvality, systém managementu hospodaření s energií a splňují nejpřísnější ekologická kritéria. Celá skupina – holdingová společnost a její dceřiné společnosti, historicky označované ve svém názvu TBG – vystupuje na trhu ČR pod jednou společnou obchodní značkou Českomoravský beton.
- Autoři: João Vieira de Campos
- Země: Portugalsko
- Město: Porto
- Datum projektu: 2015
- Realizace: 2017
- Užitná plocha: 280.00m2
- Foto ©: Nelson Garrido

