Místo demolice rekonstrukce. Přestavbou vznikly prostory pro lokální designéry a módní návrháře
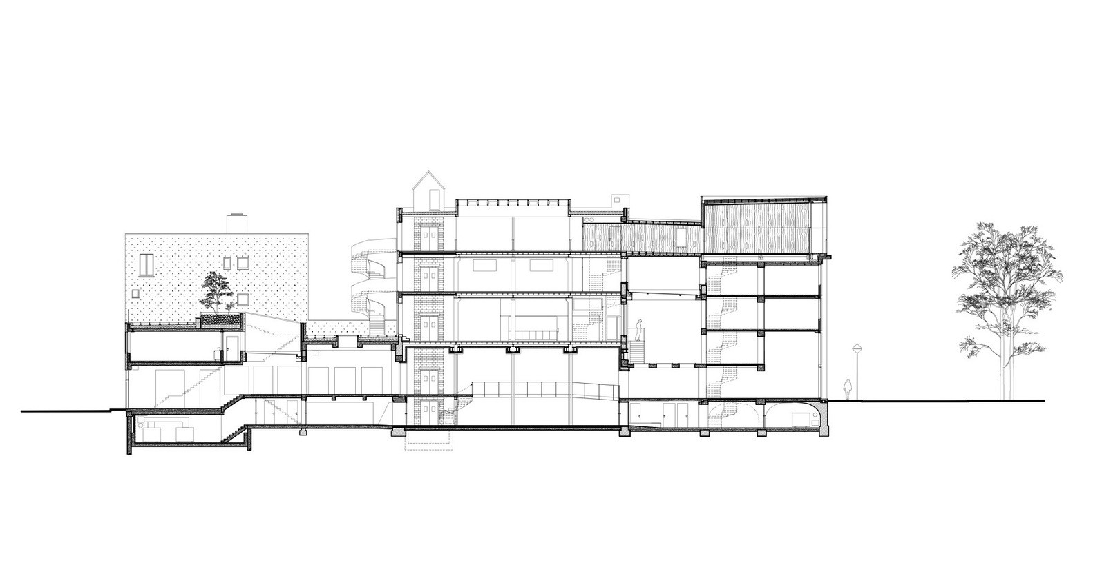
Málo využívaný administrativní a skladovací objekt v centru Bruselu měly nahradit nové kapacity sloužící místním designérům a módním návrhářům. Zadání architektonické soutěže navrhovalo stávající objekt zbořit a na jeho místě postavit novou budovu – studio ROTOR ve spolupráci s V+ se ovšem rozhodlo jít jinou cestou a objekt zachovat a precizně jej upravit pro nové využití.
EARCH.CZ , 2. 10. 2019
Bruselské kreativní studio ROTOR se úzce zaměřuje na nové způsoby využívání starých objektů a recyklaci stavebních materiálů. Když se tak jeho designéři zúčastnili společně s rovněž bruselskou architektonickou kanceláří V+ soutěže na přestavbu starého administrativní objektu a skladů v centru Bruselu, rozhodli se jít cestou vlastního přesvědčení. Zadání architektonické soutěže sice účastníkům doporučovalo odstranit stávající stavbu a nahradit ji budovou novou, která splní všechny požadavky budoucího provozu. Autoři návrhu ovšem namísto toho navrhli rekonstrukci stávajícího objektu, která přesvědčila porotu o správnosti takového přístupu, což jim zaručilo také vítězství v soutěži.
Nové prostory slouží odborné platformě MAD Brussels zaměřující se na oblast designu a módního návrhářství, která prostřednictvím architektonické soutěže chtěla získat nové místo pro setkávání tvůrců a celkovou podporu těchto oborů. Přízemí proto autoři návrhu určili pro konání různých akcí a výstav přístupných široké veřejnosti, jednotlivá patra pak slouží jako multifunkční pracovní prostory.
Více k tématu
Studio ROTOR projekt označuje jako „radikálně konzervativní“ – konzervativní ve snaze o zachování starého, radikální v přístupu k rekonstrukci. „Projekt projevuje vysokou úroveň tolerance vůči stávajícímu, které kombinuje s vysokým standardem všech nových použitých prvků a materiálů. Konečným výsledkem je budova mnohem bohatší a pestřejší v otázce typologie, než jaké by se dalo dosáhnout při realizaci novostavby,“ popisuje studio.
Interiéry sceluje bílá barva stěn, stropů i podlah. Pouze lokálně autoři očistili části původní konstrukce a nechali je v odhalené podobě – ať už jde o železobeton či pálené cihly. Při bourání některých stěn postupovali velmi opatrně s pečlivou přesností. Vnitřní prostory pak doplnili pestrou paletou materiálů a detailně řešených prvků.
Zástupci studia ROTOR budou přednášet 3. října 2019 v Praze v rámci cyklu Belgická inspirace pořádaného spolkem KRUH.
- Ateliér: ROTOR, Vers plus de bien être / V+
- Země: Belgie
- Město: Brusel
- Ulice, číslo: Place du Nouveau Marché aux Grains 10
- PSČ: 1000
- Realizace: 2017


