
Nejlepší stavby Evropy: knihovna Gabriela Garcíi Márqueze v Barceloně vypadá jako hromádka knížek
Má to být něco jako „rozšířený domov“, městský obývák, který nabízí spoustu prostoru ke čtení a posezení. Získala už cenu za nejlepší novou knihovnu světa. Teď je mezi sedmi finálními kandidáty na další prestižní ocenění – evropskou cenu za architekturu.
Karolína Vránková , 18. 4. 2024
Knihovna stojí mezi dosti fádními bloky, připomínající naše paneláky, v dělnické čtvrti Sant Martí de Provençals. „Tahle čtvrť potřebovala něco jako lidový palác,“ vysvětlují architekti ze studia SUMA Arquitectura. Rozhodli se ho vytvořit.

Zaprvé narušili monotónní pravoúhlou strukturu zdejších ulic a s parcelou nakládali po svém. Knihovna má tvar nepravidelné hromady knih, některé plochy jsou skosené a má jen několik velkých oken, která jsou umístěná směrem k nejlepším výhledům. Je postavená kolem trojúhelníkového atria se stromy. Fasáda se skládá ze struktur, které připomínají listy knih, nad vchodem jsou dokonce popsané citátem z Marquéze. Hlavním materiálem je dřevo – na rozdíl od domů kolem. Prostě tahle budova se od okolí skoro ve všem liší.
Rozšíření domova
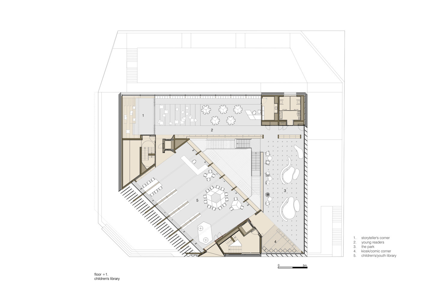
Uvnitř čeká bohatý prostorový zážitek. Je tu trojúhelníkové atrium, řada menších a větších prostorů a průhledy dovnitř i ven. Celkem je to šest pater se spoustou možností, kde si vybírat knihy, kde si číst anebo jen tak posedět. „Šlo nám o to udělat z knihovny rozšíření domova s křesly a různými prostory, které budou lidi lákat, aby si pohověli jako doma,“ řekl ředitel knihovny Neus Castellano časopisu Guardian. Nejvíce sem prý chodí starší lidé a děti a z knihovny se stala také svého druhu turistická atrakce.

Knihovna je pojmenovaná po nositeli Nobelovy ceny Gabrielu Garcíovi Márquezovi, který strávil v Barceloně sedm let. V Barceloně žije stále hodně lidí z latinskoamerického regionu a nabízejí jim tu velkou kolekci latinskoamerické literatury a souvisejících dokumentů.
Více k tématu
Za své služby a filosofii tu dostali v roce 2023 cenu za nejlepší novou knihovnu na světě od Mezinárodní federace knihovnických sdružení a institucí (IFLA). Poputuje do Barcelony také evropská cena Miese van der Rohe za nejlepší architekturu? Dozvíme se po vyhlášení 25. dubna.
- Ateliér: SUMA Arquitectura
- Země: Španělsko
- Město: Barcelona
- Adresa:: C/ del Treball, 219, Sant Martí, 08020 Barcelona, Španělsko
- Užitná plocha: 4170 m²
- Realizace: 2022
- Fotograf: Jesús Granada