
Architektura
/
interiér
Nevinnost sama
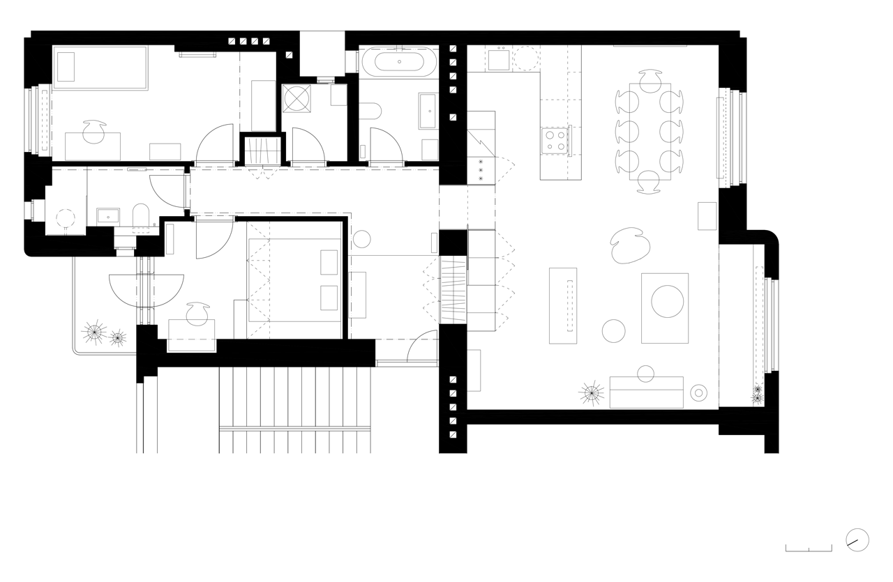
Rekonstrukce bytu měla za úkol upravit již dříve obývaný a velmi oblíbený byt tak, aby vznikla navíc další ložnice pro očekávaného potomka. Ale místo členění bytu se naopak hlavním momentem projektu stalo propojení dvou nejsvětlejších pokojů do jednoho velkorysého a vzdušného obytného prostoru pro společný život mladé rodiny.
Lenka Míková Architekti , 6. 9. 2016
- Autoři: Lenka Míková
- Ateliér: Lenka Míková Architekti
- Země: Česká republika
- Město: Praha 6 - Dejvice
- Realizace: 2014
- Užitná plocha: 95.00m2