 
					
                    				
					
                                                    Architektura
                                                /
                                                    občanské stavby
                                            
					
			Pokorná rekonstrukce poutního místa
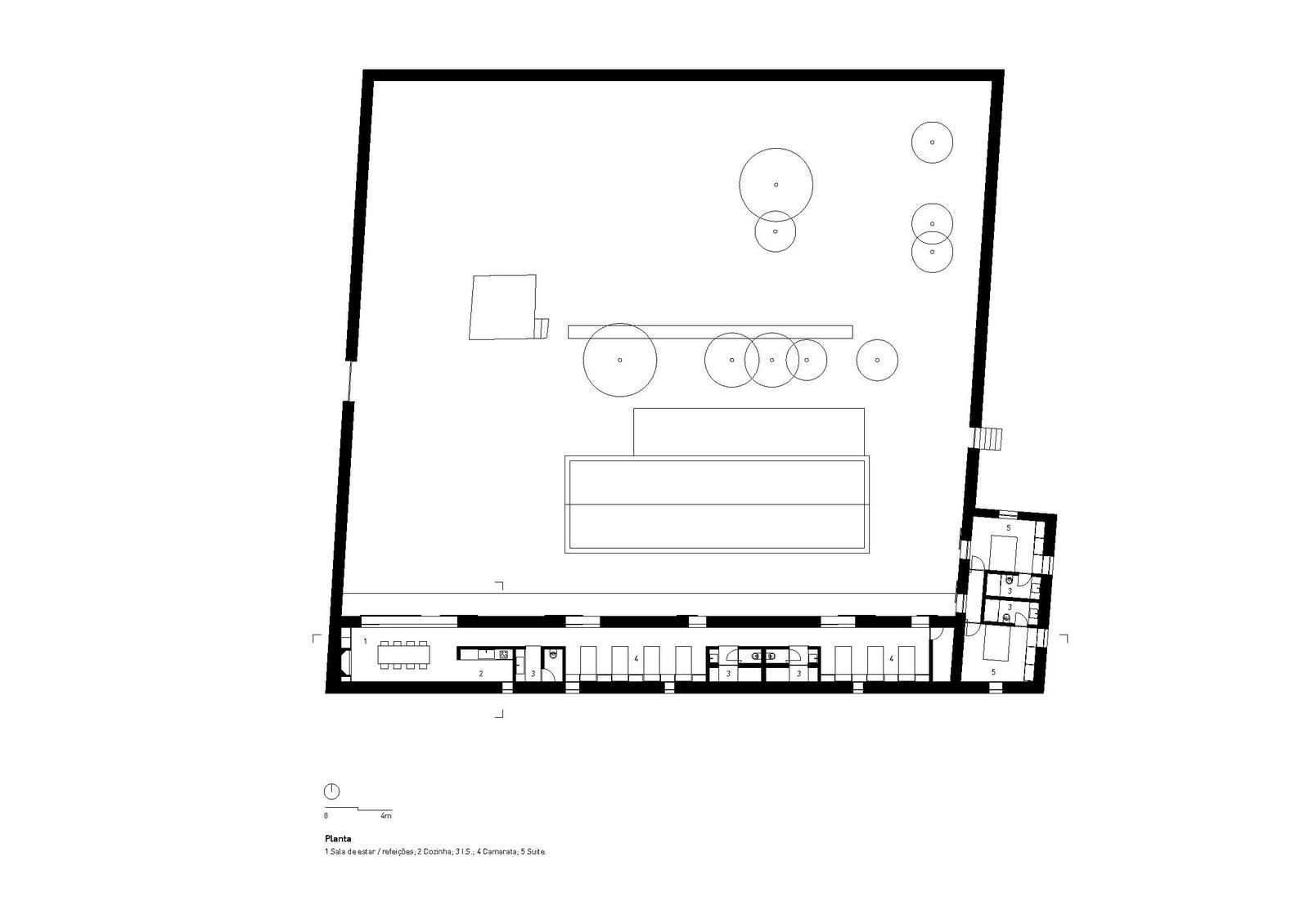
Projekt Quartéis de Santa Justa se nachází na nejvyšším místě Monte de Santa Justa v Ponte de Lima (Portugalsko). Součástí malého uzavřeného komplexu je kromě kaple také budova sloužící jako ubytování a útočiště pro poutníky.
EARCH.CZ , 17. 5. 2017
Více k tématu
- Autoři: José Manuel Carvalho Araújo, Sandra Ferreira, Emanuel de Sousa, Ana Vilar, Hugo Melo
- Ateliér: Carvalho Araújo
- Země: Portugalsko
- Zodpovědný projektant: Inovlima - Engenharia E Construção
- Město: Ponte de Lima
- 
                    GPS souřadnice: 
                    Latitude: 41.7853 
 Longitude: -8.67917
- Realizace: 2017
- fotografie: ©NUDO
 
                             
                             
                             
                             
                             
                                 
            		 
            		 
                             
                             
                             
                             
                             
    
	 
            		 
            		 
            		 
            		 
            		 
            		 
            		 
            		 
                     
                     
                     
            		 
            		 
            		 
            		 
            		 
                     
					 
                                                         
                                                         
                                                         
                                                         
				 
				 
				 
				 
				 
				 
				 
				 
				 
				