
Architektura
/
občanské stavby
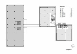
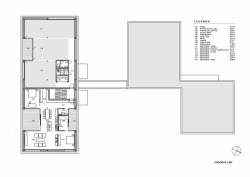
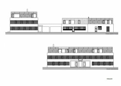
Přestavba školky ze 70. let na společenské centrum
Ateliér 38 zrekonstruoval budovu školky ze 70. let, u které architekti objevili její modernistickou povahu. Při rekonstrukci se proto snažili jen o drobné úpravy. Díky novému investorovi se z objektu nyní stalo živé společenské centrum.
Atelier 38 , 15. 12. 2017
Více k tématu
- Autoři: Tomáš Bindr, Petr Doležal
- Ateliér: Atelier 38
- Země: Česká republika
- Město: Opava
- Ulice, číslo: Náměstí sv. Hedviky
- Datum projektu: 2010
- Realizace: 2011
- Zastavěná plocha: 959.00m2