Architektura
/
bytové domy
Proluku v dejvické bloku vyplnilo studio Doležel Architekti asymetrickým bytovým domem
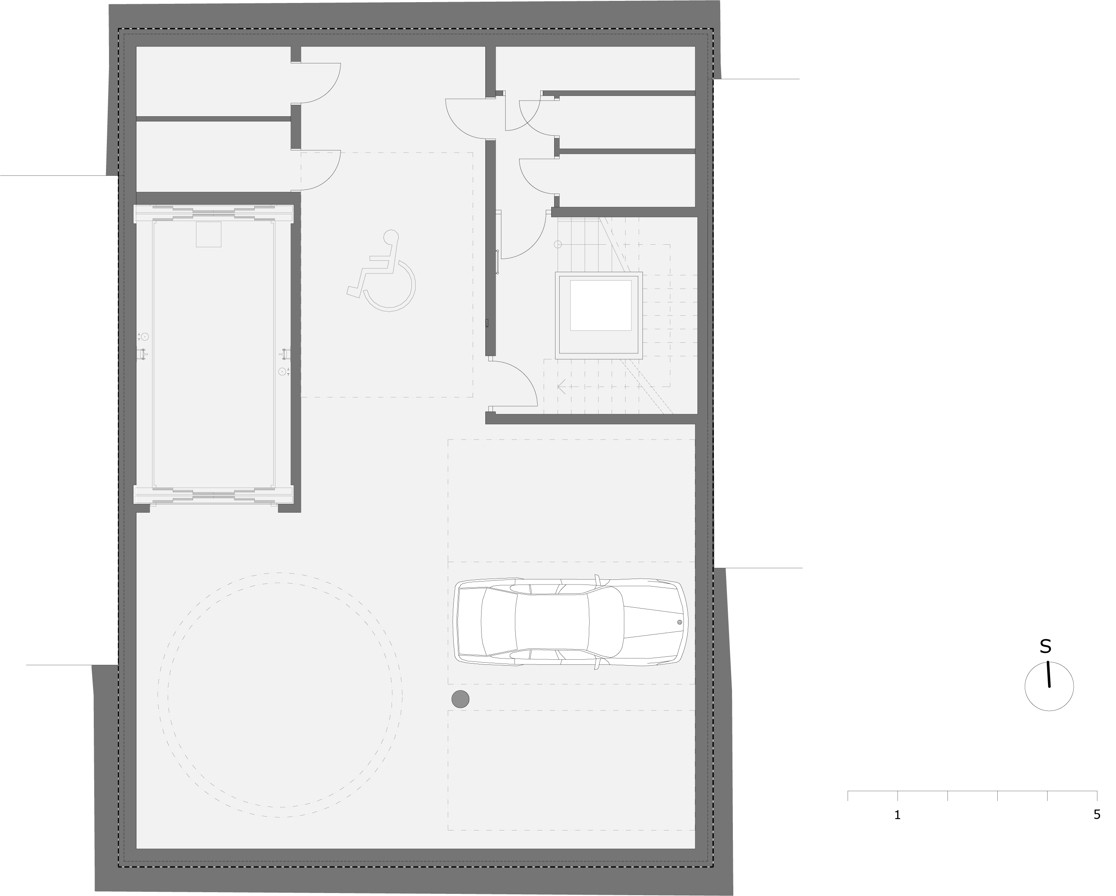
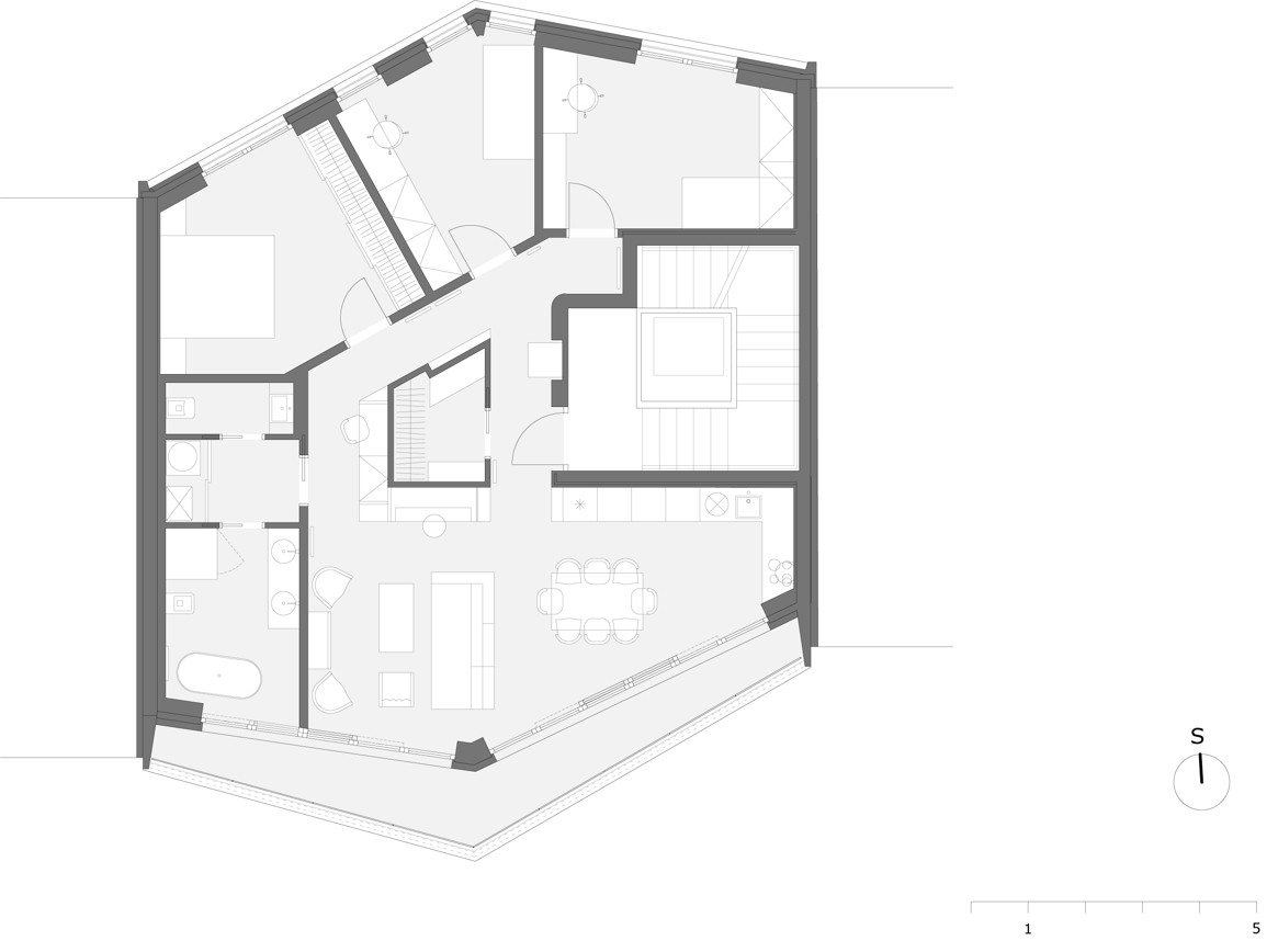
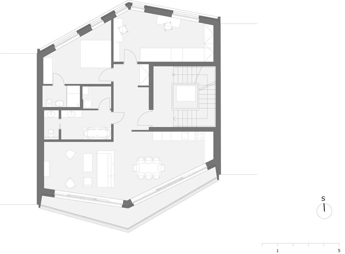
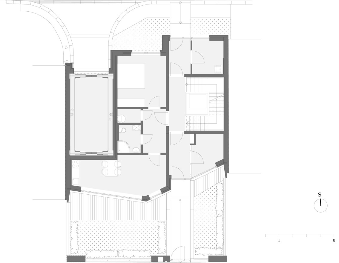
V rámci kultivace dejvického bytového komplexu navrhlo studio Doležel Architekti na pozici nevyužívaného přízemního objektu v ulici Mydlářka nový bytový dům. Mezi původní zástavbu z poloviny 20. století architekti vklínili asymetrický objekt, který doplnil uliční frontu a svým zalomením fasády, která na první pohled vystupuje z homogenního charakteru zástavby.
Doležel Architekti s.r.o. , 24. 6. 2019
- Autoři: František Doležel
- Spolupráce: Miroslav Klofáč, Vojtěch Kolínský, Vojtěch Kramář, Helena Doleželová
- Země: Česká republika
- Realizace: 2017
- Město: Praha 6 - Dejvice
- Ulice, číslo: Mydlářka, 3136/9
- PSČ: 16000
- Suma: 16 000 000.00
- Měna: CZK
- Datum projektu: 2010
- Realizace: 2017