Architektura / rodinné domy

Prosvětlené bydlení ušité dřevěnou nití

Na zadní, zdánlivě neužitečné parcele za jedním londýnským sportovním klubem vyrostla pozoruhodná dvojice domů, která si s prostorem hlavu příliš neláme. Přestože na domy nezbylo ani příliš místa, natož aby mohly mít zahradu, svým majitelům nabízí prostorné a světlé interiéry i útulnou terasu. V angličtině se nazývají Herringbone Houses, což by se s jistou nadsázkou snad dalo přeložit jako „tkané“ nebo „sešívané“ domy, a svou detailně provedenou fasádou skutečně připomínají texturu vyšívaných látek. Dílo navrhla kancelář Alison Brooksové, která bývá řazena mezi nejpozoruhodnější současné architektky, a díky minucióznímu provedení se dostalo i do architektonických atlasů.

Josef Řídký / Alison Brooks Architects , 12. 4. 2017

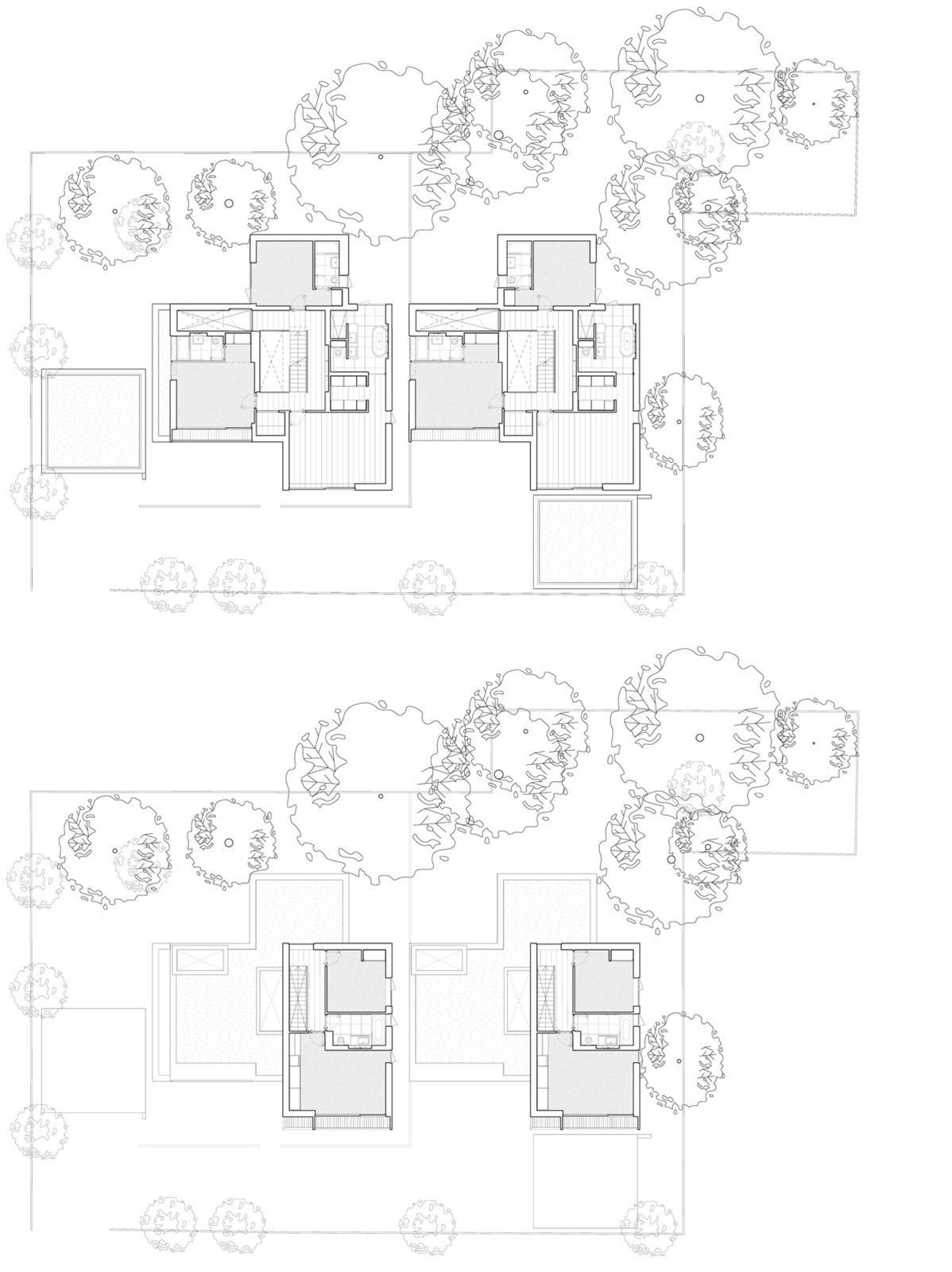
Obě dvě „městské chaty“ se nachází v Londýně a byť se rozkládají na nevelkých parcelách, každá má užitnou plochu 350 m2. Pozemek je poměrně unikátní, jedná se o zadní, zbytkový dvorek s výhledem přes trávník bowlingového hřiště. Domy jsou pojaty jako viktoriánský dům obrácený naruby. Smrčkový steh (neboli steh rybí kostry) tvořící fasádu domů je jindy typickým vzorem dřevěných podlah a jeho užití na povrchu vytváří iluzi tahací harmoniky. Vprostřed domů jsou atria, jež zároveň fungují jako světlíky a přivádí světlo k zavěšeným schodištím uvnitř. Otevřené prostory s vysokými stropy a zahrada se do sebe vzájemně zaklesávají. Sklepní prostor svými rozměry kopíruje plochu přízemí a navyšuje tak celkovou plochu domu. Obě stavení jsou vzácným příkladem osvíceného developera, který se chce svým záměrem vyrovnat kvalitě řemeslného provedení sousedních viktoriánských vil a přitom mluvit současným architektonickým jazykem.

Oba domy vznikly na principu navíjení a vzájemného prostupování dvou spojitých struktur, jedné dřevěné a druhé z grafitové omítky (viz fotoalbum). Ty prochází z exteriéru do interiéru, tvoří zdi, podlahy, vnější krytinu a nakonec i ploty. Technikou postupného „zabalování“ či zavíjení obou dvourozměrných plánů vzniknul vnitřní prostor, který je neformální, jasný a světlý a který charakterizuje otevřenost a pohostinnost. Přízemní patro je organizováno kolem atria a tvoří obývací část domu, kuchyně a další společné prostory vedou k velkorysým zahradním terasám. Dřevěné schodiště, jež je jinak pojaté jako jednolitý kvádr rozdělený vedví, je doslova omýváno svrchním světlem; přízemí propojuje s ochozem v prvním patře. Prostor atria potom prosvětluje i sklepní patro, které se tak stává plnohodnotnou součástí domu.

  • Autoři: Alison Brooks
  • Ateliér: Alison Brooks Architects
  • Země: Velká Británie
  • Realizace: 2006
  • Město: Londýn
  • Ulice, číslo: Lyford Road
  • Realizace: 2006
  • Užitná plocha: 700.00m2
  • Poznámka: foto © Cristobal Palma

Mohlo by vás zajímat

Generální partner
Hlavní partneři