
Pasivní domky v tradičním stylu
Kombinace cenově dostupného sociálního bydlení, rezidenčních domů, dobré architektury a biologické rozmanitosti oslovila porotu britské architektonické soutěže RIBA 2017.
Hamson Barron Smith , 11. 9. 2017
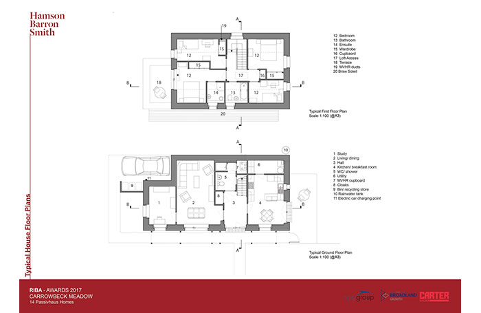
Celkově 14 pasivních domů je na pozemku rozmístěno do čtyř skupinek, z nichž jedna je přímo u příjezdové silnice. Podíl sociálního bydlení zde tvoří 43 %. Budovy jsou dvoupatrové se sedlovou střechou. Jejich materiálové řešení je jednoduché, architekti použili pouze dřevo a bílou omítku. Díky rozdílným variantám fasády se však každý dům stal originálním. Dřevěné pergoly na jižních průčelích fungují nejen jako stínění, ale dále rozvíjí také estetickou stránku domu.
Do interiérů domů přichází ideální množství přirozeného světla, v obývacích pokojích byla navíc věnována pozornost výhledům. Reakce rezidentů na kvalitu bydlení byla velice pozitivní, zvláště velkého ohlasu se dostalo nízkým účtům za energie. Dobré energetické bilance se docílilo díky využití systému z jílových bloků, které mají výborné akustické i tepelně technické vlastnosti. Spotřeba energie u jednotlivých domů je sledována a zatím se zdá, že očekávání byla splněna.
Celý projekt je sponzorován místními orgány a je příkladem pro ostatní samosprávy, jak je možné přistupovat k otázce sociálního bydlení a rezidenčním projektům jako celku.
- Ateliér: Hamson Barron Smith
- Země: Velká Británie
- Město: Londýn
- Realizace: 2016
- Foto ©: © Jefferson Smith