Architektura / rodinné domy

Rodinný dům od studia DDAANN vychází z venkovského prostředí

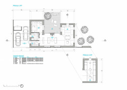
Pražské studio DDAANN, za kterým stojí architekti a bývalí členové libereckého týmu Mjölk Daniel Baudis a Daniel Rohan, dokončilo nový rodinný dům s názvem "Dům za humny". Stavba se na sebe nesnaží strhávat pozornost, naopak ale svou formou přirozeně navazuje na charakter venkovského okolí. Dům se sedlovou střechou se pomocí venkovní terasy otevírá směrem k lesu, zatímco od silnice jej odděluje cihlová zeď.

DDAANN , 15. 11. 2018

  • Ateliér: DDAANN
  • Země: Česká republika
  • Realizace: 2018
  • autor: DDAANN *
  • publikováno: * 15. 11. 2018
  • zdroj: * Autorská zpráva

Mohlo by vás zajímat

Generální partner
Hlavní partneři