
Architektura
/
rodinné domy
Schaufler-Roskovec schovali výškově rozdělený rodinný dům pod jednu střechu
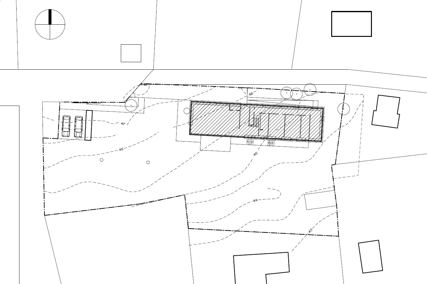
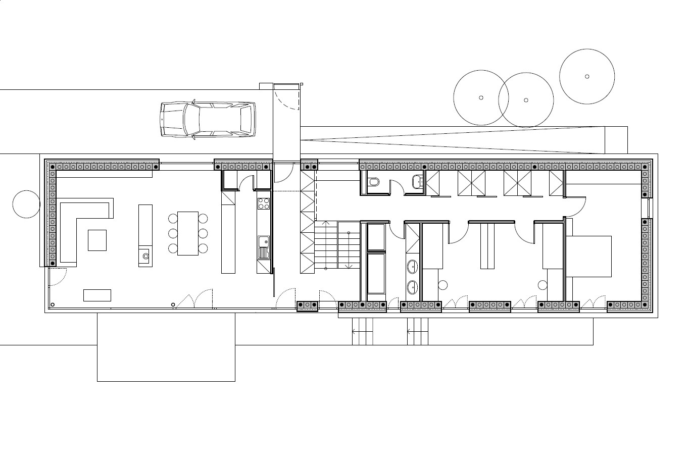
Do zástavby Mníšku pod Brdy usadilo architektonické duo z Prahy Radovan Schaufler a Jakub Roskovec podlouhlý rodinný dům, který do zahrady definuje fasáda z dřevěných prken a lomového kamene s výraznými okny na výšku. Svažitý terén umožnil objekt výškově rozehrát a na první pohled kompaktní hmotu tak architekti rozdělili na jednopodlažní a dvoupodlažní část, kryté společnou sedlovou střechou.
SCHAUFLER-ROSKOVEC, s.r.o. , 10. 12. 2018
- Autoři: Radovan Schaufler, Jakub Roskovec
- Ateliér: SCHAUFLER-ROSKOVEC, s.r.o.
- Spolupráce: Jan Ratiborský
- Země: Česká republika
- Město: Mníšek pod Brdy
- Datum projektu: 2009
- Realizace: 2013
- Užitná plocha: 216.00m2
- Zastavěná plocha: 178.00m2
- Interiér: Marek Sodomka, Šárka Sodomková