Architektura / rodinné domy

Slovenské studio TOITO navrhlo rodinný dům jako usedlost složenou z pěti objektů

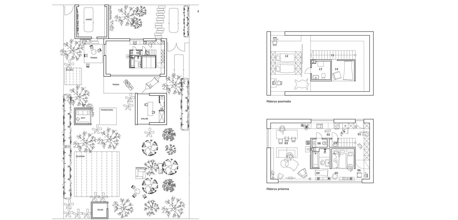
Dům pro čtyřčlennou rodinu rozčlenilo bratislavské studio TOITO hned do několika menších objektů, které svou vzájemnou kompozicí připomínají usedlost ve zmenšeném měřítku. Umístění i dimenze jednotlivých objektů vychází z jejich jasné funkce – ateliér sousedí s hlavním obytným domem v severním rohu pozemku, garáž navazuje na ulici, zahradní sklad na záhony a ohniště, domek pro děti zase na pískoviště. Stavby jsou navrženy jako čisté bílé hmoty s různě nakloněnými pultovými střechami, které jim dodávají potřebnou dynamiku a hravost.

toito architekti , 17. 12. 2018

  • Země: Slovensko
  • Realizace: 2018
  • Město: Budmerice
  • Datum projektu: 2013
  • Realizace: 2018

Mohlo by vás zajímat

Generální partner
Hlavní partneři