
Architektura
/
občanské stavby
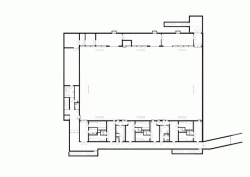
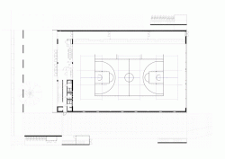
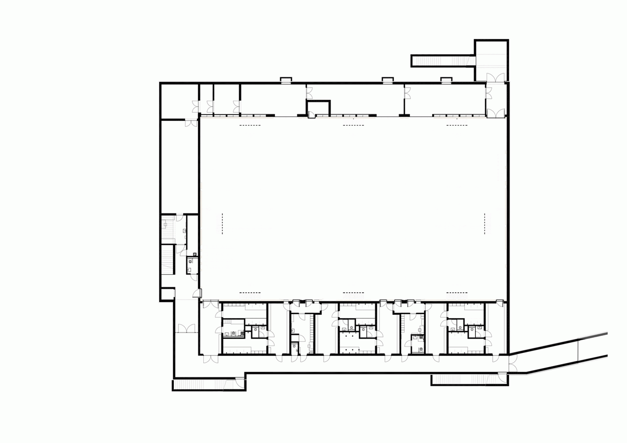
Sofistikovaná sportovní hala St. Martin
Když nad rakouským Villachem zapadá Slunce, místním musí připadat, že není pouze to jedno, ale že jsou dvě, to druhé přímo u nich ve městě. Měděná fasáda zdejší sportovní haly totiž dokáže pěkně zářit, ale zároveň propouštět světlo dovnitř. Společně se teď podívejme na to, jak hala vypadá.
Dietger Wissounig Architekten , 10. 9. 2015
Více k tématu
- Země: Rakousko
- Město: Villach
- Ulice, číslo: St. Martiner Straße 11
- PSČ: 9500
- Užitná plocha: 3 170.00m2
- Materiál: měď