V malém rakouském městě vznikla kulturní budova sloužící jako hudební škola s knihovna
Obyvatelé malého západorakouského městečka Wolfurt mohou od roku 2016 navštěvovat veřejnou kulturní budovu, která slouží jako hudební škola a zároveň knihovna. Místní studio Fink Thurner Architekten stavbu navrhlo jako geometricky strohý objekt s čistými liniemi a světlými materiály. Průčelí budovy směrem do hlavní ulice pak tvoří velká okna ve výrazných mosazných rámech.
EARCH.CZ , 16. 11. 2018
Rakouské studio Fink Thurnher Architekten vytvořili pro rakouské město Wolfurt elegantní hudební školu a knihovnu. Pro jejich návrh využili omezenou paletu materiálů včetně mosazi pro výrazný obklad průčelí.
ABSTRAKTNÍ DESIGN
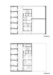
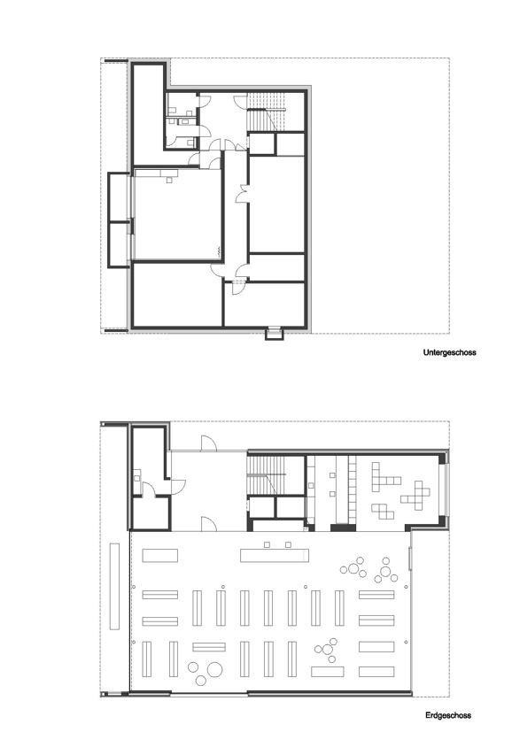
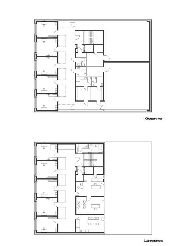
Klíčová poloha budovy ve městě je zdůrazněna abstraktním designem a hraje zásadní roli v budoucím rozvoji místní komunity. Její rozvržení je čistě racionální – do přízemí umístili architekti knihovnu, kterou vizuálně otevřeli velkoformátovým zasklením směrem do hlavní ulice. Prostor knihovny akusticky oddělili vestibulem a schodištěm od hudební školy v patře. Budova je celkově postavena z litého pohledového betonu, jehož hladký a precizně provedený povrch je patrný v celém interiéru. Šedý beton doplňují teplé odstíny podlah z přírodního dubu.
Hudební škola, která zaujímá horní tři patra, má buňkové uspořádání cvičebních a koncertních místností. Každá z místností disponuje rozsáhlým, jednolitým zasklením, které nabízí pohled do exteriéru. Konstrukční kompozice vzájemně spojených, konzolových cihelných boxů je odlehčena masivními rámy kolem zasklených ploch. Tyto „obrazové rámy“ s mitrovanými rohy, vytvořené z velkých mosazných panelů, mají záměrně dvourozměrný charakter, představující minimalizované, nedotčené hrany. Uliční fasáda tvoří mříž zasklených čtverců s mosaznými rámy a s výhledem do každé místnosti.
- Ateliér: Fink Thurnher Architekten
- Země: Rakousko
- Město: Wolfurt
- Ulice, číslo: Sternenplatz, 7
- PSČ: 6922
- Realizace: 2016
- Materiál: měď


