Společně a přesto individuálně. Tři rodiny iniciovaly přestavbu vily z 30. let na tři byty.

Studio No Architects přestavělo prvorepublikovou vilu v centru Prahy na dům se třemi soukromými byty.
Adéla Vaculíková , 14. 8. 2022 / Advertorial
Společně k individuálnímu bydlení
Vizuální umělkyně Daniela Baráčková a architekt Jakub Filip Novák se znají již ze svých studií na Vysoké škole uměleckoprůmyslové. Nyní spolu tvoří v pražském studiu No Architects, které má na kontě již několik prestižních ocenění. Jedno si odnesli i za úspěšnou přestavbu prvorepublikové vily v centru Prahy, ve které se nyní nachází tři samostatné bytové jednotky.
Za výsledkem stojí kromě studia No Architects také tři mladé rodiny, které se rozhodly jít do projektu společně, daly dohromady dostatek financí a nechaly si vilovou stavbu přetvořit podle svých potřeb.
Více k tématu
Moderně, ale s důrazem na původní charakter
Aby mohly v třípodlažní vile vzniknout soukromé byty se vším potřebným, museli autoři přistoupit k výrazným stavebním zásahům. Na vnější podobě meziválečné stavby se však nijak negativně neprojevily, je tomu právě naopak. „Dům ze 30. let minulého století jsme pojali celkově tak, jak byl zamýšlen – jako první mezi sobě rovnými – vévodící řadě domů v bloku. Proto jsme štít rozsvítili do symetrie novými okenními otvory a vrátili mu tektonickou poezii, o kterou dřívějším zateplením přišel,“ vysvětlují svůj přístup autoři.

Individuální přístup
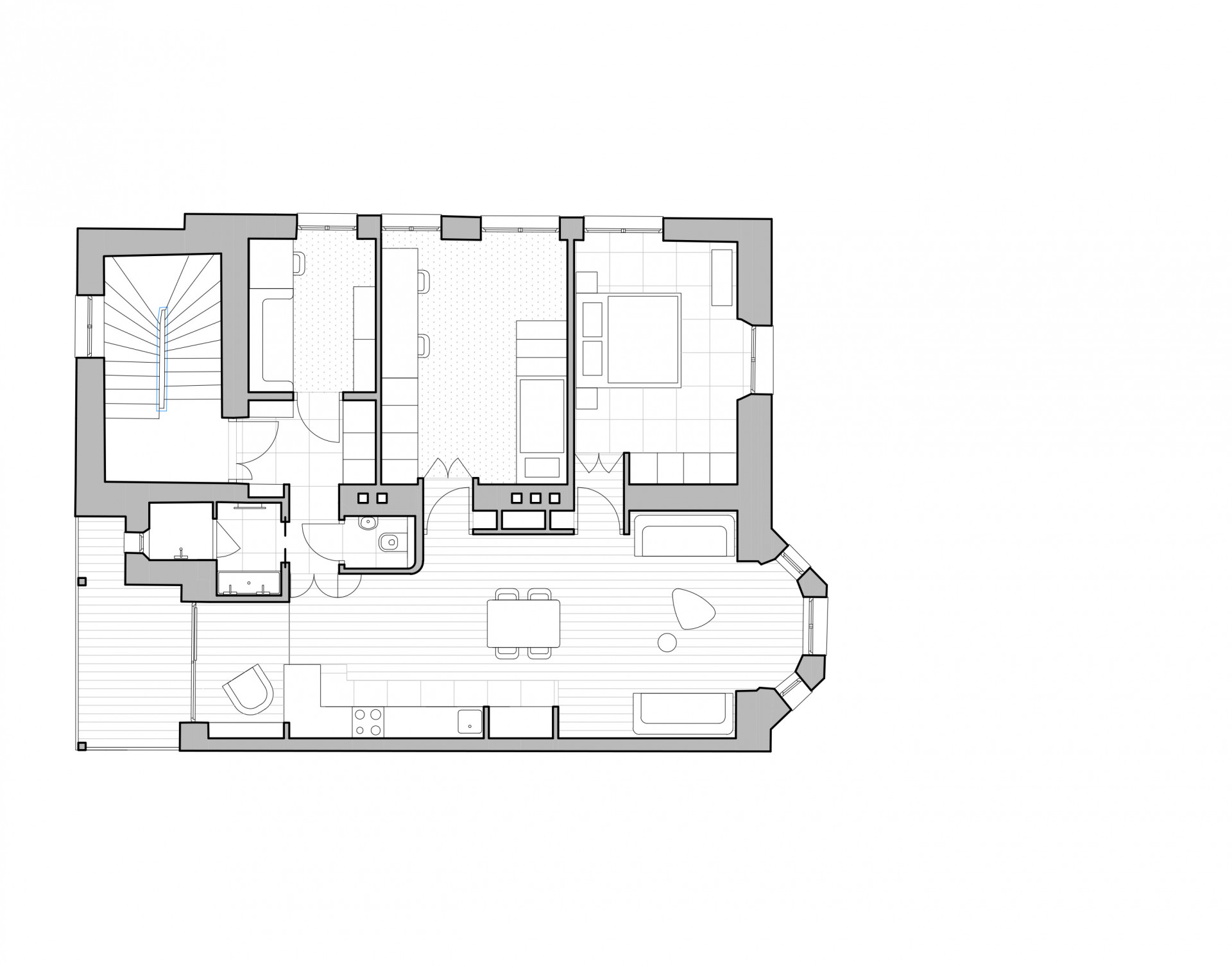
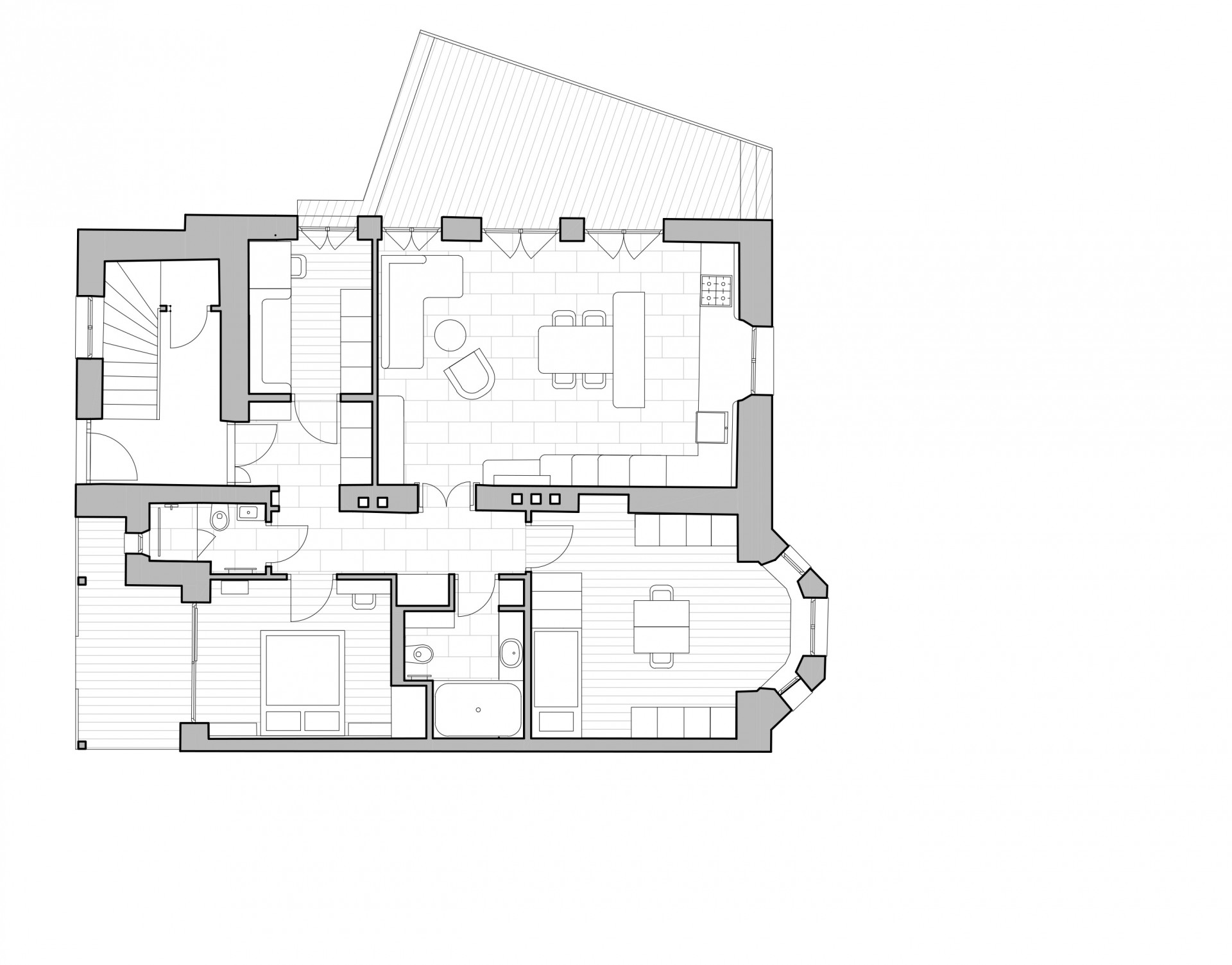
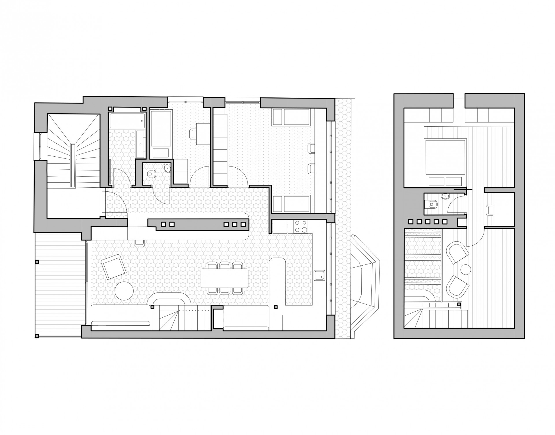
Každá ze tří rodin obývá vlastní byt rozkládající se vždy přes celé jedno podlaží. Při přestavbě se ale nezapomnělo ani na společné prostory, technickou místnost a prádelnu ve sklepě doplňuje i klubovna dostupná všem obyvatelům domu.
Autoři přestavby se řídili jak charakterem vily, tak požadavky a životním stylem investorů. Výsledkem jsou tři zcela individuálně pojaté byty, které spojují odkazy k architektuře 30. let a rukopis studia No Architects. Dana Baráčková a Jakub Filip Vaněk si za svou úspěšnou rekonstrukci odnesli i vítězství v soutěži Interiér roku 2019.
V bytech převažuje vybavení z přírodních materiálů doplněné o barevné kusy vestavěného nábytku. Někdy je to zelená kuchyň, jindy červená skříň nebo barevná podlaha, která interiéru přidává na hravosti a stává se až výtvarným prvkem.

Promyšleno až do posledního detailu
Kvalitní nábytek autoři doplnili o stejně kvalitní detaily. Sázkou na jistotu se staly mezi architekty oblíbené nerezové kliky českého výrobce M&T z kolekce ENTERO a KVADRA. „Přednostmi nerezových klik je zejména jejich vysoká pevnost a velmi dobré mechanické vlastnosti,“ říká Roman Ulich, hlavní designér společnosti M&T. „Oba zvolené modely, ENTERO i KVADRA, zaujmou na první pohled svými charakteristickými hranatými rysy z čelního pohledu. Jemné ergonomické zaoblení na zadní straně však zajišťuje, že skvěle padnou do ruky,“ dodává na závěr.
Součástí přestavby vily se stala i úprava zahrady, která je společná všem třem rodinám. Poměrně netradiční projekt ukazuje jednu z cest, jak se vypořádat s finanční nákladností spojenou s budováním vlastního bydlení. Stavění na principu takzvané „Baugruppe“, kdy se skupina lidí dohodne postavit si cenově výhodný bytový dům, se u nás pomalu rozrůstá. Realizace studia No Architects je ale navíc zajímavá tím, že cílem nebylo vybudovat novostavbu, ale zrekonstruovat a přizpůsobit novým požadavkům již existující objekt.

- Autoři: Jakub Filip Novák, Daniela Baráčková
- Ateliér: No Architects
- Město: Praha
- Realizace: 2017-2019
- Projekt: 2015-2017
- Užitná plocha: 387 m²
- Zastavěná plocha: 130 m²
- Plocha pozemku: 400 m²