
Starou chalupu oblékli do nového kabátu a už se nemusí sprchovat na zahradě
Za dřevěným plotem se skrývají rozkvetlé záhony, veranda a dřevěný štít. Architekt Vladimír Balda vrátil starému stavení původní podobu, standard bydlení je ale současný.
Viktorie Majoberová , 12. 2. 2024
Původní obyvatelé historické chalupy si čistili zuby na zahradě. Jezdili sem na chalupu a během let zde vzniklo mnoho necitlivých úprav - například koupelna postavená na zahradě. Nový majitel se rozhodl vrátit stavení historický ráz. K dispozici měl jenom jednu historickou fotku. Architektu Vladimíru Baldovi to stačilo.
Více k tématu
Chalupa se nachází na ostrově mezi dvěma silnicemi, v rostlém středověkém městečku na Kokořínsku. Okolní zástavba je členitá, tvoří ji rodinné domy a staré chalupy. Je zajímavé, že až do 20. století byla původní stavba chalupy propojena se sousedním stavením a společně tvořili jeden podlouhlý dům. V současném stavu tedy hovoříme jen o jedné polovině historického stavení.
Všechno postaru
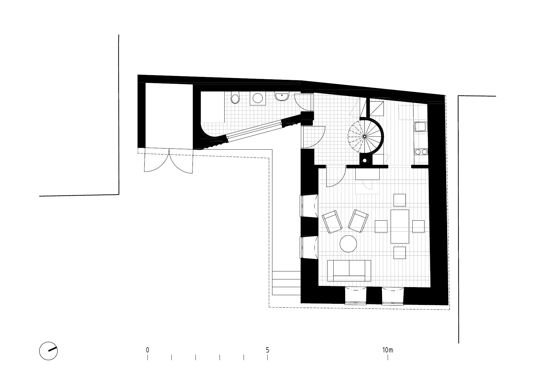
Z původní stavby zbylo jen obvodové zdivo z nepálených cihel, stropní trámy a malý sklep. Všechny zbylé nepůvodní nebo zchátralé prvky nahradila konstrukce nová, která respektuje historický charakter stavby. Dokonce i nová okna sedí na svém původním místě. Samostatně stojící "zahradní" koupelnu nahradila nová přístavba, která uzavírá zahradu ze západní strany a vytváří tak přirozenou clonu sousednímu dvorku. Opět je zde umístěna koupelna, tentokrát však přístupná zevnitř a s teplou vodou.

Zrekonstruovaná chalupa je naplněna novými technologiemi, které umožňují majiteli obývat chalupu napříč ročními obdobími. Zajímavá je práce s jindy problematickým zateplením: „Stěny z nepálených cihel nejsou zateplené. Zateplili jsme podlahu a samozřejmě střechu," vysvětluje architekt Balda. Uvnitř chalupy jsou rozmístěny radiátory, je tu řízené větrání s rekuperací a kachlová kamna. "Rozhodně se tedy nejedná o spartánské bydlení, ale to si také majitel přál,“ dodává.

Foto: Pokojíček s malými okny a velkou postelí je jako stvořený pro hluboký spánek.
Chalupářský minimalismus
Vnitřní uspořádání chalupy je přehledné a jednoduché. Malá kuchyň se otevírá do velkého obývacího pokoje v přízemí. Ten je zařízený jen minimálně, tak akorát na míru rekreačnímu pobytu. Do druhého patra, tedy do podkroví, se majitelé dostanou po točitém kovovém schodišti s dřevěným obložením. Pokojíček s malými okny a velkou postelí je útulnou zašívárnou na míru navržený pro hluboký spánek. Veškerý úložný prostor vyřešila designérka interiéru, Lucie Baldová, jako vestavěné skříně. Opticky splynuly s bílou omítkou na zdech a celý pokoj působí velmi jednoduše a příjemně.
Jaké úskalí přinesla rekonstrukce chalupy, která je součástí městské památkové zóny? Vzhledem k vizi navrátit domu původní historickou tvář si architekt mohl bez problému potřást rukou s památkáři. Moderní technické řešení pro ně žádný problém nepředstavovalo, takže spokojen byl i investor.
- Autoři: Vladimír Balda, Lucie Baldová
- Ateliér: Vladimír Balda architekt
- Země: Česká republika
- Realizace: 2022
- Fotograf: Aleš Jungmann