
Starý dům dostal nové koupelny. A také víc pohodlí a barev
Původně to byl rodinný dům – stavba z počátku dvacátého století, kterou si pro sebe nechal postavit jindřichohradecký lékárník. Dnes má tři obytné jednotky a k tomu výtvarný ateliér.
Adéla Vaculíková , 15. 12. 2023
Architekti Matěj Šebek a Martin Petřík, kteří vypracovali rekonstrukci, ho nazvali „poctivě stavěným řadovým domem“. Onu poctivost mu chtěli nechat, a tak pracovali i s tím, co v domě už bylo – třeba se dveřmi, kamny, podlahami a tak dále. Dispozice se ale proměnily, původně šlo o rodinný dům, dnes jsou v něm tři byty a výtvarný ateliér.
Více k tématu
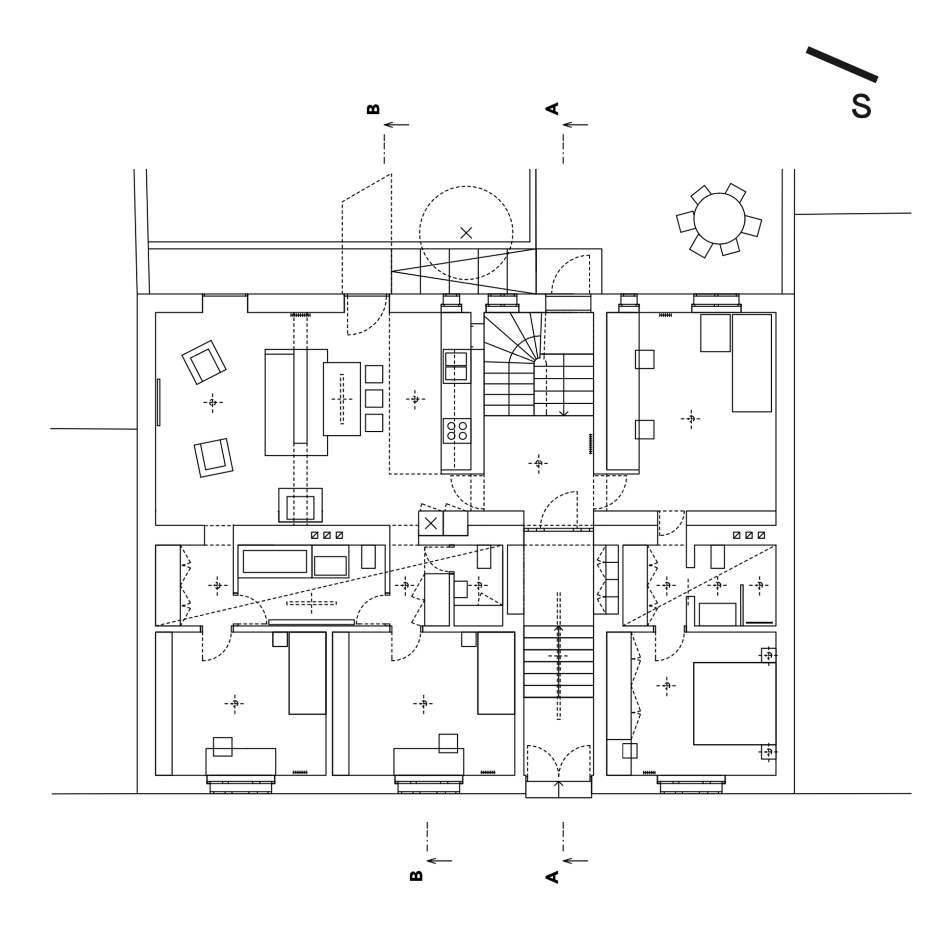
Do jednotek bylo potřeba vložit nové funkce, hlavně koupelny. Ty architekti pojali jako moderní a jasně rozpoznatelné intervence. V největším bytě, který je v přízemí, má nově vložené jádro, které obsahuje kromě koupelny i šatnu, žlutou barvu. Vedou ním také dva průchody, úzké brány, kterými se vchází do pokojů za nimi.
Prostorný obývací pokoj se nachází na straně druhé. Úzké průchody pocit z jeho velkorysosti ještě umocňují. Dřevěná podlaha se na jejich rozhraní setkává se žlutou barvou. Výrazných prvků je ostatně plný celý byt i dům. Mnohdy na sebe však nestrhávají pozornost prvky nové, ale ty původní. V přízemní bytě to jsou kachlová kamna, u nichž se dá hřát, když se člověk posadí na sedačku, která obíhá kolem dokola tlustého nosného pilíře.

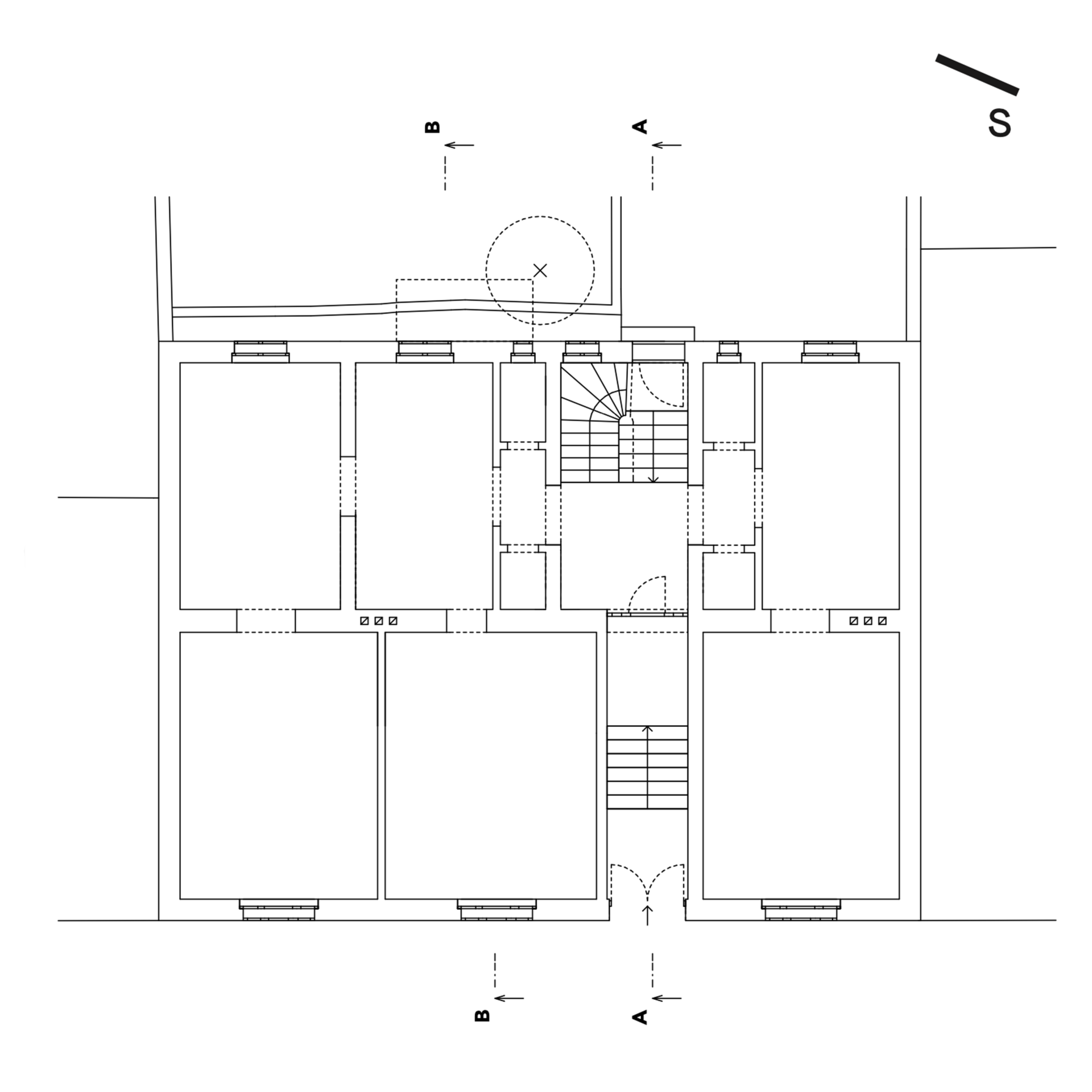
Staré prvky dostaly po rekonstrukci domu nový kontext. Stejně tomu tak je i s prostory. Schodišťová hala, která byla kdysi ústřední částí domu, je dnes hlavně komunikačním uzlem. S novými byty ale kontakt úplně neztratila, kdo jde zrovna do patra, lze pozorovat okénkem z kuchyně.
Dům lékárníka má dvě podlaží, druhé se nachází už v podkroví. Byty, se tady tak otevírají do krovu. Jeho trámy zůstaly přiznané, úrovně podlahy členité. Koupelny a šatny mají stejně jako v přízemním bytě formu vložených objemů. Dopadá do nich světlo seshora, oba podkrovní byty ostatně osvětlují hlavně střešní okna.

Komunikace starého s novým je pro projekt charakteristická. Někdy je postavena na kontrastu, jindy na jemnějších vztazích, vzájemná odlišitelnost je ale klíčová. To se propsalo i na zahradní fasádu, kde jsou vedle sebe umístěná okna v nových ocelových rámech a stará špaletová. Stejně jako bylo nutné proměnit dispozice, i okenní otvory byly místy potřeba větší či nové.
- Autoři: Matěj Šebek, Martin Petřík
- Země: Česká republika
- Město: Jindřichův Hradec
- Projekt: 2017
- Realizace: 2023