
Stempel & Tesar postavili dům v terénu navzdory předpisům CHKO
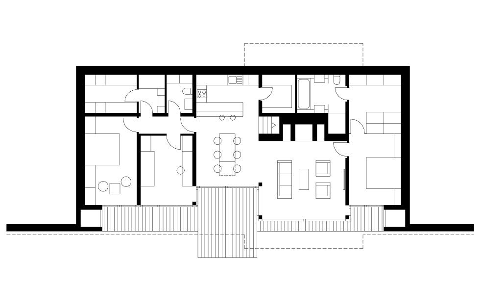
Respektované architektonické studio architektů prof. Jána Stempela a Jakuba Jana Tesaře řešilo při návrhu rodinného domu v malé obci v Pálavě protichůdné požadavky: klienti si přáli dům zapuštěný do terénu s rovnou střechou, nařízení CHKO ovšem nařizovalo stavbu se sedlovou střechou. Architekti situaci vyřešili tak, že na vlastní rodinný dům splývající se svažitým terénem postavili ještě jeden objekt sloužící jako vstup, garáž i kancelář, který dostal tradiční formu požadovanou krajinnými předpisy.
stempel & tesar architekti , 10. 4. 2018
- Autoři: Ján Stempel, Jan Jakub Tesař
- Spolupráce: Dalibor Borák
- Země: Česká republika
- Město: Klentnice
- Datum projektu: 2014
- Realizace: 2017
- Užitná plocha: 210.00m2
- Zastavěná plocha: 190.00m2
- Plocha pozemku: 1 090.00m2
- Zahrada: Lucie Vogelová, terra florida