
Architektura
/
interiér
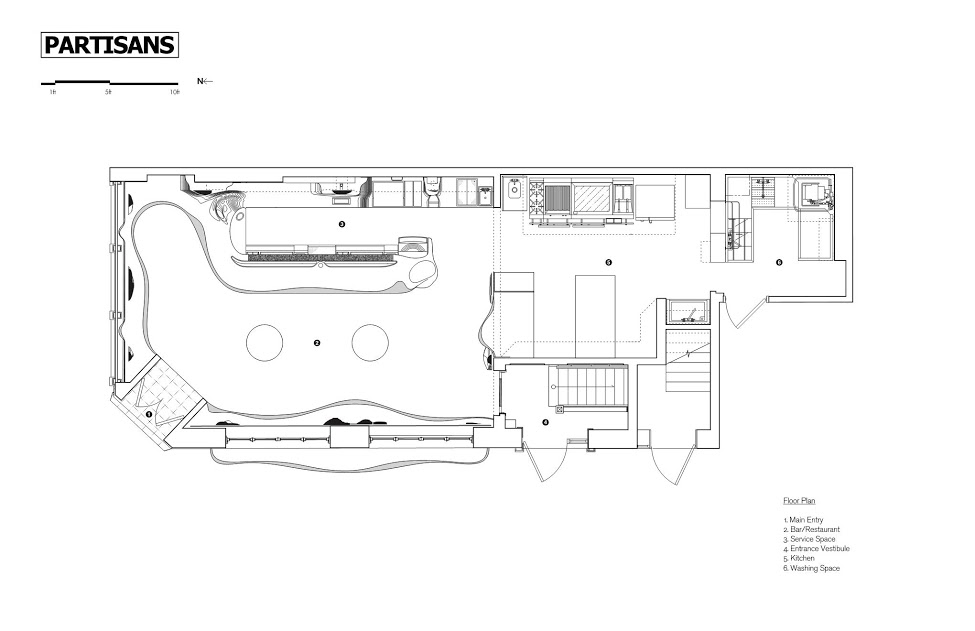
Tetovaný bar
Tvůrčímu týmu ze studia PARTISANS se povedl zase jeden dřevěný skvost. V kanadském Torontu vytvořili originální interiér tapas baru, který vás z reality všedního dne odvede do úplně jiného světa. Obdobně jako u jejich Sauny Grotto zde hraje prim dřevo a oblé organické linie.
PARTISANS , 18. 2. 2016
- Autoři: Alexander Josephson, Pooya Baktash, Jonathan Friedman, Ivan Vasyliv, Ariel Cooke
- Ateliér: PARTISANS
- Země: Kanada
- Město: Toronto
- Ulice, číslo: 505 College St
- PSČ: ON M6G 1A4
- Realizace: 2015
- Užitná plocha: 185.00m2
- Poznámka: Foto © Jonathan Friedman / PARTISANS