
Udržitelný hotelový resort uprostřed džungle
Studio Saxe vytvořilo pro majitele hotelů Nalu-Nosara resort v tropické oblasti Nosara na Kostarice. Nový resort je dalším z dlouhé řady udržitelných budov na tomto místě, které jsou navrženy tak, aby spojovaly současný design s místními řemesly.
EARCH.CZ , 15. 11. 2017
Oblast Nosara se v poslední době stala hojně vyhledávanou destinací pro ty, kteří hledají ideální podmínky pro surfování, wellness nebo ozdravné pobyty. Proto se majitelé hotelů Nalu-Nosara, Nomelu a Mariya Libid rozhodli pro vybudování nového objektu splňujícího všechny potřeby návštěvníků.
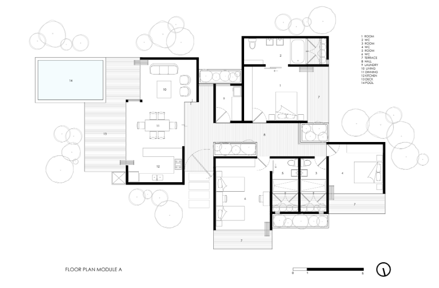
Součástí resortů je také studio určené na cvičení jógy, která se stala všeobecně populární jakožto způsob cvičení i relaxace, což okolní vegetace silně podporuje. Ubytovací jednotky, které by měly působit spíše jako dočasné domovy než sterilní hotelové pokoje, se nachází jen pár minut chůze od oceánu. Typická uniformita hotelových budov, jak si je vybavujeme, je zde porušena – architekti rozmístili ubytovací jednotky mezi stromy a tím zároveň vytvořili uzavřené prostory, ve kterých je dostatek soukromí.
Každý výhled do divočiny je navíc koncipován tak, aby byl pro každý „domov“ jiný. Každá ubytovací jednotka má střechu ze dřeva – konkrétně z recyklovaných týkových prken. Pokoje jsou propojené chodbami, do kterých skrz střechu prosvítá slunce. Chodby opět lemují výhledy do okolí. „Náš projekt resortu Nalu reprezentuje sílu jednoduchosti a zároveň možnosti moderní architektury uprostřed džungle. Také to dokazuje, že lidé dnes touží po větším spojení s přírodou, ale zároveň si chtějí užívat vymožeností dnešního světa,“ řekl architekt Benjamin Garcia Saxe.
Více k tématu
- Ateliér: Studio Saxe
- Země: Kostarika
- Město: Nosara
- Realizace: 2017
- Plocha pozemku: 620.00m2