Univerzitní kampus v Ústí nad Labem doplnila dvoukřídlá budova s náměstím od studia Pelčák a partner
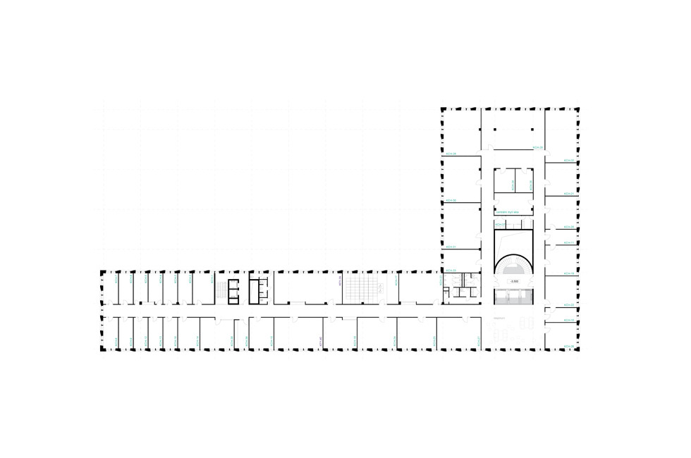
V roce 2015 proběhla veřejná architektonická soutěž na budovu Centra přírodovědných a technických oborů (CPTO), kterou vyhrálo studio Petra Pelčáka. Budovu, která byla dokončena minulý rok, rozdělili autoři do dvou křídel o půdorysu písmene L, čímž pomáhá prostorově lépe definovat celý areál kampusu Univerzity Jana Evangelisty Purkyně poblíž centra Ústí nad Labem. Budova vyniká především pravidelným rastrem fasády s cihelným obkladem. Důležitou součástí projektu bylo také řešení veřejného prostoru, křídla budovy tak mezi sebou kupříkladu vymezují městsky pojaté náměstí.
Pelčák a partner architekti , 15. 4. 2021
- Autoři: Rastislav Balog, Barbara Bartoňková, Pavel Dvořák, Kateřina Eiermannová, Jan Foltýnek, Jakub Hanžl, Martina Holá, Martin Jireš, Nikola Korábová, Jan Kubát, Lenka Ľuptáková, David Menšík, Petr Pelčák, Petr Uhrín, David Vahala, Miroslava Zadražilová
- Ateliér: Pelčák a partner architekti
- Země: Česká republika
- Realizace: 2020
- Město: Ústí nad Labem
- Datum projektu: 2015
- Realizace: 2020
- Poznámka: Foto © Filip Šlapal