V rytmu kolejí. Nová korejská restaurace v Masaryčce
Restaurace Hansik vznikla v parteru kancelářské Masaryčky. Její interiér pracuje s dřevem, hlínou a pravidelným rastrem, který odkazuje k sousední železnici.
Adéla Vaculíková , 15. 4. 2026
Hansik je nová korejská restaurace v budově Masaryčky od ateliéru Zaha Hadid Architects. Ta je primárně kancelářská, její parter je ale věnovaný službám a obchodu. Právě zde, s výhledem na Masarykovo nádraží, se restaurace nachází.
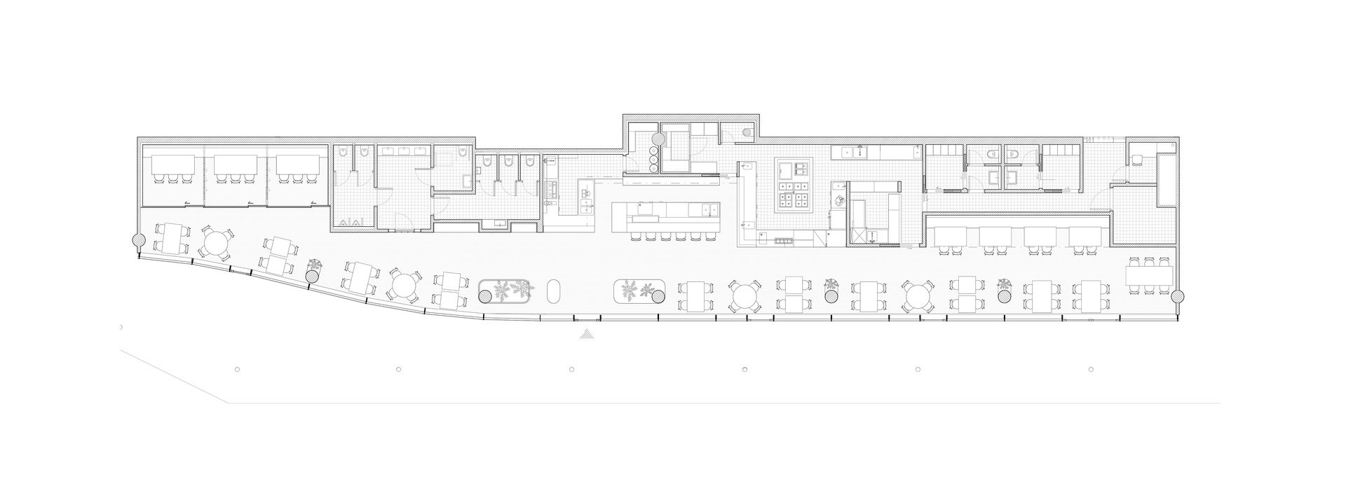
Stoly jsou uvnitř rozestavěné podél prosklené fasády a prostor restaurace přirozeně plyne. Pozornost se soustředí k ústřednímu pultu – vyhrazenému pro mistra sushi, který přímo mezi hosty připravuje jednotlivé rolky.
Architekturu restaurace navrhli architekti z ateliéru Neuhäusl Hunal, kteří za sebou mají již celou řadu projektů gastro provozů a na scéně jsou v tomto ohledu dobře známí. Ateliér pravidelně navrhuje například pobočky řetězce KRO. Nedávnou realizací je pak restaurace RAKIN v Dejvicích, kde se téma mořských plodů propsalo do keramického obkladu s motivem raka. A zmínit lze i Da Pietro Pizza, kde architekti pracovali s výraznou kombinací světle růžové a blankytně modré.

Gastro provozy od Neuhäusl Hunal bývají hravě veselé a výrazně grafické. V restauraci Hansik je tomu tentokrát částečně jinak. Interiér, v němž dominuje tmavé dřevo, je klidnější – útulný a současně honosný. Grafičnost ovšem zůstala. Vestavěné prvky pracují s pravoúhlou kompozicí a rytmem obdélníků, které se promítají do polic i linií členících stěny a dveře. Tento řád podle architektů odkazuje k „rytmu kolejí“ vedoucích z nedalekého nádraží.
Vedle dřeva se v interiéru restaurace uplatňuje i řada dalších materiálů, významnou roli hraje hlína. „Řešení vychází z principů tradiční korejské architektury, zejména domů typu hanok, kde hlína představuje základní konstrukční i povrchový prvek,“ doplňují architekti. V interiéru se objevuje v podobě hliněné omítky. Doplňují ji kamenná podlaha, keramické obklady nebo rýžový papír použitý na stínidlech svítidel, která prostoru dodávají klidnou, téměř ambientní atmosféru.

Dispozice restaurace je poměrně specifická – prostor je výrazně protáhlý, což může být z provozního hlediska komplikované. Architekti tuto danost vyvažují přirozeným členěním do různých typů sezení, od stolů v otevřeném prostoru po intimnější salonky. Jednotvárnou linii stolů podél prosklené fasády zároveň rytmizují velkoformátové květníky se zelení.
Více k tématu
Efekt do členění prostoru přináší i práce s kuchyní. „Polootevřená kuchyně umožňuje vizuální propojení s přípravou pokrmů,“ dodávají architekti. Možnost nahlížet od stolu pod obratné ruce kuchařů je v gastronomii dlouhodobým trendem, který pokračuje i v této restauraci od Neuhäusl Hunal.
- Ateliér: Neuhäusl Hunal
- Autoři: Matěj Hunal, David Neuhäusl, Jakub Zelenák, Veronika Zelenáková
- Země: Česká republika
- Město: Praha
- Fotograf: Radek Šrettr Úlehla
- Realizace: 2025
- Hlavní projektant: Atelier RENO
- Stavební firma: 4int
- Grafický design: Přemysl Zajíček
- Truhlářské výrobky: Sollus
- Květiny: Pokojovky
- Dodavatel osvětlení: Bulb
- Dodavatel nábytku: Lino