
V sousedství Máchova jezera vznikla rezidence LakePark od společnosti EBM Group
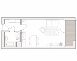
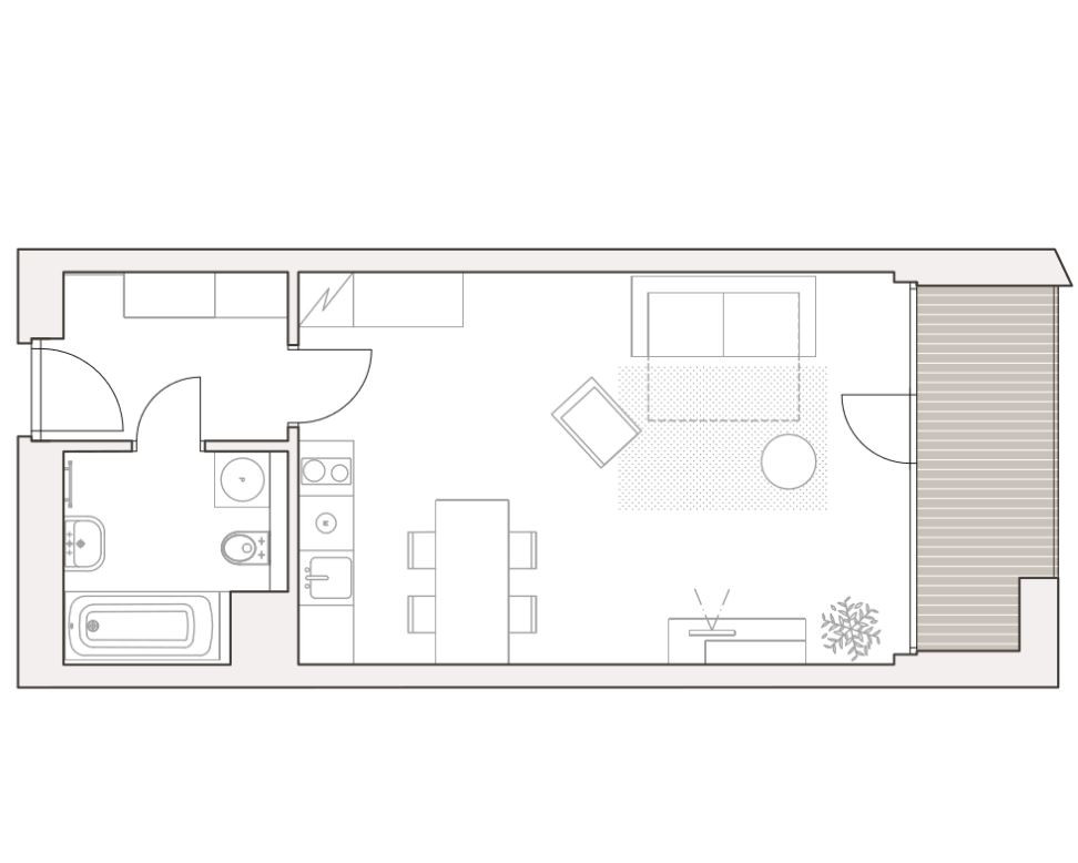
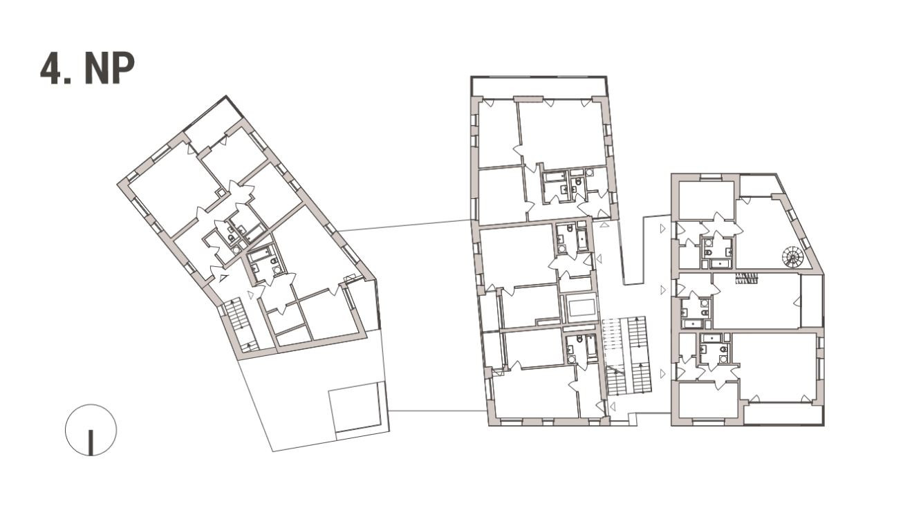
V rámci činnosti holdingové společnosti EBM Group vznikla v sousedství Máchova jezera – v obci Staré Splavy – nová rekreační a obytná residence LakePark. Architekt navrhl obytný komplex jako kompozici rozličně tvarovaných hmot, které vzájemně opticky spojuje pravidelný dřevěný obklad. Různorodé výškové řešení jednotlivých objemů ubírá domu na jeho dominantním postavení vůči okolní zástavbě. Hmotovou hru doprovází nepravidelné rozmístění velkých oken a lodžií, které otevírají stavbu výhledům na blízké jezero.
EBM Group , 18. 12. 2018
Více k tématu
- Autoři: Petr Vacek, Monika Čížková
- Ateliér: EBM Group
- Země: Česká republika
- Město: Staré Splavy
- Datum projektu: 2016
- Realizace: 2018